
ADOSADOS DE OBRA NUEVA EN ROJALES
Residencial moderno de obra nueva de adosados y pareados en Rojales.
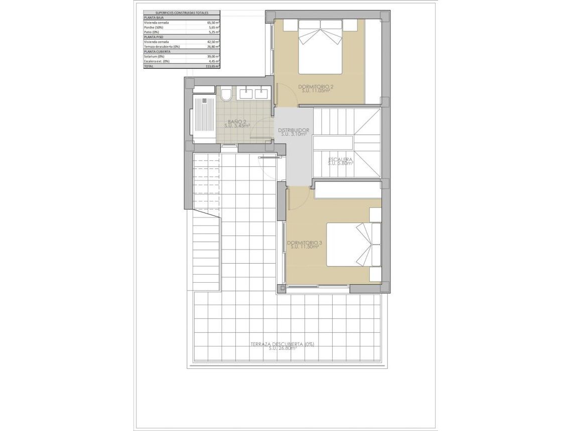
Las propiedades tienen 3 dormitorios, 2 baños, aseo, cocina americana con sala de estar y acceso directo a la terraza, jardín privado con plaza de aparcamiento.
Una opción para un solarium y una piscina privada a un costo adicional.
Rojales es un pueblo encantador con todos los servicios como supermercados, farmacias, bancos, restaurantes y parque natural situado muy cerca.
Hay 3 campos de golf cerca y las playas de bandera azul están a sólo 10 minutos en coche, así como parques acuáticos en las cercanías de Rojales y Torrevieja.
Los aeropuertos de Alicante y Murcia están a 45 minutos en coche.
Esta información que se proporciona aquí está sujeta a errores y no forma parte de ningún contrato. La oferta se puede cambiar o retirar sin previo aviso. Los precios no incluyen los costes de compra