
BUNGALOW DE OBRA NUEVA EN ROJALES
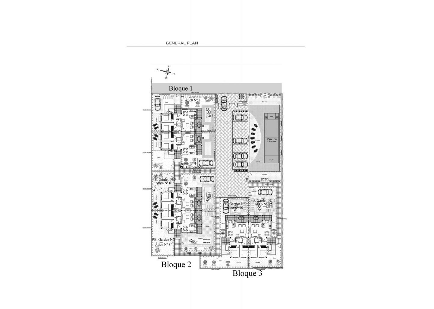
Residencial de obra nueva de apartamentos bungalow de 2 dormitorios en 2 plantas: planta baja con jardín privado o primera planta con azotea privada.
Residencial privado con zonas verdes, piscina y parking privado.
Con todos los servicios necesarios a su alcance: supermercados, campos de golf, restaurantes, centros de salud.
Rojales es un pueblo tradicionalmente agrícola que se ha convertido en uno de los destinos preferidos del interior de la Vega Baja, gracias a su estratégica ubicación junto a la N-332 y la AP-7.
Sus excelentes accesos permiten llegar al aeropuerto de Alicante en 20 minutos y disfrutar de las playas de Guardamar, La Mata o Torrevieja en 15 minutos.
Rojales ofrece una rica y variada oferta gastronómica y de ocio, y cuenta con el prestigioso campo de golf La Marquesa Golf.
Rojales es un pueblo encantador con todos los servicios como supermercados, farmacias, bancos, restaurantes y parque natural situados muy cerca de las villas.
La Marquesa Golf es uno de los campos con más historia de la Costa Blanca, con 18 hoyos y uno tan especial como el hoyo 17 de Sawgrass. Tradición, calidad y experiencia se unen para ofrecer a los golfistas que nos visitan una experiencia única, llena de historia donde.
Esta información que se proporciona aquí está sujeta a errores y no forma parte de ningún contrato. La oferta se puede cambiar o retirar sin previo aviso. Los precios no incluyen los costes de compra