
VILLAS DE OBRA NUEVA EN LOS ALCAZARES
Villa de obra nueva en una generosa parcela de 350m2 en Los Alcázares.
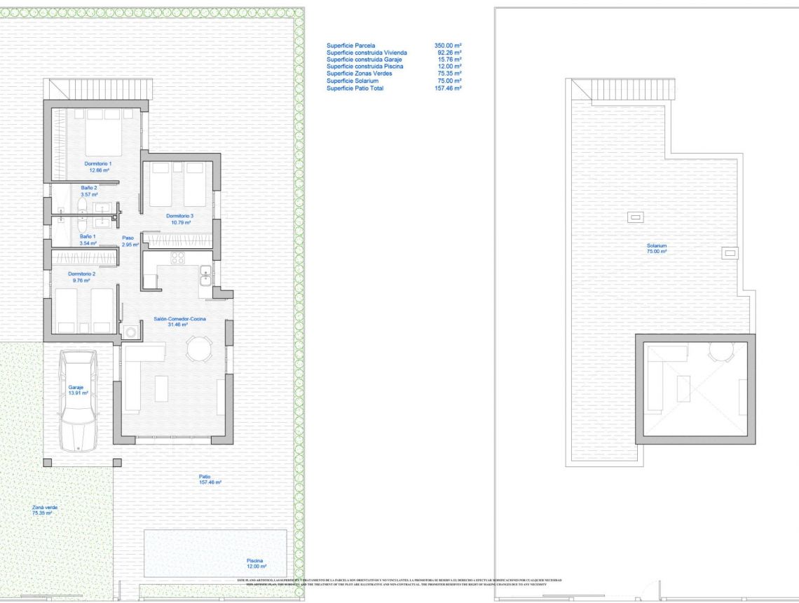
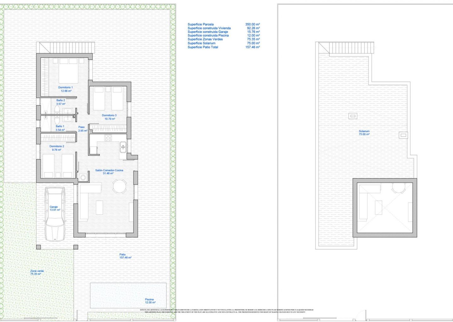
Villa con 3 dormitorios y 2 baños, cocina abierta con el salón, armarios empotrados, solárium, jardín privado con espacio de aparcamiento fuera de la carretera y espacio para una piscina.
Una opción para una piscina privada a un costo adicional.
Amplio salón con grandes puertas correderas a una terraza.
Amplias terrazas en la parte delantera y trasera aseguran que los propietarios puedan tomar el sol durante todo el día.
Estas villas cuentan con modernas cocinas equipadas con una selección de colores para los muebles de cocina y los azulejos de las paredes tanto en las cocinas como en los baños, así como en los suelos y las terrazas.
Residencial de villas situado a 1 km de la playa y del pueblo de Los Alcázares, donde se pueden practicar diversos deportes acuáticos, rodeado de varios campos de golf.
Ciudad de Cartagena a menos de 15 minutos en coche y a 30 minutos del aeropuerto de Murcia Corvera.
Esta información que se proporciona aquí está sujeta a errores y no forma parte de ningún contrato. La oferta se puede cambiar o retirar sin previo aviso. Los precios no incluyen los costes de compra