Casas adosadas de nueva construcción en primera línea de La Serena Golf en Los Alcázares

  • Ref.: NB-70896
  • 135m2
  • 3
  • 2
  •  

Características

Habitaciones: 3
Baños: 2
Construidos: 135m2
Calificación energética: B
Distancia a la playa: 600 Mts.
Location: Coastal, Urbanisation
Under-Build / Basement
Number of Parking Spaces: 2
Useable Build Space: 110 Msq.
Beach: 600 Meters
Parking - Space
Terrace: 47 Msq.
Storage / Trastero
Jardín
Piscina privada
Gated
Solarium: Yes
Near Schools
Near Commercial Center
Double Bedrooms: 3
Near Golf / Golf Resort Property
Calificación energética
Calificación energética:
B

Descripción

Casas adosadas de nueva construcción en primera línea de La Serena Golf en Los Alcázares

Ubicación privilegiada junto al campo de golf y el mar
Descubra una exclusiva urbanización de 31 casas adosadas de nueva construcción situadas en primera línea de La Serena Golf en Los Alcázares, a solo 600 m del Mar Menor. Situada en el corazón de la Costa Cálida, esta privilegiada ubicación combina golf, playa y estilo de vida mediterráneo. Con todos los servicios cerca y un excelente acceso por carretera, es el lugar ideal tanto para vacaciones como para vivir todo el año.

Viviendas modernas con piscina privada y solárium en la azotea
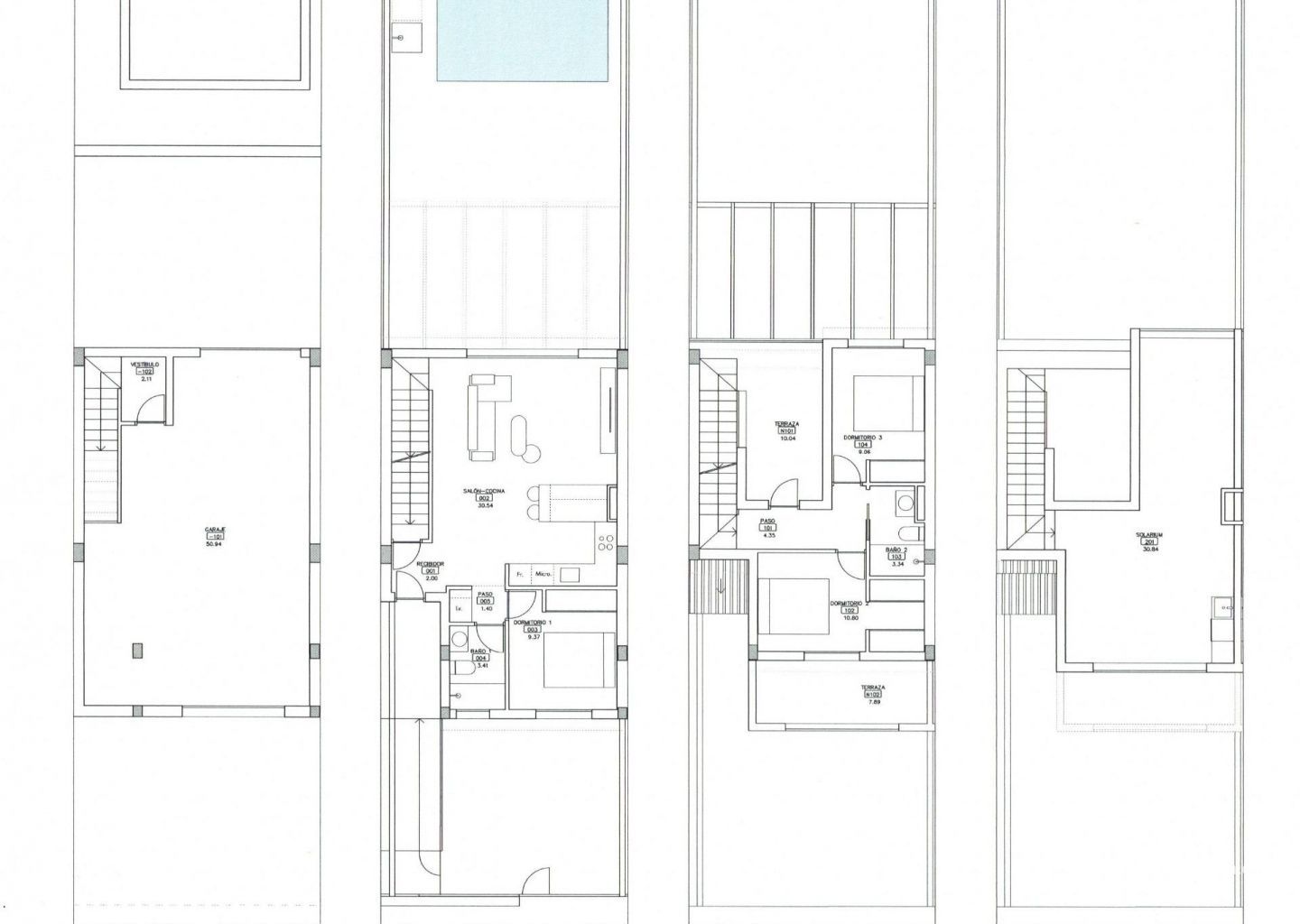
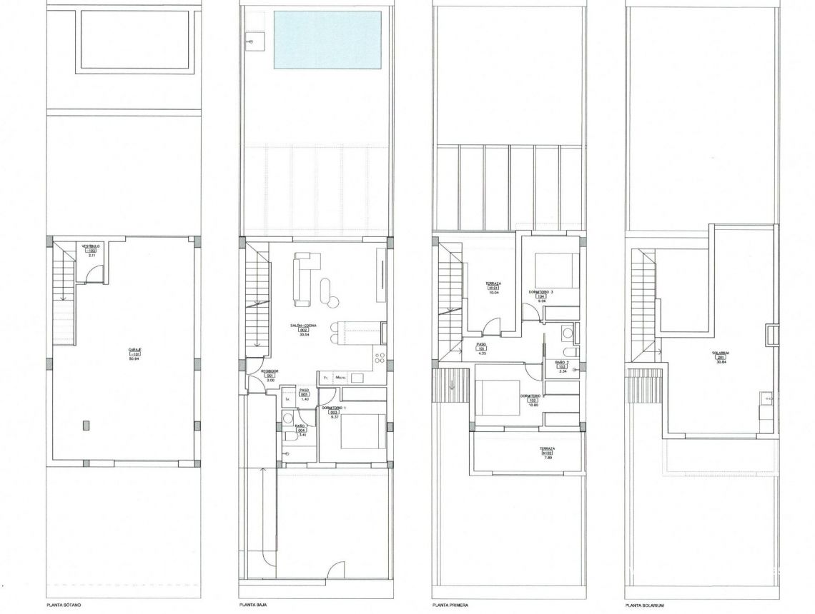
Cada vivienda cuenta con un elegante diseño contemporáneo y espacios interiores luminosos. Las viviendas están distribuidas en tres niveles más un solárium en la azotea, lo que ofrece el máximo confort y privacidad:
Sótano con garaje privado para 2 coches y acceso a un patio
Planta baja con salón y cocina diáfanos que dan a un jardín y una piscina privada, 1 dormitorio y 1 baño
Primera planta con 2 dormitorios, 1 baño y 2 terrazas
Solárium en la azotea con cocina de verano, ideal para relajarse y disfrutar de las vistas panorámicas

La orientación este y oeste garantiza una excelente luz natural y la posibilidad de disfrutar del aire libre durante todo el día.

Acabados de alta calidad y comodidad
Estas viviendas están construidas con los más altos estándares de calidad y ofrecen características premium, entre las que se incluyen:
Piscina privada
Garaje subterráneo para 2 coches con puerta motorizada
Sistema de agua caliente aerotérmica
Aire acondicionado por conductos totalmente instalado
Cocina amueblada y equipada
Baños totalmente equipados con muebles, espejos y mamparas de ducha
Puerta de entrada de seguridad

Viva entre el mar y la calle
Situada en medio de exuberantes paisajes mediterráneos, esta exclusiva comunidad ofrece una vida tranquila junto al campo de golf Serena, un reconocido campo de 18 hoyos rodeado de naturaleza y tranquilos lagos. Las cálidas y poco profundas aguas del Mar Menor son perfectas para nadar y disfrutar de deportes acuáticos como la vela, el paddle surf y el kayak durante todo el año.

Distancias clave:
Playa (Mar Menor): 600 m
La Serena Golf: junto al complejo
Centro de Los Alcázares: 2 km
Cartagena: 22 km
Ciudad de Murcia: 40 km
Aeropuerto de Murcia: 30 km
Aeropuerto de Alicante: 90 km

Asegúrese su estilo de vida mediterráneo
Tanto si busca una residencia permanente, una casa de vacaciones o una inversión rentable, estas viviendas ofrecen lujo, comodidad y un estilo de vida costero superior.
Póngase en contacto con nosotros hoy mismo para concertar una visita y asegurarse su nueva vivienda en Los Alcázares.

Localización

Economía

Esta información que se proporciona aquí está sujeta a errores y no forma parte de ningún contrato. La oferta se puede cambiar o retirar sin previo aviso. Los precios no incluyen los costes de compra

Calcular hipoteca

Cambio de divisas

  • Libras: 328.623 GBP
  • Rublo Ruso: 328.623 RUB
  • Franco Suizo: 348.009 CHF
  • Yuan Chino: 3.034.209 CNY
  • Dolar: 444.747 USD
  • Corona Sueca: 4.072.731 SEK
  • Corona Noruega: 4.153.409 NOK

Más información

Responsable del tratamiento: Naranja Spain, Finalidad del tratamiento: Gestión y control de los servicios ofrecidos a través de la página Web de Servicios inmobiliarios, Envío de información a traves de newsletter y otros, Legitimación: Por consentimiento, Destinatarios: No se cederan los datos, salvo para elaborar contabilidad, Derechos de las personas interesadas: Acceder, rectificar y suprimir los datos, solicitar la portabilidad de los mismos, oponerse altratamiento y solicitar la limitación de éste, Procedencia de los datos: El Propio interesado, Información Adicional: Puede consultarse la información adicional y detallada sobre protección de datos Aquí.

Propiedades similares

© 2026 Naranja Spain · Nota legal

Privacidad · Cookies · Mapa Web · Diseño: Mediaelx