
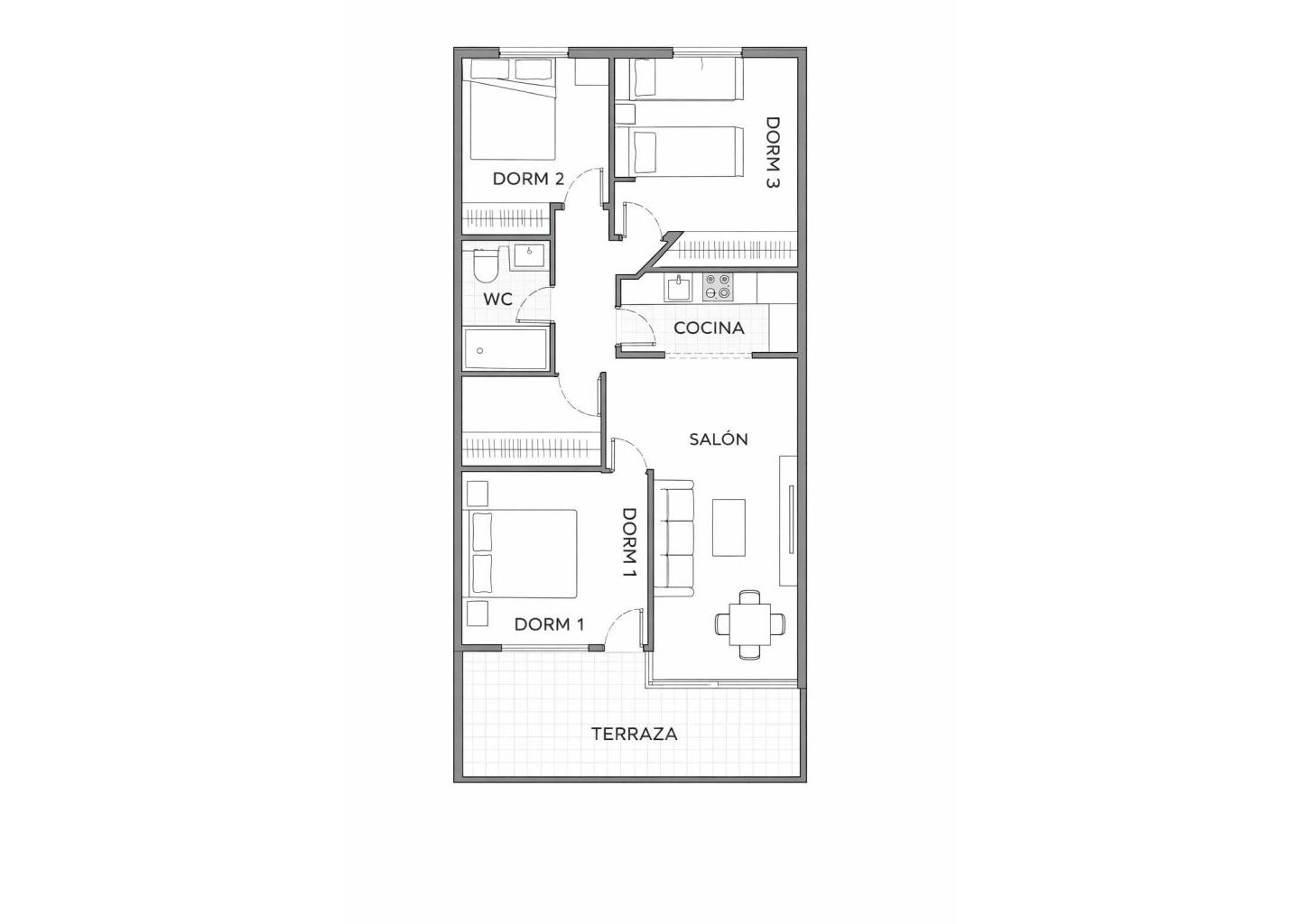
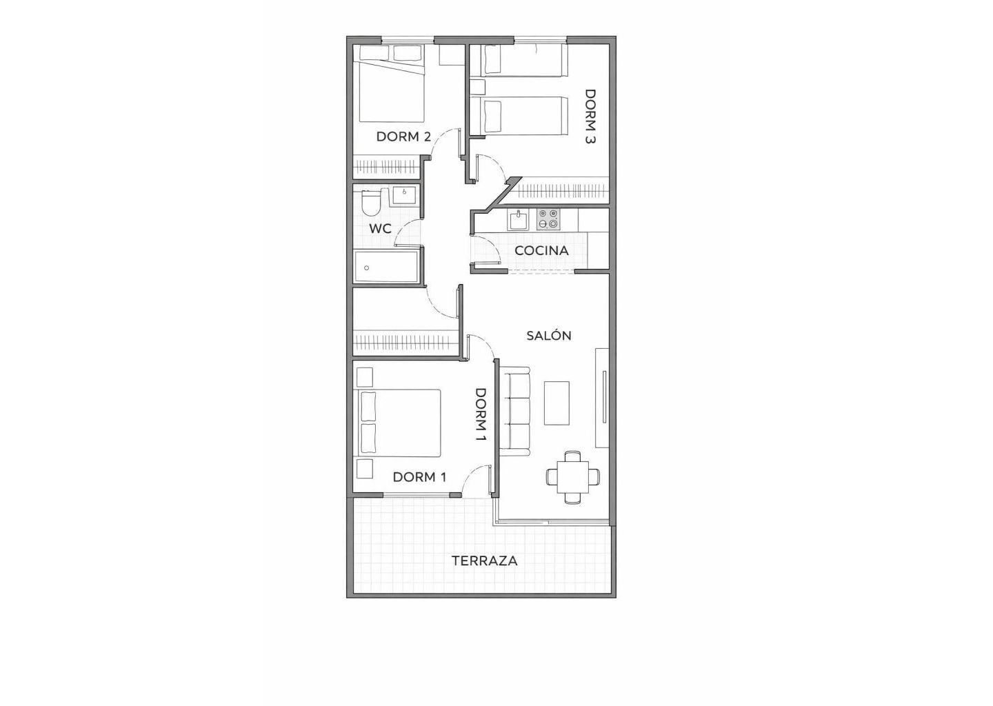
Discover this charming apartment located in Altos de Campoamor, one of the most beautiful and green areas of the Orihuela Costa. With a constructed area of 73 m2 and in very good overall condition, this property is ideal for a perfect holiday or year-round residence. Facing east, it has a bright terrace of approximately 15 m2 where you can relax while enjoying the Mediterranean climate and beautiful views of the residences, its pool, and green areas. The apartment has three double bedrooms, each with its own built-in wardrobe, perfect for accommodating the whole family or comfortably entertaining guests. Sold fully furnished and equipped. Parking and a storage room are included in the price.~This residential complex offers a beautiful and large communal pool; perfect for those hot Spanish summer days. The complex is equipped with children's areas specially designed for the little ones, as well as tennis courts available year-round.~The location couldn't be better: just 800 meters from the beautiful local beaches, you'll have easy access to both the sea and several shopping centers nearby, catering to any daily need or occasional whim.
This info given here is subject to errors and do not form part of any contract. The offer can be changed or withdrawn without notice. Prices do not include purchase costs.