New Build Apartments with Sea Views in Vera Playa, Almería

  • Ref.: NB-72072
  • 78m2
  • 3
  • 2
  •  

Features

Bedrooms: 3
Bathrooms: 2
Built: 78m2
Energy Rating: B
Distance to beach: 700 Mts.
Terrace: 104 Msq.
Storage / Trastero
Furnished
Gated
Solarium: Yes
Number of Parking Spaces: 1
Near Schools
Near Commercial Center
Double Bedrooms: 3
Elevator/Lift
Communal Pool
Location: Coastal, Urbanisation
Views: Sea
Useable Build Space: 70 Msq.
Beach: 700 Meters
Parking - Space
Energy Rating
Energy Rating:
B

Description

New Build Apartments with Sea Views in Vera Playa, Almería

Discover this exceptional new residential development in Vera Playa, offering 27 modern apartments in its first phase. Designed to combine comfort, functionality, and spectacular Mediterranean views, this project is ideal for those seeking a home on the Costa de Almería with style and convenience.

Modern Homes with Sea Views
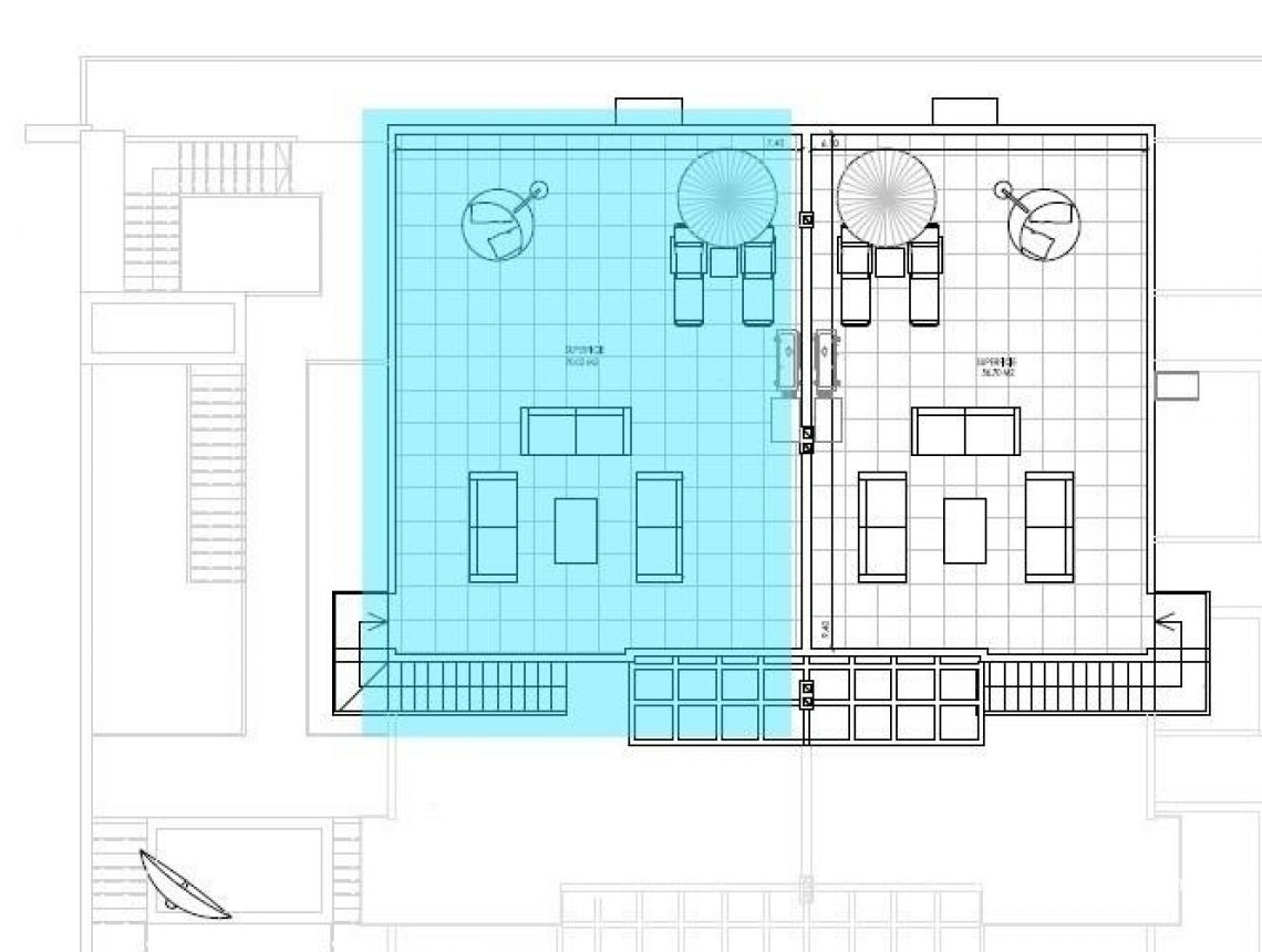
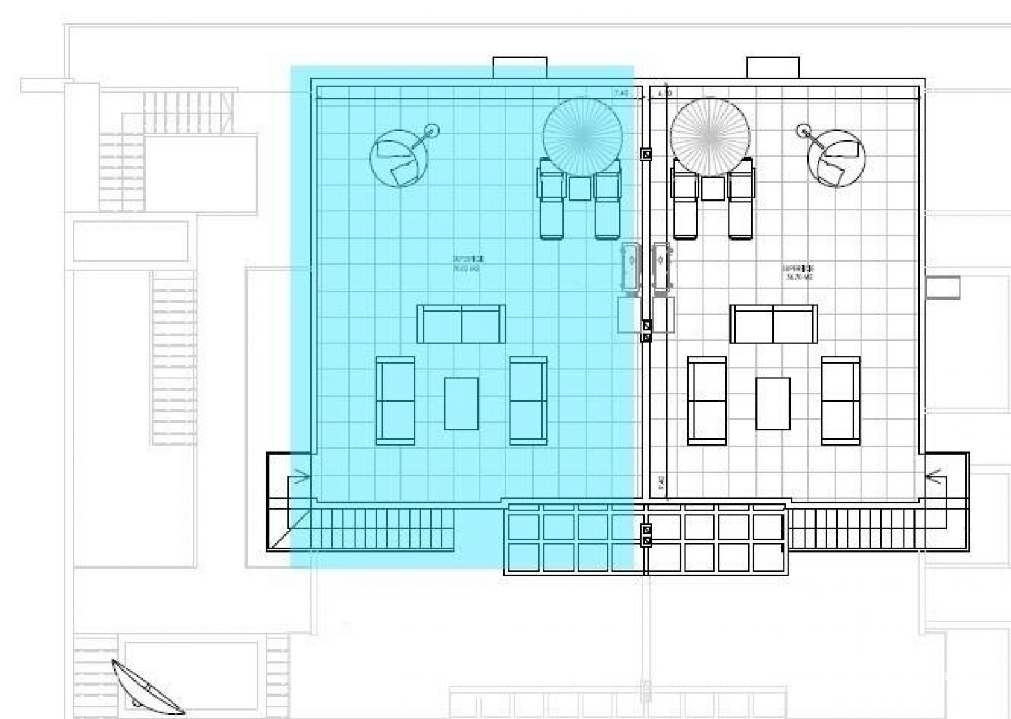
Each apartment has been thoughtfully designed to maximize natural light and outdoor living. Options include 1, 2, and 3-bedroom layouts, with ground floors featuring private gardens, middle floors with spacious terraces, and penthouses with private solariums. Thanks to the terraced design, all homes enjoy uncovered terraces with stunning views of the sea.

Quality Finishes and Fully Equipped Homes
Every property comes fully furnished and equipped, ready to move in. Features include:
Furnished kitchen with appliances included
Complete bathrooms with modern fittings
Ducted air conditioning system
Private parking space and storage room

Exclusive Community Facilities
The highlight of this residential complex is its communal swimming pool, surrounded by landscaped gardens, creating the perfect space to relax, sunbathe, and enjoy family time.

Prime Location in Vera Playa
Vera Playa is renowned for its long sandy beaches, relaxed lifestyle, and excellent amenities. The development is set in a quiet yet well-connected area with easy access to services and transport links. Key distances include:
Beach: 700 m
Desert Springs Golf Resort: 8 km
Vera town centre: 5 km
Garrucha marina and restaurants: 6 km
Mojácar Commercial Park: 10 km
Almería Airport: 85 km (approx. 1 hour)
High-speed AVE train station (under construction): 3 km

An Ideal Home or Investment Opportunity
Whether you are looking for a permanent residence, a holiday retreat, or a secure investment, these new build apartments in Vera Playa offer excellent value in one of Almería’s most desirable coastal destinations.

Make Vera Playa your new home and experience the perfect combination of modern living, sea views, and Mediterranean lifestyle. Contact us today to schedule a visit and secure your dream property on the Costa de Almería.

Location

Economy

This info given here is subject to errors and do not form part of any contract. The offer can be changed or withdrawn without notice. Prices do not include purchase costs.

Calculate mortgages

Currency exchange

  • Pounds: 335.271 GBP
  • Russian ruble: 335.271 RUB
  • Swiss franc: 355.253 CHF
  • Chinese yuan: 3.103.573 CNY
  • Dollar: 456.327 USD
  • Swedish krona: 4.206.696 SEK
  • The Norwegian crown: 4.198.742 NOK

More Info

Responsable del tratamiento: Naranja Spain, Finalidad del tratamiento: Gestión y control de los servicios ofrecidos a través de la página Web de Servicios inmobiliarios, Envío de información a traves de newsletter y otros, Legitimación: Por consentimiento, Destinatarios: No se cederan los datos, salvo para elaborar contabilidad, Derechos de las personas interesadas: Acceder, rectificar y suprimir los datos, solicitar la portabilidad de los mismos, oponerse altratamiento y solicitar la limitación de éste, Procedencia de los datos: El Propio interesado, Información Adicional: Puede consultarse la información adicional y detallada sobre protección de datos Aquí.

Similar Properties

© 2026 Naranja Spain · Legal

Privacy · Cookies · Web map · Design: Mediaelx