
NEW BUILD LUXURY VILLA IN ALBIR WITH SEA VIEW
Luxury New Build villa with its avant-garde design, characterized by pure lines and select materials. Its imposing floor-to-ceiling windows capture the essence of the environment, bathing each space with natural light and a sea breeze.
The heart of his Luxury villa is an expansive living room that opens to unrivaled panoramic views.
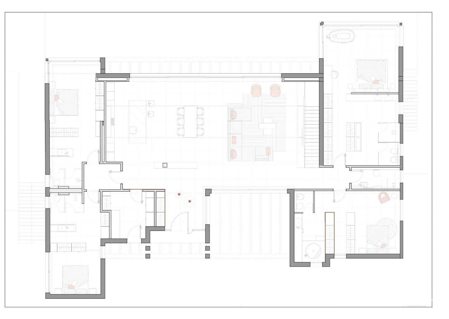
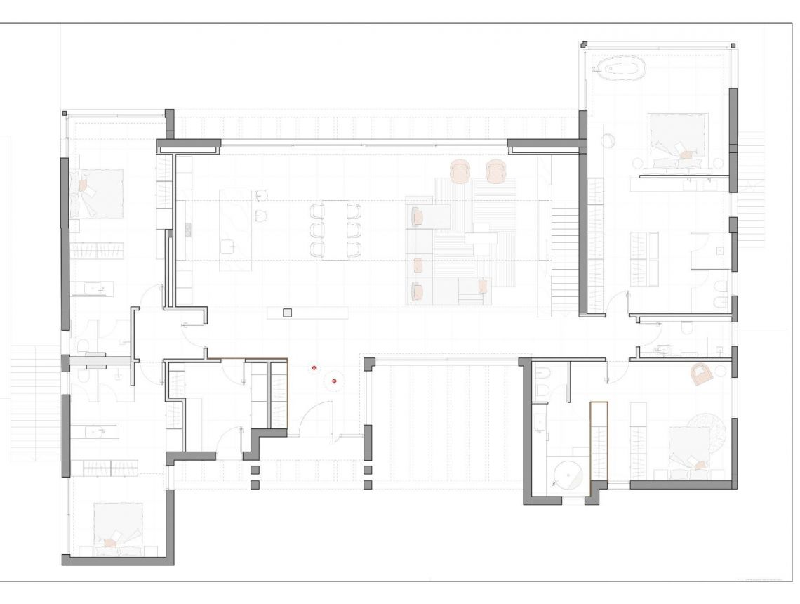
Villa boasts 4 spacious bedrooms and 6 luxurious bathrooms, all with high-end finishes that reflect an incomparable style, the open-plan kitchen, equipped with the best appliances and an exquisite selection of finishes, is the heart of this home, a place where functionality meets beauty. In addition, radiant heating and a fireplace ensure a perfect temperature and a cosy atmosphere in all seasons of the year.
The basement is delivered open plan and there is space for at least 6 cars, in the basement, according to the client's taste, a cellar, gym area or cinema room can be created.
Private pool, surrounded by a lush garden, where you can enjoy views of the entire bay of El Albir and Altea as well as the Sierra Helada.
This exclusive property is key ready, ready to be enjoyed by the discerning buyer looking for the perfect combination of luxury, comfort and lifestyle.
And best of all, you will be able to enjoy the breathtaking sunsets offered by its privileged location in the L'Albir Lighthouse, a true paradise on the Costa Blanca.
Villa located just 400 meters from the crystalline Mediterranean Sea and the idyllic Albir Beach.
This info given here is subject to errors and do not form part of any contract. The offer can be changed or withdrawn without notice. Prices do not include purchase costs.