
Современные новые виллы в Ла-Эррада, Лос-Монтесинос, с частным бассейном
Эксклюзивный жилой проект в спокойной обстановке
Расположенный в престижной урбанизации Ла-Эррада в Лос-Монтесинос, этот эксклюзивный комплекс из 16 современных вилл предлагает уединение, комфорт и отличное качество жизни. Ла-Эррада известна своей спокойной жилой атмосферой, близостью к повседневным услугам и привилегированным расположением между знаменитыми солеными озерами Торревьеха и Ла-Мата. Это идеальное место для тех, кто ищет спокойный и здоровый средиземноморский образ жизни на юге Коста-Бланки.
Современный дизайн с оптимизированными внутренними пространствами
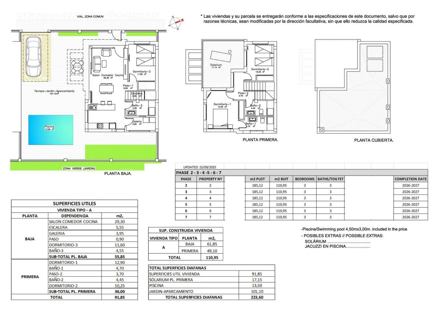
Каждая вилла имеет 110 м² хорошо спланированной жилой площади, распределенной на двух этажах, спроектированных для максимального использования естественного освещения и функциональности. Построенные на участках площадью от 185 м², виллы предлагают просторные открытые площадки, идеально подходящие для принятия солнечных ванн, развлечений или отдыха у частного бассейна.
Удобная планировка на двух этажах
На первом этаже находится открытая гостиная с полностью интегрированной кухней и прямым выходом в сад и к бассейну. На этом же этаже расположена одна спальня, полностью оборудованная ванная комната и удобная прачечная.
На верхнем этаже расположены две просторные спальни, каждая с собственной ванной комнатой, одна из которых является ванной комнатой в спальне. Обе спальни имеют выход на частную открытую террасу площадью 17 м². Для тех, кто хочет еще больше открытого пространства, за дополнительную плату можно заказать солярий на крыше.
Высококачественная отделка и современные удобства
Виллы включают в себя высококачественную отделку, такую как мебель для ванных комнат, зеркала, душевые перегородки и полы с подогревом во всех ванных комнатах. Есть предварительная установка для канального кондиционирования, автоматические ворота для въезда автомобилей, частная парковка на участке и закрытый доступ к жилому комплексу через частную внутреннюю улицу.
Выгодное расположение рядом с основными удобствами и достопримечательностями
Пляжи Гуардамар и Торревьеха 9 км
Гольф-клубы La Marquesa Golf, La Finca Golf и Vistabella Golf в пределах 5 км
Аэропорт Аликанте 29 км
Природные парки, соленые озера, велосипедные маршруты и пешеходные тропы поблизости
Живите комфортно в самом сердце Коста-Бланки
Эти новые виллы в Лос-Монтесинос предлагают идеальное сочетание современного комфорта, природного окружения и отличной доступности. Если вы ищете постоянное место жительства или дом для отдыха, этот комплекс предоставляет все необходимое, чтобы наслаждаться спокойной и удобной средиземноморской жизнью. Свяжитесь с нами сегодня, чтобы договориться о просмотре и обеспечить себе новый дом в Ла-Эррада.
Эта информация может подвергаться изменениям и не является частью будущего контракта. Предложение может быть изменено или отозвано без предварительного уведомления. Расходы на покупку не включены в цену объекта