
Новые двухквартирные виллы в Сусине: последняя квартира Полностью оборудованная и готовая к заселению
Исключительная возможность в Сусине
Это ваш шанс приобрести последнюю доступную квартиру в этом современном новостройке, ранее использовавшейся в качестве демонстрационного дома. Квартира готова к заселению и полностью оборудована мебелью, бытовой техникой, внутренним и внешним освещением, кондиционером, зарядным устройством для электромобилей и летней кухней на открытом воздухе с холодильником. Уникальная возможность приобрести готовое жилье в одном из самых очаровательных городов Коста-Калида.
Современный дизайн, ориентированный на свет и комфорт
Эти виллы-дуплексы выделяются своим элегантным и чистым современным дизайном, с планировкой, созданной для максимального использования естественного средиземноморского света. Основные жилые помещения имеют открытую планировку, где кухня и гостиная плавно сливаются, соединенные стильным центральным островом. Это пространство переходит непосредственно в веранду и террасу у бассейна, создавая гармоничный стиль жизни внутри и снаружи, идеальный для солнечных дней.
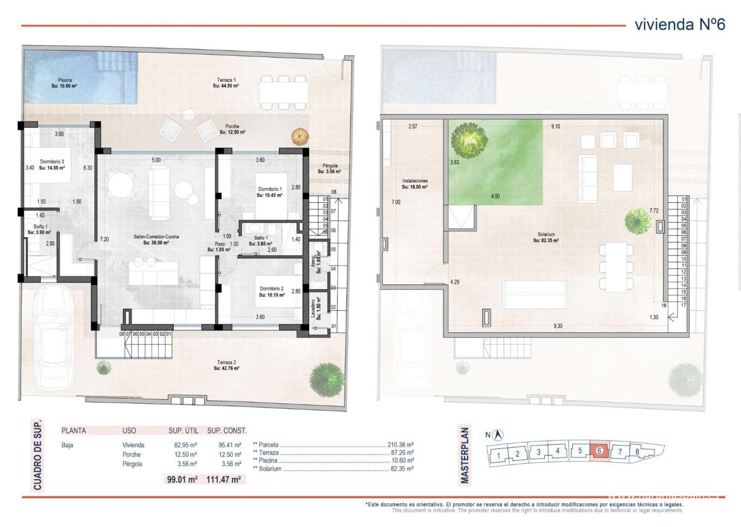
Одноуровневое жилье с частным бассейном и солярием
Вилла включает в себя 3 спальни и 2 ванные комнаты на одном этаже, а также удобный гостевой туалет на улице для зоны бассейна. Главная спальня исключительно светлая и имеет ванную комнату, гардеробную и прямой выход на главную террасу. Вилла также может похвастаться впечатляющим солярием площадью 82 м2, идеально подходящим для принятия солнечных ванн или создания открытого лаунджа. Вилла построена на участке площадью 211 м2 и имеет парковку на территории.
Выгодное расположение рядом со всеми удобствами
Вилла расположена в нескольких минутах ходьбы от центра Сусины, что обеспечивает непосредственный доступ к повседневным удобствам, таким как магазины, рестораны и супермаркеты. Сусина — традиционный испанский городок, который в последние годы стал очень популярным благодаря своему спокойному образу жизни, аутентичной атмосфере и близости к побережью. Прекрасные пляжи Коста-Калида и Мар-Менор находятся всего в нескольких минутах езды.
Расстояния до основных достопримечательностей
Аэропорт Мурсии 25 км
Аэропорт Аликанте 75 км
Пляжи Мар Менор 15 км
Ближайший гольф-клуб 4 км
Порт Сан-Педро-дель-Пинатар 20 км
Высококачественный средиземноморский образ жизни
Построенные из отличных материалов и спроектированные для комфорта, эти виллы предлагают исключительную возможность наслаждаться открытыми пространствами, естественным освещением и чистым воздухом круглый год. Свяжитесь с нами сегодня, чтобы договориться о посещении и приобрести этот эксклюзивный дом в Сусине, готовый к заселению.
Эта информация может подвергаться изменениям и не является частью будущего контракта. Предложение может быть изменено или отозвано без предварительного уведомления. Расходы на покупку не включены в цену объекта