
Resort de lujo en Villajoyosa - Un paraíso junto al mar
Descubra un complejo residencial único en la Playa del Torres
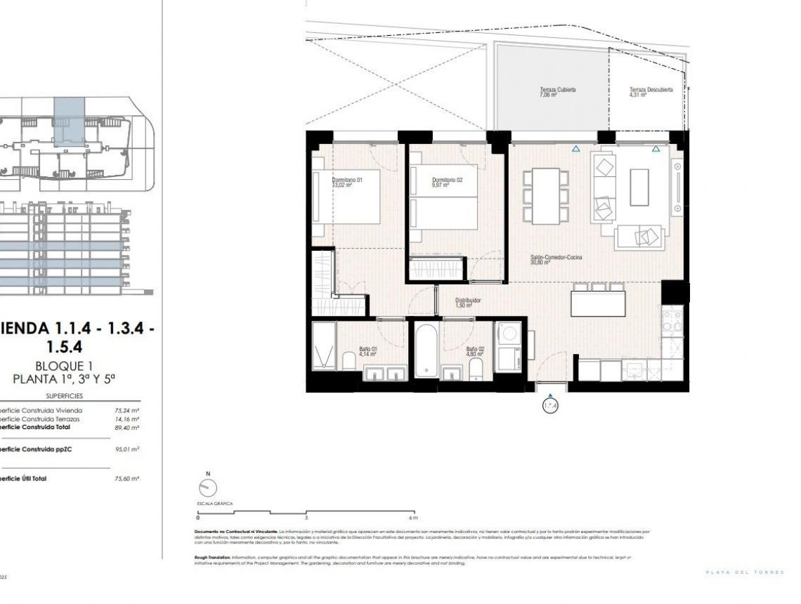
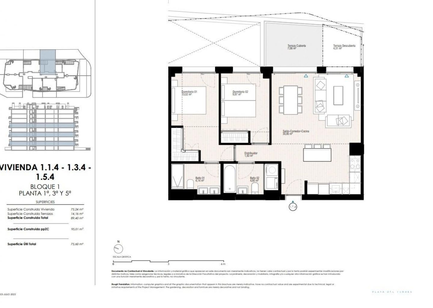
Situado a menos de 5 minutos a pie de la serena Playa del Torres en Villajoyosa, este exclusivo complejo de nueva construcción ofrece 164 modernos apartamentos y áticos de 1 a 3 dormitorios. Diseñada para proporcionar el estilo de vida definitivo, la comunidad combina lujo, relajación y comodidades inigualables en un tranquilo entorno mediterráneo.
Servicios excepcionales para todos los residentes
El corazón de esta urbanización es el Roof Top, situado en la azotea del Bloque 2. Este espacio cuidadosamente diseñado incluye una impresionante piscina con vistas panorámicas, zonas chill-out, una zona de barbacoa, un área multiusos y un cenador, perfecto para socializar o relajarse.
Salón social interior, ideal para cenas gourmet con amigos o como espacio de coworking.
Para los amantes del agua, el complejo cuenta con:
Piscinas de estilo tropical con acceso tipo playa.
Una piscina de carril climatizada, una piscina infantil y un jacuzzi climatizado.
Los entusiastas del fitness pueden disfrutar de:
Gimnasios cubiertos y al aire libre, con un circuito de calistenia.
Un putting green y un minigolf para actividades de ocio.
Viviendas modernas con prestaciones de primera
Cada apartamento está equipado con:
Una cocina totalmente equipada con electrodomésticos de alta calidad, como frigorífico, microondas, horno, lavavajillas y lavadora/secadora integrada.
Sistemas aerotérmicos de bajo consumo para agua caliente y aire acondicionado.
Suelo radiante en los baños.
Ventanas de PVC de alta calidad con aislamiento térmico y doble acristalamiento.
Aparcamiento privado y trastero para mayor comodidad.
El edificio cuenta con calificación energética A, garantizando la máxima eficiencia y sostenibilidad.
Perfecta ubicación en Villajoyosa
Enclavado en la Playa del Torres, este complejo ofrece un refugio tranquilo rodeado de belleza natural. Las aguas cristalinas de la playa y los tonos turquesa proporcionan un telón de fondo idílico para la relajación. La urbanización está convenientemente situada
A 2 km del encantador centro de Villajoyosa.
A 10 km de Benidorm, con su vibrante vida nocturna y comercial.
A 30 minutos en coche del aeropuerto de Alicante.
Villajoyosa, conocida por sus coloridas casas y su rica historia, sigue siendo una auténtica joya mediterránea. Recientemente reconocido como el «Mejor Destino Secreto de Europa 2024» por European Best Destinations, este pueblo mezcla tradición, belleza natural y tranquilidad.
La casa de sus sueños le espera en Playa del Torres
Experimente lo mejor de la vida moderna en un paraíso natural. Con una ubicación privilegiada, lujosas instalaciones y un diseño contemporáneo, esta urbanización es perfecta para quienes buscan un hogar junto al mar. Póngase en contacto con nosotros hoy mismo para concertar una visita y hacer suya esta impresionante propiedad.
Esta información que se proporciona aquí está sujeta a errores y no forma parte de ningún contrato. La oferta se puede cambiar o retirar sin previo aviso. Los precios no incluyen los costes de compra