Villas de obra nueva situadas en término de Aspe.

  • Ref.: NB-44142
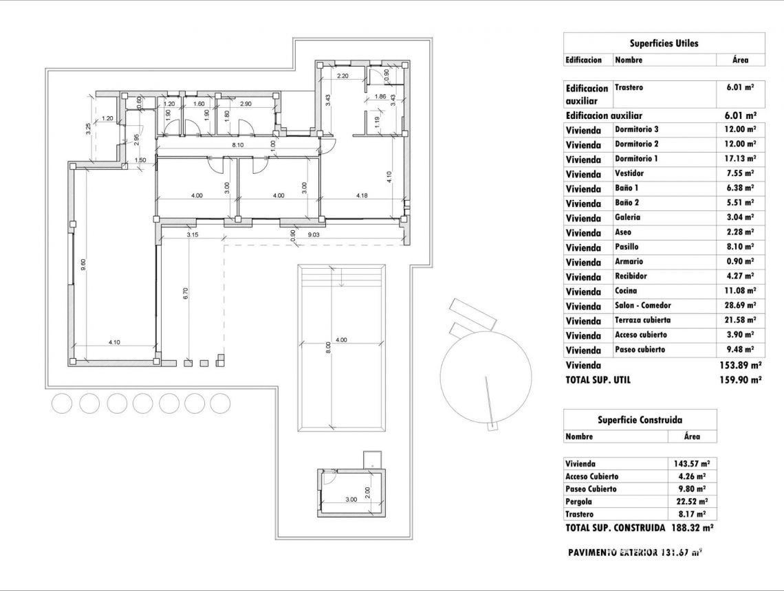
  • 188m2
  • 13.172m2
  • 3
  • 3
  •  

Características

Habitaciones: 3
Baños: 3
Construidos: 188m2
Parcela: 13.172m2
Calificación energética: B
Distancia a la playa: 40000 Mts.
Double Bedrooms: 3
Beach: 25000 Meters
Terrace: 36 Msq.
Location: Rural, Mountain
Parking - Space
Useable Build Space: 159 Msq.
Storage / Trastero
Jardín
Piscina privada
Gated
Number of Parking Spaces: 1
Near Schools
Air Conditioning: Pre-Installed
Calificación energética
Calificación energética:
B

Descripción

Villas de obra nueva situadas en término de Aspe.

Villas de obra nueva con varios modelos a elegir entre 2, 3 o 4 dormitorios, de una o 2 plantas y construidas con losa o con estructura: dependiendo del modelo y la parcela elegida, se calculará el precio exacto.

Todas las villas se construyen en parcelas rústicas de más de 10.000 m2 de los cuales se vallarán unos 2.500 m2.

Las villas disponen de cocina americana con el salón, armarios empotrados, piscina privada, porche, trastero y plaza de parking exterior.

Hay varias parcelas a elegir, para el cálculo del precio se ha considerado una parcela con un precio de 77.500 eur (si se elige otra parcela, se pagará o abonará la diferencia según el precio de la misma).

Realizada en régimen de auto promoción, entrega en unos 12 meses desde la concesión de la licencia.

Si busca un entorno tranquilo, cerca de pueblos típicos españoles alejados de la masificación turística, rodeado de montañas, con una amplísima parcela y a unos 30 minutos del mar, esta es su casa.

Aspe es un típico pueblo español con todos los servicios para el día a día, rodeado de montañas y con varios parajes naturales en las cercanías donde se pueden hacer rutas de senderismo o mountain bike.

Situado a 25 km de la playa, a 9 km de Elche y a unos 20 km del aeropuerto de Alicante.

Localización

Economía

Esta información que se proporciona aquí está sujeta a errores y no forma parte de ningún contrato. La oferta se puede cambiar o retirar sin previo aviso. Los precios no incluyen los costes de compra

Calcular hipoteca

Cambio de divisas

  • Libras: 430.322 GBP
  • Rublo Ruso: 430.322 RUB
  • Franco Suizo: 455.969 CHF
  • Yuan Chino: 3.983.452 CNY
  • Dolar: 585.698 USD
  • Corona Sueca: 5.399.316 SEK
  • Corona Noruega: 5.389.107 NOK

Más información

Responsable del tratamiento: Naranja Spain, Finalidad del tratamiento: Gestión y control de los servicios ofrecidos a través de la página Web de Servicios inmobiliarios, Envío de información a traves de newsletter y otros, Legitimación: Por consentimiento, Destinatarios: No se cederan los datos, salvo para elaborar contabilidad, Derechos de las personas interesadas: Acceder, rectificar y suprimir los datos, solicitar la portabilidad de los mismos, oponerse altratamiento y solicitar la limitación de éste, Procedencia de los datos: El Propio interesado, Información Adicional: Puede consultarse la información adicional y detallada sobre protección de datos Aquí.

© 2026 Naranja Spain · Nota legal

Privacidad · Cookies · Mapa Web · Diseño: Mediaelx