
Elegantes villas independientes con piscina privada en Peraleja Golf Resort - Costa Cálida
Casas independientes de estilo mediterráneo en una comunidad cerrada de golf
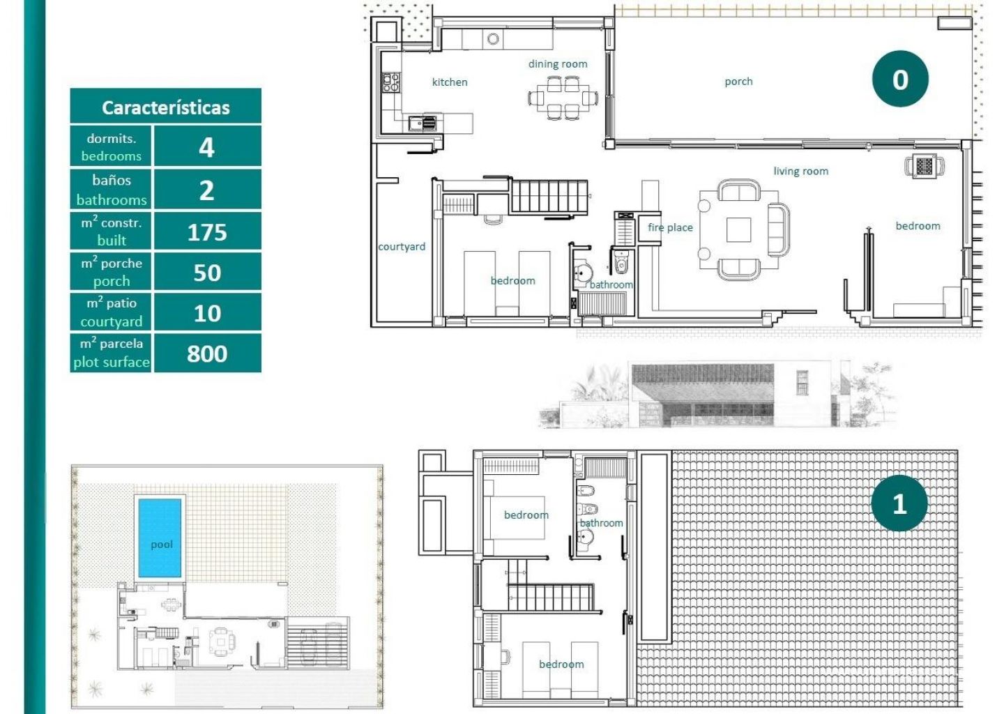
20 villas independientes con 6 modelos a elegir con 2, 3 o 4 dormitorios y 1, 2 o 3 plantas en parcelas desde 375 a 800 m2. Algunas unidades tienen solárium en la azotea.
Situadas en el prestigioso Peraleja Golf Resort, en la región murciana del sur de España. Estas modernas casas mediterráneas se ubican en amplias parcelas , cada una de ellas con piscina privada, jardín y aparcamiento. Diseñadas con techos inclinados y materiales naturales como la madera y la piedra, estas casas se integran perfectamente en el paisaje circundante, al tiempo que ofrecen interiores elegantes y atemporales.
Vida cómoda con acabados de primera
Cada casa cuenta con:
Cocina americana totalmente amueblada con electrodomésticos
Luminoso salón-comedor con una acogedora chimenea de leña
Aire acondicionado centralizado y calefacción por radiadores de gas
Puerta de entrada blindada y puerta de acceso motorizada para vehículos
Piscina privada (3,5x5,5 m) con ducha exterior
Puntos de agua e iluminación exteriores
Jardín totalmente ajardinado listo para disfrutar
Estas propiedades han sido cuidadosamente diseñadas por un arquitecto de renombre, combinando líneas elegantes con texturas naturales, creando un entorno único y armonioso dentro de una comunidad cerrada y segura.
La vida en Peraleja Golf Resort - Naturaleza y seguridad
Las casas están situadas dentro de Peraleja Golf Resort, que cuenta con una puerta de seguridad 24 horas, piano bar y casa club con restaurante gourmet. El complejo está rodeado de zonas naturales protegidas donde se están desarrollando circuitos de senderismo, footing y ciclismo para los residentes. El campo de golf de 18 hoyos, diseñado originalmente por el legendario Severiano Ballesteros, está siendo renovado y su reapertura está prevista para finales de 2025. Algunas viviendas y el club social gozan de vistas lejanas al mar.
Cómoda ubicación cerca de playas y ciudades
Este tranquilo complejo ofrece un excelente acceso a lugares clave:
Ciudades de Sucina y Avileses - 3-5 km
Playas del Mar Menor - 20 km (20 min en coche)
Ciudad de Murcia - 25 km (20 min en coche)
Aeropuerto de Murcia (RMU) - 25 km (15 min en coche)
Aeropuerto de Alicante (ALC) - 80 km (45 min en coche)
Centro Comercial La Zenia Boulevard - 35 km
Disfrute del encanto de la Costa Cálida
Situado cerca de la tradicional ciudad española de Sucina, los residentes pueden disfrutar de tiendas locales, restaurantes y encanto auténtico, sin dejar de estar cerca de la costa y de la vibrante vida de la ciudad. Esta zona se ha hecho cada vez más popular entre los compradores internacionales por su calidad de vida, buenas infraestructuras, maravilloso clima durante todo el año y acceso a parajes naturales y al mar.
Póngase en contacto con nosotros hoy mismo para conseguir la villa de sus sueños en Peraleja Golf y empiece a disfrutar de la vida en la Costa Cálida.
Esta información que se proporciona aquí está sujeta a errores y no forma parte de ningún contrato. La oferta se puede cambiar o retirar sin previo aviso. Los precios no incluyen los costes de compra