ADOSADOS DE OBRA NUEVA EN ALTAONA GOLF RESORT, MURCIA

  • Ref.: NB-39564
  • 106m2
  • 143m2
  • 3
  • 2
  •  

Características

Habitaciones: 3
Baños: 2
Construidos: 106m2
Parcela: 143m2
Calificación energética: B
Distancia a la playa: 30000 Mts.
Jardín
Gated
Near Commercial Center
Air Conditioning: Pre-Installed
Double Bedrooms: 3
Communal Pool
Near Golf / Golf Resort Property
Key Ready
Useable Build Space: 90 Msq.
Terrace: 51 Msq.
Location: Rural, Mountain, Urbanisation
Parking - Space
Beach: 30000 Meters
Calificación energética
Calificación energética:
B

Descripción

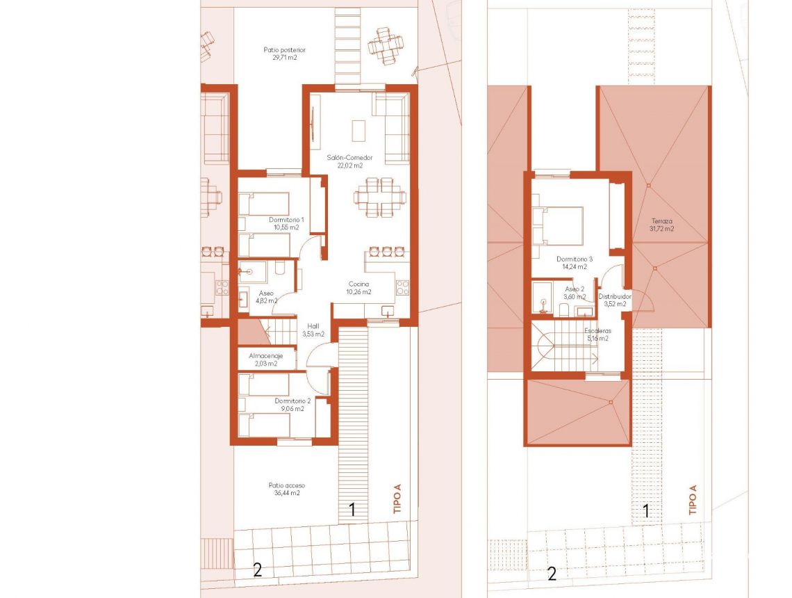
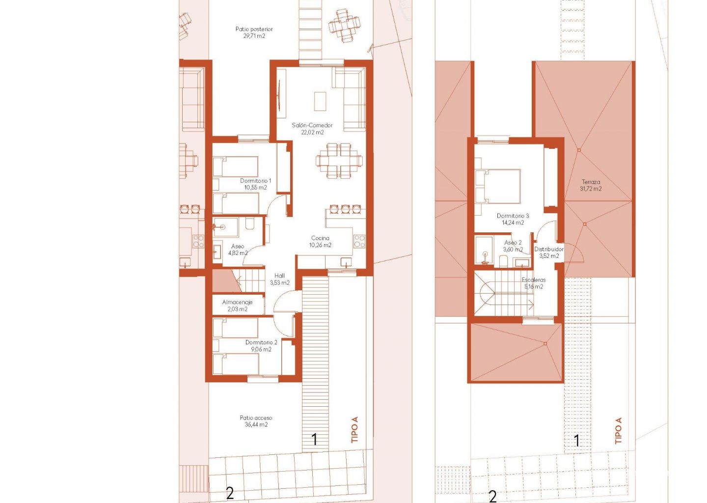
ADOSADOS DE OBRA NUEVA EN ALTAONA GOLF RESORT, MURCIA Residencial de obra nueva de bonitos adosados en Altaona Golf resort, Murcia. Situado en un entorno privilegiado donde podemos vivir tranquilamente, en contacto con la naturaleza y la montaña, conseguimos calidad de vida, aire puro y espacios abiertos. Las hermosas casas adosadas de 2 niveles en Altaona Golf and Country Village son perfectas para abrazar el estilo de vida mediterráneo. Casas soleadas diseñadas con un estilo de vida al aire libre en mente, cuenta con 3 dormitorios, 2 baños, cocina abierta con zona de estar, terrazas, jardines delanteros y traseros con espacio para una piscina. Una opción de piscina privada con un coste adicional. Exclusivo residencial de Obra Nueva situado en Altaona Golf a tan solo 15 minutos en coche del centro de Murcia capital y a 20 minutos de las playas podrá disfrutar de la tranquilidad y seguridad que ofrece el Campo de Golf que cuenta con 18 hoyos y la comodidad de vivir cerca de todos los servicios. El aeropuerto de Murcias Corvera a solo 15 minutos en coche.

Localización

Economía

Esta información que se proporciona aquí está sujeta a errores y no forma parte de ningún contrato. La oferta se puede cambiar o retirar sin previo aviso. Los precios no incluyen los costes de compra

Calcular hipoteca

Cambio de divisas

  • Libras: 277.938 GBP
  • Rublo Ruso: 277.938 RUB
  • Franco Suizo: 294.155 CHF
  • Yuan Chino: 2.552.013 CNY
  • Dolar: 369.120 USD
  • Corona Sueca: 3.486.399 SEK
  • Corona Noruega: 3.585.914 NOK

Más información

Responsable del tratamiento: Naranja Spain, Finalidad del tratamiento: Gestión y control de los servicios ofrecidos a través de la página Web de Servicios inmobiliarios, Envío de información a traves de newsletter y otros, Legitimación: Por consentimiento, Destinatarios: No se cederan los datos, salvo para elaborar contabilidad, Derechos de las personas interesadas: Acceder, rectificar y suprimir los datos, solicitar la portabilidad de los mismos, oponerse altratamiento y solicitar la limitación de éste, Procedencia de los datos: El Propio interesado, Información Adicional: Puede consultarse la información adicional y detallada sobre protección de datos Aquí.

Propiedades similares

© 2026 Naranja Spain · Nota legal

Privacidad · Cookies · Mapa Web · Diseño: Mediaelx