
VILLAS DE LUJO DE OBRA NUEVA EN FINESTRAT CON VISTAS AL MAR
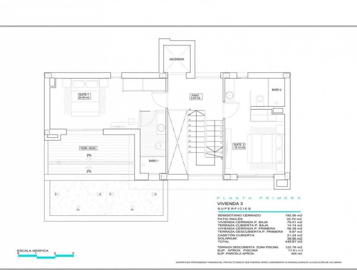
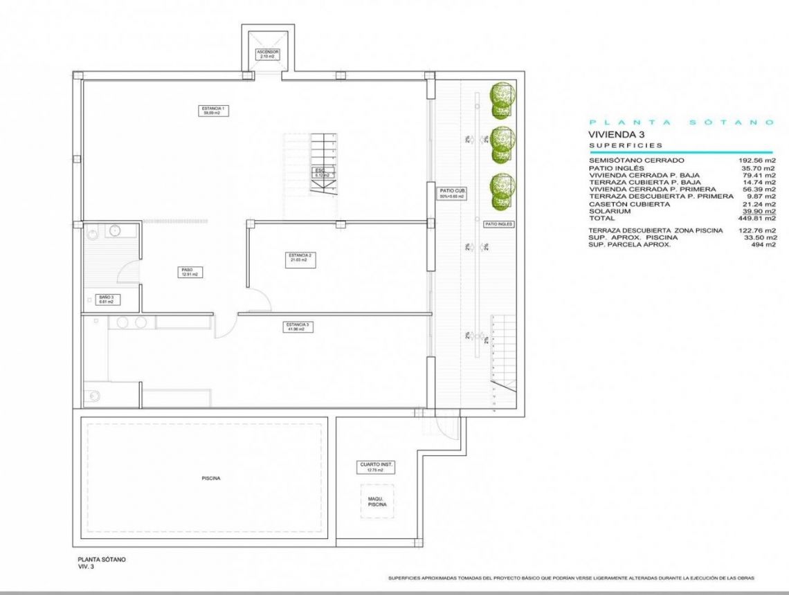
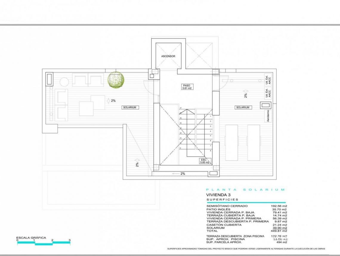
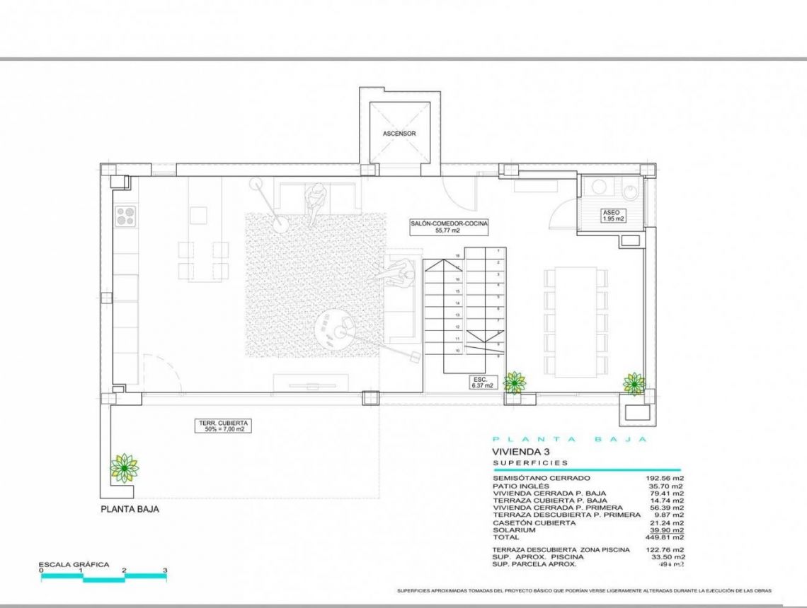
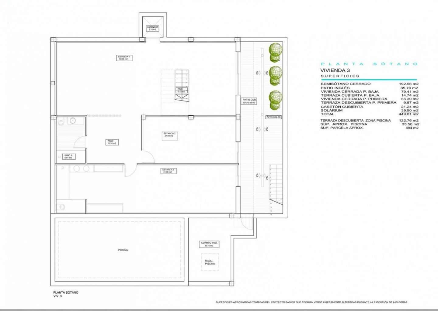
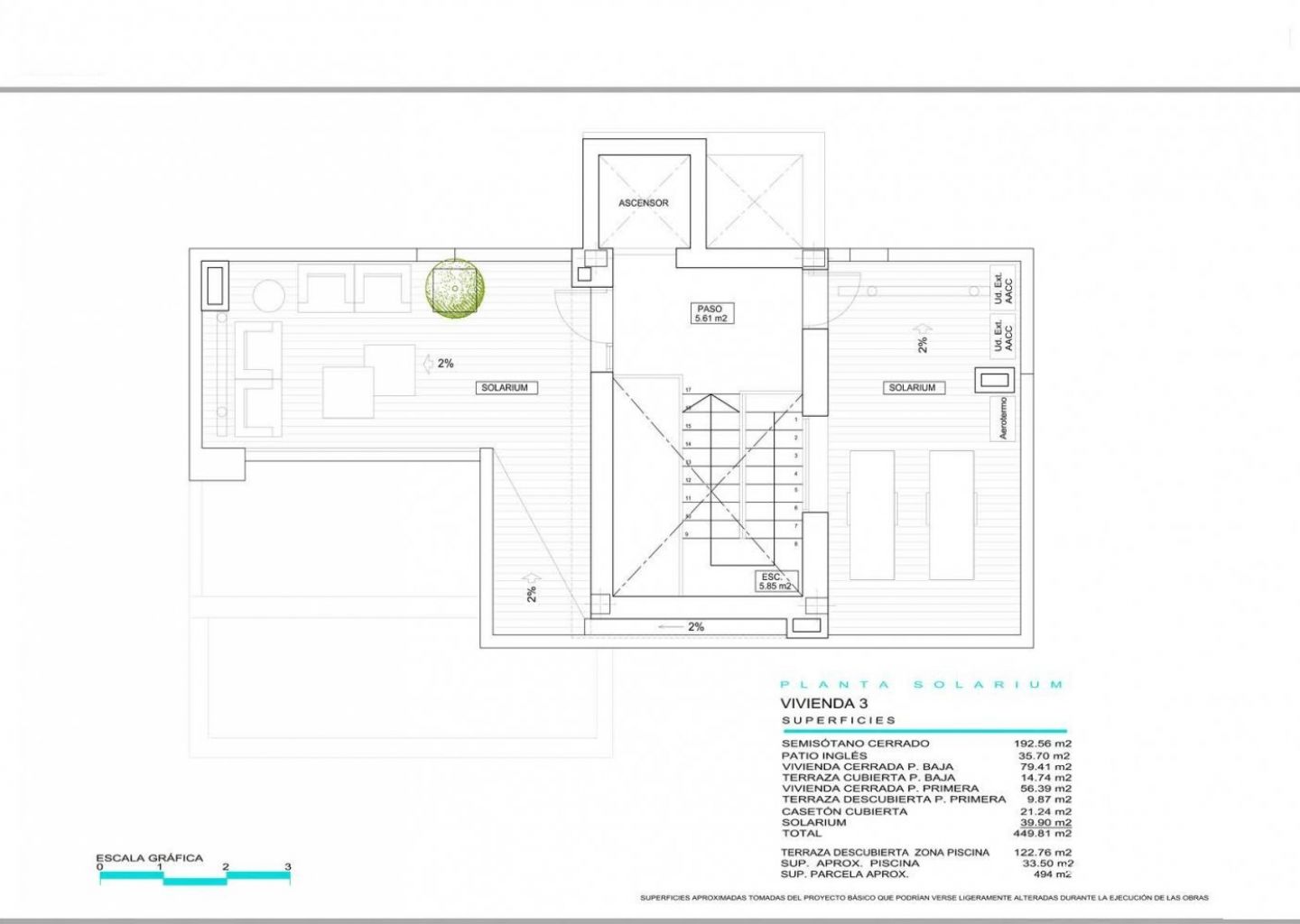
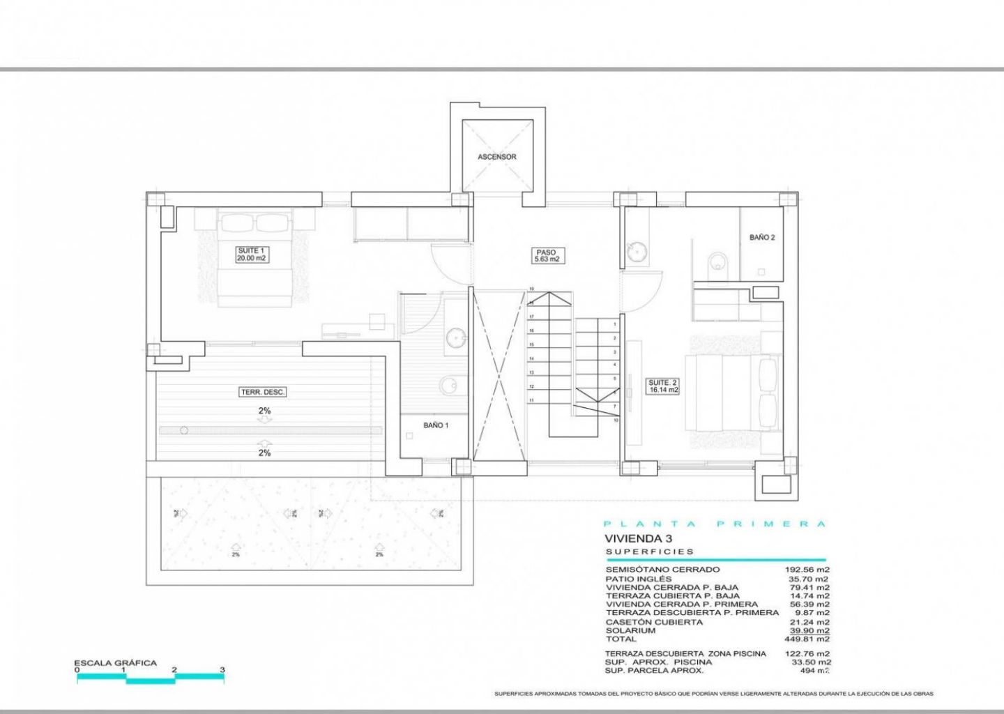
Villas de lujo ubicadas en complejo residencial Obra Nueva en Finestrat. Estas villas constan de dos plantas, solárium, sótano y jardín interior con piscina privada.
Cada villa tiene su propio ascensor.
El solárium ofrece una vista amplia e inolvidable de Benidorm y el mar.
Estas villas son únicas por su diseño y comodidades: una gran sala de estar, amplios dormitorios en suite en el primer piso, un solárium para relajarse y disfrutar de los atardeceres, una piscina infinita contemporánea y una gran terraza para vacaciones y relajación.
Residencial situado a 5 min en coche de todos los servicios que ofrece Benidorm y en un entorno con una temperatura media anual de 20ºC y 300 días de sol al año, a 44 km del aeropuerto de Alicante, a 3 km del mar y a 200 metros del golf.
Esta información que se proporciona aquí está sujeta a errores y no forma parte de ningún contrato. La oferta se puede cambiar o retirar sin previo aviso. Los precios no incluyen los costes de compra