
VILLAS DE OBRA NUEVA EN SAN MIGUEL DE SALINAS
Villas de obra nueva situados en San Miguel de Salinas.
Villas de diseño moderno creados para disfrutar del sol de España.
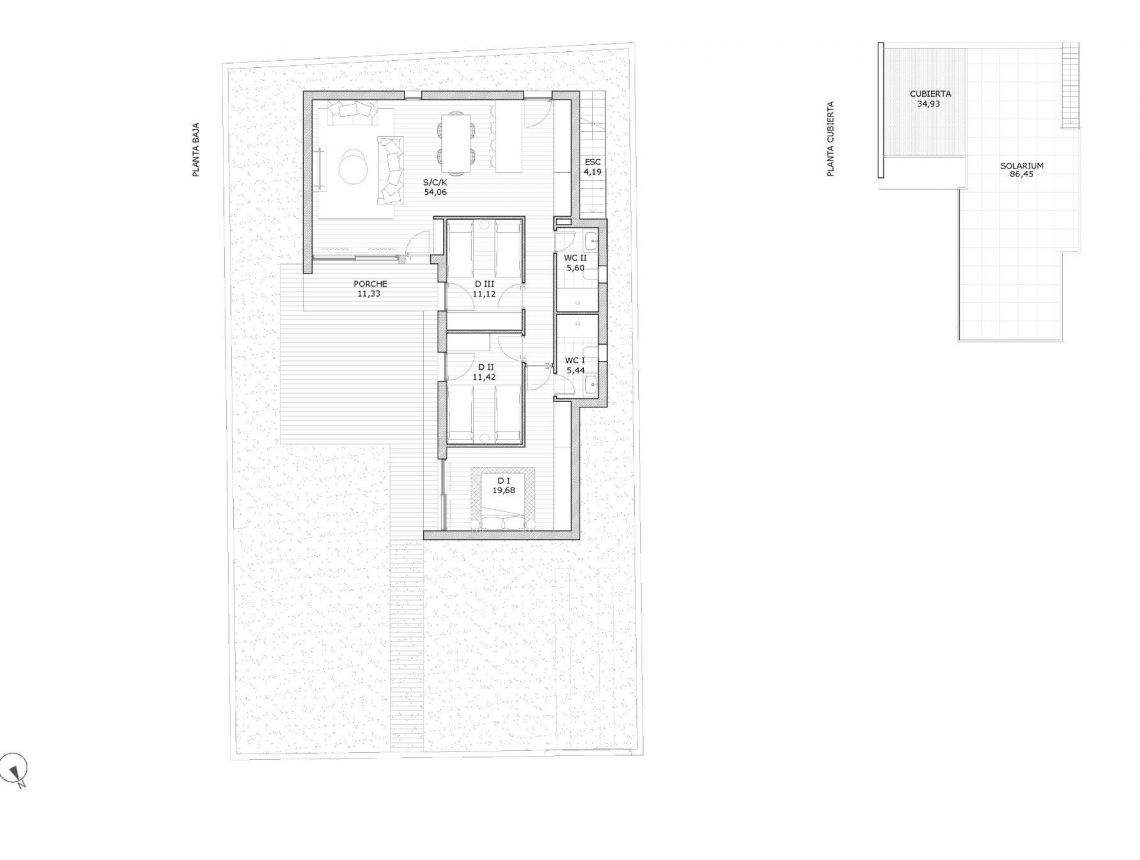
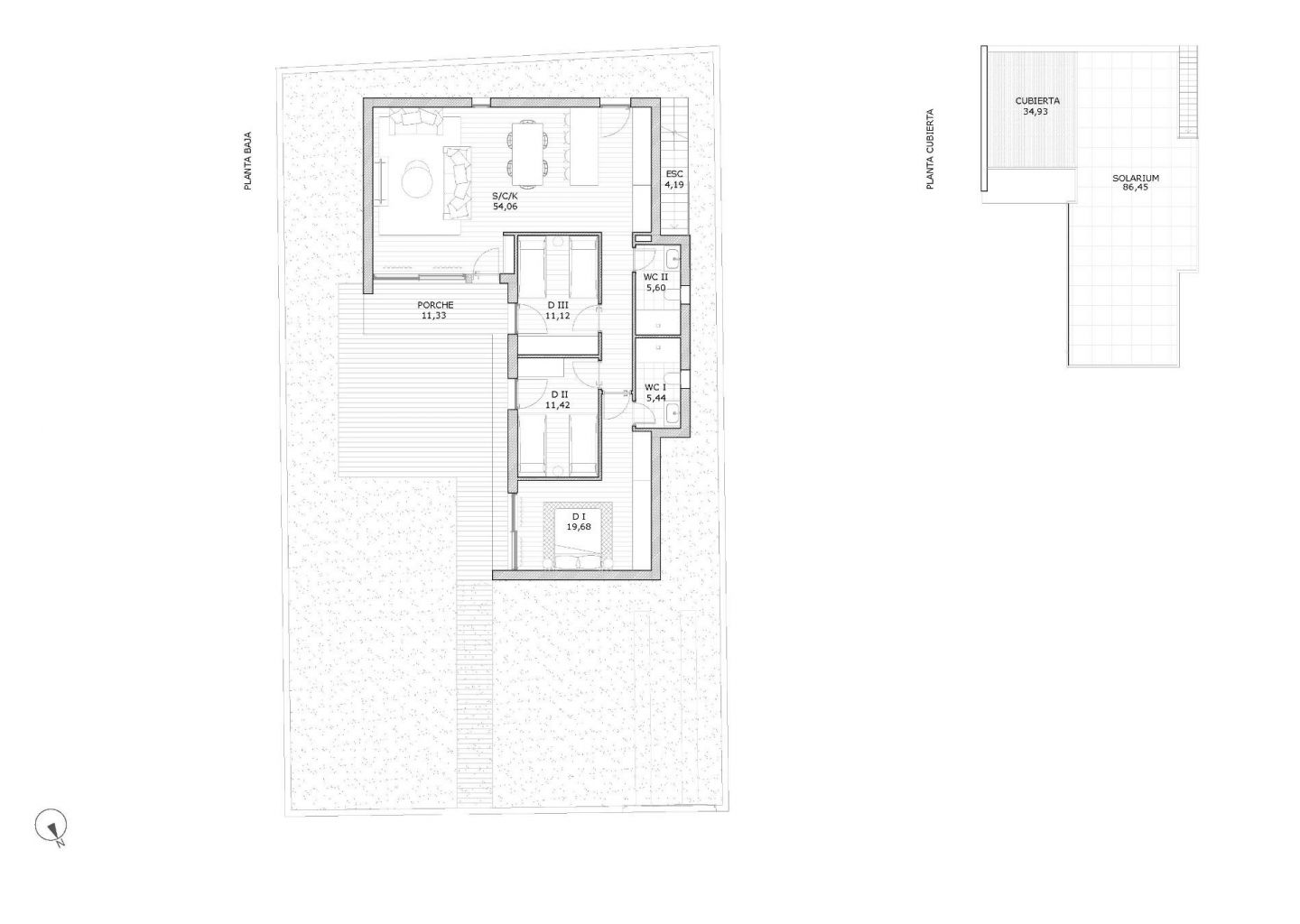
Villas de 1 planta, 3 dormitorios, 2 baños, cocina americana con amplio salón, armarios empotrados, terraza y solarium privado.
Cada villa tiene una parcela independiente con plaza de aparcamiento.
Posibilidad de piscina privada con coste adicional.
San Miguel de Salinas situado cerca de los campos de golf Las Colinas y Campoamor, ofrece unas vistas excepcionales de las lagunas de Torrevieja y La Mata.
San Miguel de Salinas es un municipio de la Comunidad Valenciana, España. Situado al sur de la provincia de Alicante, en la comarca de la Vega Baja del Segura cerca de la Región de Murcia.
El aeropuerto de Alicante se encuentra a 35 minutos en coche y el aeropuerto de Murcias Corvera a 1 hora en coche.
Esta información que se proporciona aquí está sujeta a errores y no forma parte de ningún contrato. La oferta se puede cambiar o retirar sin previo aviso. Los precios no incluyen los costes de compra