
Moderne, nybygde villaer i La Herrada Los Montesinos med privat svømmebasseng
Eksklusivt boligprosjekt i fredelige omgivelser
Dette eksklusive boligprosjektet med 16 moderne villaer ligger i det prestisjefylte boligområdet La Herrada i Los Montesinos, og tilbyr privatliv, komfort og en utmerket livskvalitet. La Herrada er kjent for sin fredelige boligatmosfære, nærheten til dagligdagse fasiliteter og sin privilegerte beliggenhet mellom de berømte saltslettene Torrevieja og La Mata. Det er et ideelt sted for de som søker en avslappet og sunn middelhavsstil i den sørlige delen av Costa Blanca.
Moderne design med optimalisert interiør
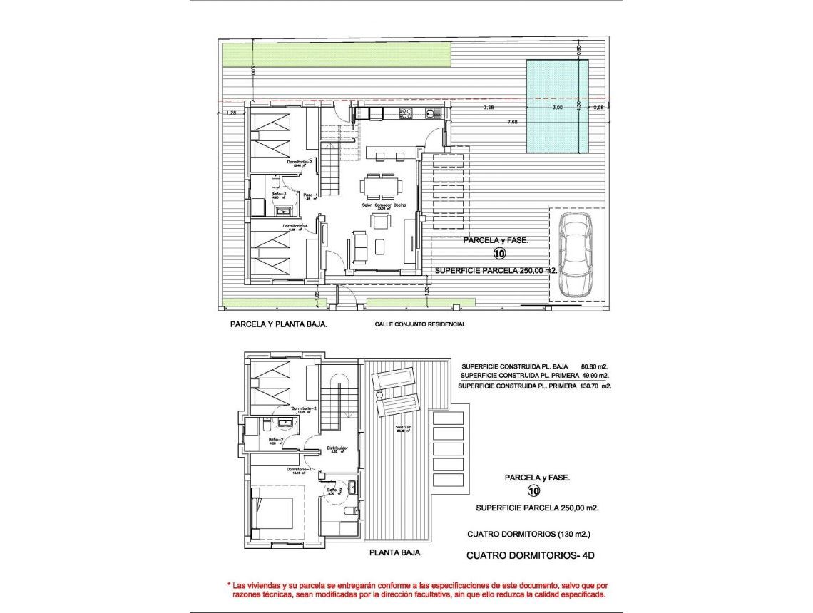
Hver villa har 130 m² godt fordelt boareal fordelt på to etasjer, designet for å maksimere naturlig lys og funksjonalitet. Eiendommene er bygget på tomter fra 250 m² og tilbyr romslige uteområder som er perfekte for soling, underholdning eller avslapning ved det private bassenget.
Komfortabel planløsning over to etasjer
Første etasje har en åpen stue med fullt integrert kjøkken og direkte tilgang til hagen og bassengområdet. Denne etasjen har også to soverom, et komplett bad og et praktisk vaskerom.
Ovenpå er det to romslige soverom, hvert med eget bad, hvorav det ene er en-suite. Begge soverommene har tilgang til en 28 m² åpen privat terrasse. For de som ønsker enda mer uteplass, er det et valgfritt solarium på taket tilgjengelig mot en ekstra kostnad.
Høy kvalitet på finish og moderne funksjoner
Villaene har kvalitetsfinish som baderomsmøbler, speil, dusjvegger og gulvvarme i alle bad. Det er forhåndsinstallert for sentral klimaanlegg, en motorisert inngangsport for biler, privat parkering på tomten og inngjerdet tilgang til boligområdet via en privat intern vei.
Førsteklasses beliggenhet nær viktige fasiliteter og attraksjoner
Guardamar og Torrevieja strender 9 km unna
La Marquesa Golf, La Finca Golf og Vistabella Golf mindre enn 5 km unna
Alicante flyplass 29 km unna
Naturparker, saltsletter, sykkelruter og turstier i nærheten
Bo komfortabelt i hjertet av Costa Blanca
Disse nybygde villaene i Los Montesinos tilbyr den perfekte kombinasjonen av moderne komfort, naturlige omgivelser og utmerket tilgjengelighet. Enten du er på utkikk etter en permanent bolig eller et feriehus, tilbyr dette prosjektet alt du trenger for å nyte en fredelig og komfortabel middelhavsstil. Kontakt oss i dag for å avtale en visning og sikre deg ditt nye hjem i La Herrada.
Denne informasjonen gitt her er underlagt feil og inngår ikke i noen kontrakt. Tilbudet kan endres eller trekkes tilbake uten varsel. Prisene inkluderer ikke andre kostnader