
Moderne nybyggede villaer i La Herrada Los Montesinos med privat basseng
Eksklusivt boligprosjekt i fredelige omgivelser
Dette eksklusive boligprosjektet med 16 moderne villaer ligger i den prestisjetunge urbanisasjonen La Herrada i Los Montesinos, og tilbyr privatliv, komfort og en utmerket livskvalitet. La Herrada er kjent for sin rolige boligatmosfære, nærheten til daglige tjenester og sin privilegerte beliggenhet mellom de berømte saltsjøene Torrevieja og La Mata. Det er et ideelt sted for de som søker en avslappet og sunn middelhavsstil i den sørlige delen av Costa Blanca.
Moderne design med optimalisert interiør
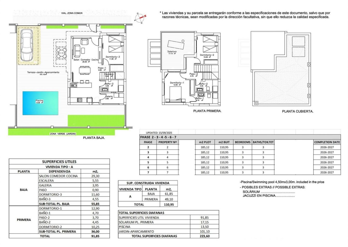
Hver villa har 110 m² godt planlagt boareal fordelt på to etasjer, designet for å maksimere naturlig lys og funksjonalitet. Eiendommene er bygget på tomter fra 185 m² og tilbyr generøse uteområder som er perfekte for soling, underholdning eller avslapning ved det private bassenget.
Komfortabel planløsning over to etasjer
Første etasje har en åpen stue med fullt integrert kjøkken og direkte tilgang til hagen og bassengområdet. Denne etasjen har også ett soverom, et komplett bad og et praktisk vaskerom.
I øverste etasje er det to romslige soverom, hvert med eget bad, hvorav det ene har eget bad. Begge soverommene har tilgang til en privat åpen terrasse på 17 m². For de som ønsker enda mer uteplass, er det et valgfritt solarium på taket tilgjengelig mot en ekstra kostnad.
Høy kvalitet og moderne funksjoner
Villaene har kvalitetsdetaljer som baderomsmøbler, speil, dusjvegger og gulvvarme i alle bad. Det er forhåndsinstallert for sentral klimaanlegg, en motorisert inngangsport for kjøretøy, privat parkering på tomten og en inngjerdet boligadkomst via en privat intern gate.
Førsteklasses beliggenhet nær viktige fasiliteter og attraksjoner
Strendene i Guardamar og Torrevieja 9 km
La Marquesa Golf, La Finca Golf og Vistabella Golf innen 5 km
Alicante lufthavn 29 km
Naturparker, saltsjøer, sykkelruter og turstier i nærheten
Bo komfortabelt i hjertet av Costa Blanca
Disse nybygde villaene i Los Montesinos tilbyr den perfekte kombinasjonen av moderne komfort, naturlige omgivelser og utmerket tilgjengelighet. Enten du er på utkikk etter en permanent bolig eller et feriehus, tilbyr dette prosjektet alt du trenger for å nyte en fredelig og praktisk middelhavsstil. Kontakt oss i dag for å avtale en visning og sikre deg ditt nye hjem i La Herrada.
Denne informasjonen gitt her er underlagt feil og inngår ikke i noen kontrakt. Tilbudet kan endres eller trekkes tilbake uten varsel. Prisene inkluderer ikke andre kostnader