
Naujos statybos prabangi vila su vaizdu į jūrą La Alberca Polop
Šiuolaikinis dizainas ramioje kalnų aplinkoje
Ši išskirtinė naujos statybos vila yra La Alberca, ramioje gyvenamojoje vietovėje Polop kalnuose. Apsupta miškų ir gamtos, iš šios nuosavybės atsiveria panoraminis vaizdas į Viduržemio jūrą, kalnus ir istorinę Polop miestelį. Sukurta vertikalios architektūros elegancijos, vila derina privatumą, funkcionalumą ir sklandų gyvenimą viduje ir lauke.
Polop – žavus Costa Blanca kaimelis, žinomas dėl savo tradicinės atmosferos ir gamtos grožio. Vila yra netoli visų La Nucia paslaugų, įskaitant parduotuves, restoranus, sporto centrus ir mokyklas. Paplūdimiai ir gyvybingi pakrantės miesteliai, tokie kaip Benidormas ir Altea, yra vos už 15 minučių kelio.
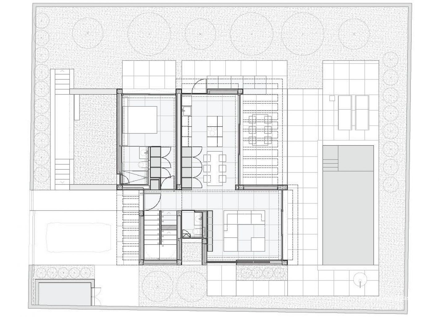
Kruopščiai suplanuotas išdėstymas per tris aukštus
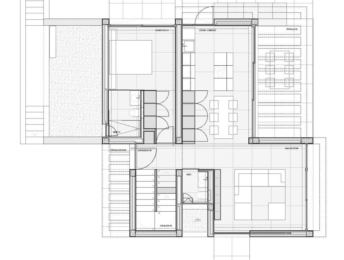
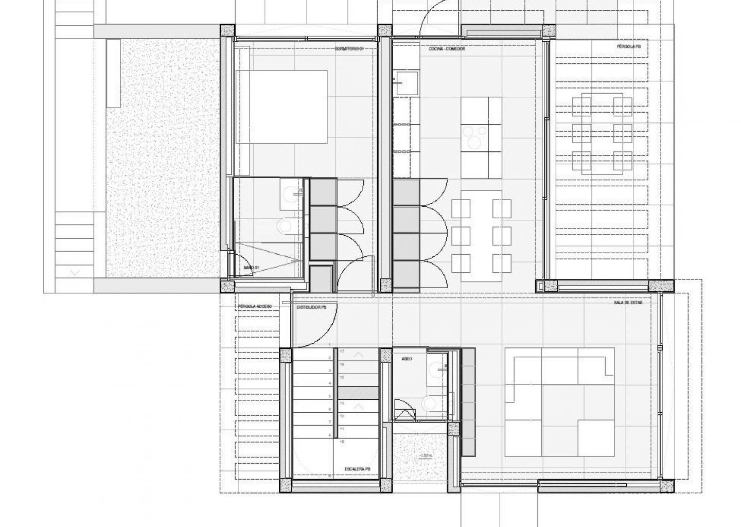
Pagrindiniame aukšte jus pasitinka prieškambaris su įmontuota spinta ir svečių tualetu. Šiame aukšte yra viena miegamojo kambarys su vonios kambariu, kurio langai nuo grindų iki lubų atsidaro į privačią šoninę terasą. Šviesi atvira svetainė ir valgomasis yra tiesiogiai sujungti su pergola dengta terasa ir privačiu jūros vandens baseinu, sukuriant harmoningą gyvenimą viduje ir lauke.
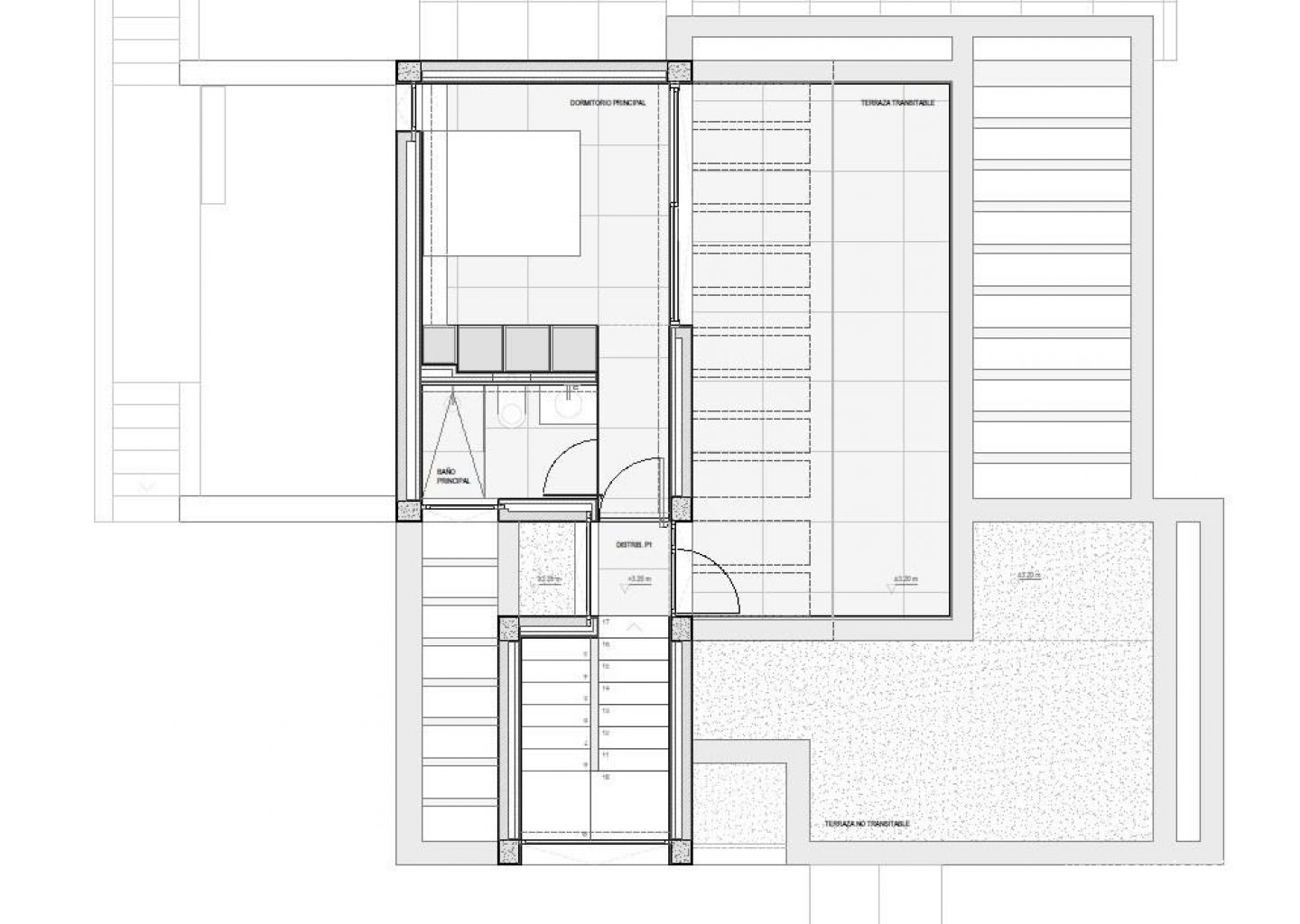
Viršutinis aukštas skirtas išskirtinai pagrindiniam miegamajam. Šiame privačiame aukšte yra miegamasis su vonios kambariu, iš kurio galima patekti į įspūdingą 40 m2 terasą ir grožėtis kvapą gniaužiančiais panoraminiais jūros ir kalnų vaizdais, užtikrinant maksimalų privatumą ir komfortą.
Rūsyje yra du papildomi miegamieji su dideliais langais, pro kuriuos atsiveria gražiai suprojektuotas įgilintas kiemas, užpildantis erdvę natūralia šviesa. Šį aukštą papildo bendras vonios kambarys, pilnai įrengta skalbykla su „Haier“ prietaisais ir dvi erdvės techninės bei sandėliavimo patalpos.
Aukščiausios kokybės savybės ir energijos efektyvumas
Viloje yra aukštos kokybės apdaila ir pažangios sistemos, tokios kaip:
Centrinė salos virtuvė su integruotais BOSCH prietaisais
Natūralaus akmens stalviršiai viduje ir lauke
Panoraminiai langai su saulės apsauga ir sustiprintu stiklu
Mitsubishi aeroterminė oro kondicionavimo sistema
Grindų šildymo įrengimas
Energijos efektyvumo klasė A
Išmaniosios namų sistemos įrengimas
Privatus parkavimas dviem automobiliams
Sutvarkytas Viduržemio jūros regiono stiliaus sodas su automatine laistymo sistema ir elegantiškas apatinio aukšto kiemas užtikrina privatumą ir poilsį. Stogas yra paruoštas saulės baterijų montavimui.
Puiki vieta ir atstumai
Polop centras 2 km
La Nucia 4 km
Benidorm paplūdimiai 12 km
Altea 10 km
Villaitana Golf 14 km
Alicante oro uostas 65 km
Atraskite savo privačią poilsio vietą Polop
Ši moderni vila su vaizdu į jūrą siūlo dizainą, privatumą ir komfortą vienoje iš patraukliausių gamtos vietų Costa Blanca. Susisiekite su mumis šiandien, kad susitartumėte dėl privataus apžiūrėjimo ir užsitikrintumėte savo naujus namus La Alberca Polop.
Ši čia pateikta informacija yra klaidų ir nėra jokios sutarties dalis. Pasiūlymą galima pakeisti arba atšaukti be išankstinio įspėjimo. Kainos neįtraukia pirkimo išlaidų.