
Rengiama nauja vila su vaizdu į jūrą La Alberca Polop
Prabangi moderni vila natūralioje kalnų aplinkoje
Ši rengiama šiuolaikiška vila yra La Alberca, ramioje Polop gyvenamojoje zonoje, apsupta miškų ir kalnų. Įsikūrusi aukštoje vietoje, iš šios nuosavybės atsiveria panoraminis vaizdas į Viduržemio jūrą, kalnus ir istorinį Polop miesto centrą. Vila siūlo privatumą, ramybę ir puikų susisiekimą su pakrante bei artimais miestais.
Polop – tai žavus kaimelis Marina Baixa regione, Costa Blanca, žinomas dėl savo tradicinio charakterio ir gamtos. Nuosavybė yra netoli visų La Nucia paslaugų, įskaitant parduotuves, restoranus, sporto centrus ir mokyklas, o paplūdimiai ir gyvybingi pakrantės miesteliai yra vos už kelių minučių kelio automobiliu.
Erdvus išplanavimas pagrindiniame aukšte, rūsyje ir solariume
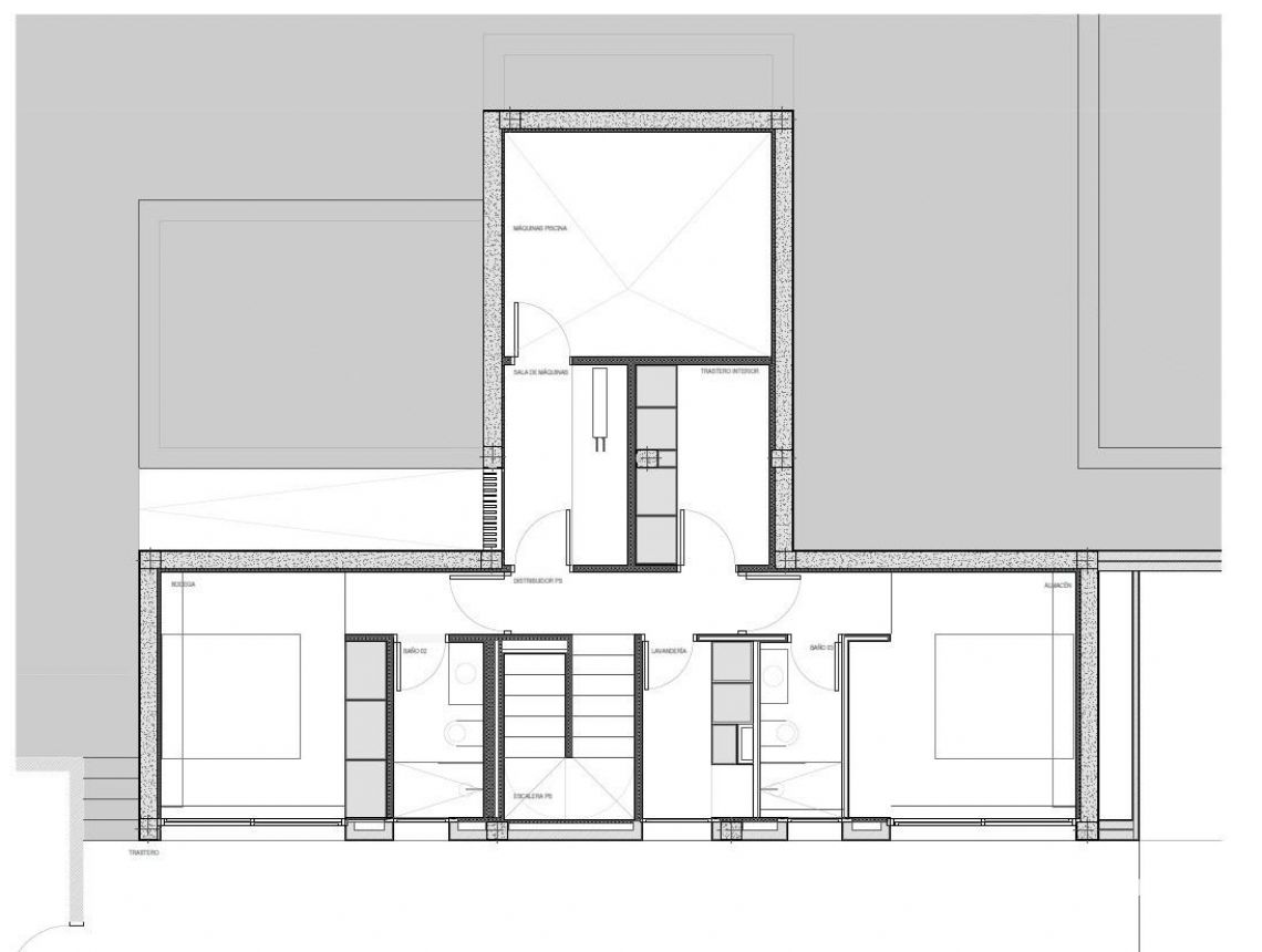
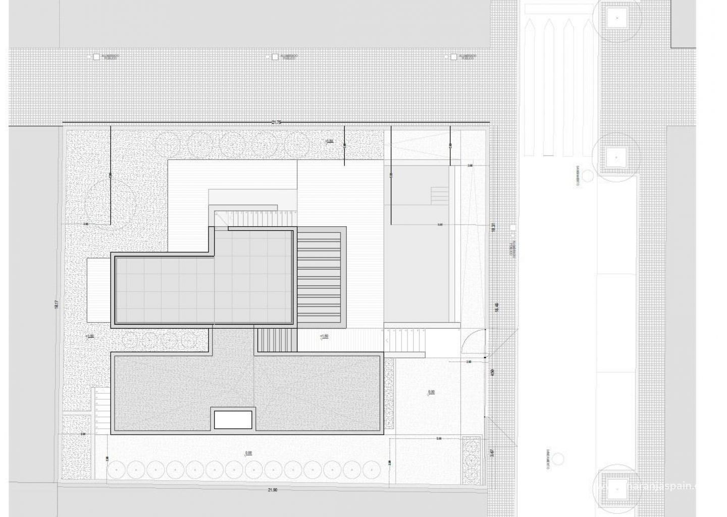
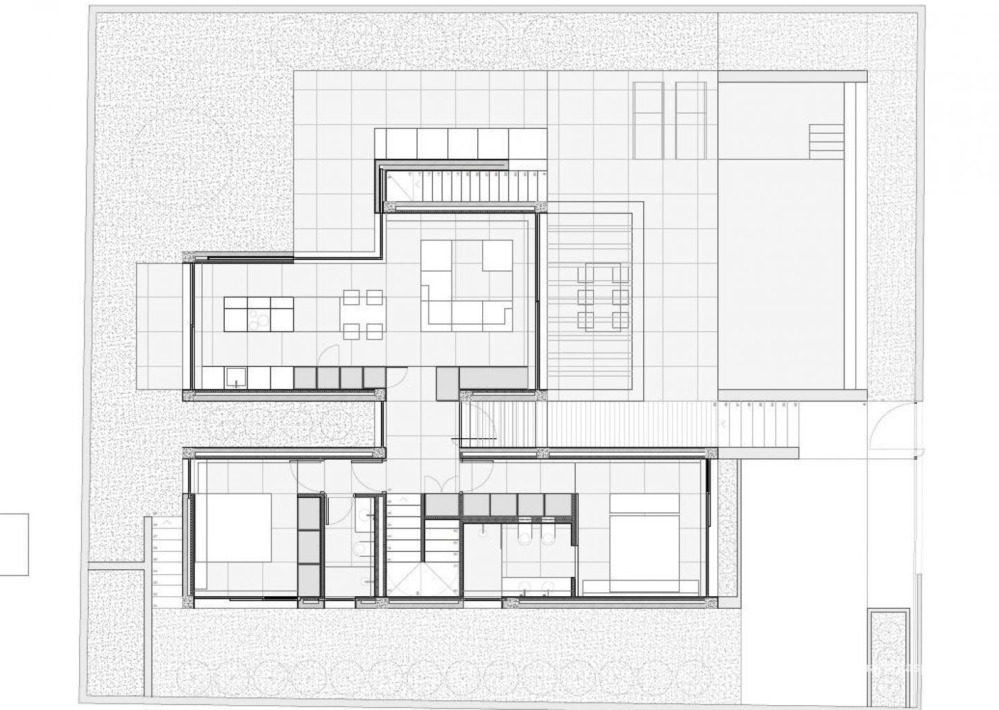
Vila yra išdėstyta pagrindiniame aukšte, rūsyje ir stogo solariume, siūlant erdvią gyvenamąją erdvę ir lankstumą.
Pagrindiniame aukšte yra svetinga prieškambario salė su įmontuota spinta, vedanti į du miegamuosius su vonios kambariais, įskaitant pagrindinį miegamąjį su pakeliamomis langų durimis, vedančiomis į Juliette balkoną ir terasą. Atvira svetainė ir valgomasis yra sujungti su dengta pergola terasa ir privačiu jūros vandens baseinu.
Rūsyje yra du papildomi miegamieji su vonios kambariais ir dideliais langais, lankstus žaidimų kambarys arba kino salė su vandens ir elektros jungtimis baro zonai, pilnai įrengta skalbykla su „Haier“ prietaisais ir dvi techninės sandėliavimo patalpos.
Stogo solariumas suteikia didelę lauko erdvę su panoraminiu vaizdu į jūrą ir yra paruoštas būsimam saulės baterijų įrengimui. Lauko virtuvė, keli sandėliavimo spintelės ir Viduržemio jūros stiliaus sodas su automatine laistymo sistema užbaigia išorę.
Aukščiausios klasės savybės ir energijos efektyvumas
Ši vila išsiskiria aukščiausios kokybės apdaila ir pažangiais įrenginiais, įskaitant:
Centrinė virtuvės sala su integruotais BOSCH prietaisais
Natūralaus akmens stalviršiai viduje ir lauke
Grindų šildymo įrengimas
Mitsubishi aeroterminė oro kondicionavimo sistema
Energijos efektyvumo klasė A
Išankstinis išmaniosios namų sistemos įrengimas
Jūros vandens baseinas su papildomu šildymu
Privatus parkavimas dviem automobiliams
Didelės langai su apsauga nuo saulės stiklu maksimaliai padidina natūralios šviesos kiekį, tuo pačiu užtikrinant komfortą ir saugumą.
Puiki vieta ir atstumai
Polop centras 2 km
La Nucia 4 km
Benidorm 12 km
Altea 10 km
Paplūdimiai 10 km
Villaitana Golf 14 km
Alicante oro uostas 65 km
Įsigykite savo svajonių namus Polop
Ši išskirtinė, parengta gyventi vila derina privatumą, dizainą ir panoraminius vaizdus vienoje iš patraukliausių Costa Blanca vidurio zonų. Susisiekite su mumis šiandien, kad susitartumėte dėl privataus apžiūrėjimo ir padarytumėte šią prabangią vilą La Alberca Polop savo naujaisiais namais.
Ši čia pateikta informacija yra klaidų ir nėra jokios sutarties dalis. Pasiūlymą galima pakeisti arba atšaukti be išankstinio įspėjimo. Kainos neįtraukia pirkimo išlaidų.