
Viduržemio stiliaus sublokuoti namai uždaroje golfo bendruomenėje
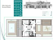
Atraskite 11 išskirtinių vieno aukšto sublokuotų namų prestižiniame Peraleja Golf Resort komplekse, įsikūrusiame Mursijos regione, pietų Ispanijoje. Šie modernūs Viduržemio jūros stiliaus namai stovi erdviuose, maždaug 260 m² sklypuose, kiekvienas iš jų turi privatų baseiną, sodą ir automobilių stovėjimo vietą. Namai suprojektuoti naudojant natūralias medžiagas – medį ir akmenį – bei šlaitinius stogus, todėl harmoningai įsilieja į aplinką, o viduje pasižymi elegantišku, laikui nepavaldžiu dizainu.
Patogus gyvenimas su aukštos kokybės apdaila
Kiekvienas namas pasižymi išmaniai suplanuotu interjeru ir turi:
2 miegamuosius ir 2 vonios kambarius
Pilnai įrengtą virtuvę su buitine technika
Šviesią svetainę–valgomasį su jaukiu židiniu
Centrinį oro kondicionavimą ir dujinį šildymą radiatoriais
Šarvuotas įėjimo duris ir automatinius vartus automobiliams
Privatų baseiną (3,5 x 5,5 m) su lauko dušu
Išorinius vandens ir apšvietimo taškus
Pilnai įrengtą ir apželdintą sodą, paruoštą poilsiui
Šie būstai buvo sukurti žinomo architekto, kuris subtiliai suderino šiuolaikines linijas su natūraliomis tekstūromis, taip sukuriant unikalią ir harmoningą gyvenimo aplinką saugioje uždaroje bendruomenėje.
Gyvenimas Peraleja Golf Resort – gamta ir saugumas
Nameliai yra Peraleja Golf Resort teritorijoje, kurioje veikia 24 val. apsauga, yra fortepijono baras ir klubo namas su gurmanišku restoranu. Kompleksą supa saugomos gamtinės teritorijos, kuriose gyventojams kuriami pasivaikščiojimo, bėgimo ir dviračių takai. 18 duobučių golfo aikštynas, kurį suprojektavo legendinis Severiano Ballesteros, šiuo metu atnaujinamas, o jo atidarymas numatytas 2025 m. pabaigoje. Kai kurie namai ir socialinis klubas turi vaizdą į jūrą.
Patogi vieta šalia paplūdimių ir miestų
Šis ramus kompleksas pasižymi puikiu susisiekimu su svarbiausiomis vietomis:
Sucina ir Avileses miesteliai – 3–5 km
Mar Menor paplūdimiai – 20 km (20 min automobiliu)
Mursijos miestas – 25 km (20 min automobiliu)
Mursijos oro uostas (RMU) – 25 km (15 min automobiliu)
Alikantės oro uostas (ALC) – 80 km (45 min automobiliu)
Prekybos centras La Zenia Boulevard – 35 km
Mėgaukitės Costa Cálida žavesiu
Netoli tradicinio ispanų miestelio Sucina įsikūrę gyventojai gali mėgautis vietinėmis parduotuvėmis, restoranais ir autentiška ispaniška atmosfera, kartu išliekant arti pakrantės bei miesto patogumų. Šis regionas tampa vis populiaresnis tarp tarptautinių pirkėjų dėl aukštos gyvenimo kokybės, geros infrastruktūros, puikaus klimato ištisus metus ir artumo gamtai bei jūrai.
Susisiekite su mumis šiandien ir įsigykite savo svajonių vilą Peraleja Golf kurorte – pradėkite mėgautis gyvenimu prie saulėtos Costa Cálida pakrantės!
Ši čia pateikta informacija yra klaidų ir nėra jokios sutarties dalis. Pasiūlymą galima pakeisti arba atšaukti be išankstinio įspėjimo. Kainos neįtraukia pirkimo išlaidų.