
Rinkitės iš vilų su tradiciniais ispaniškais akcentais arba itin modernių, šviesių ir švarių apdailos variantų.
Siūlomi įvairūs teisėti sklypai (kaimiško stiliaus sklypai, kurių plotas ne mažesnis kaip 10 000 m²), kai kurie iš jų yra pėsčiomis pasiekiami nuo miesto, kiti visiškai privatūs, o populiariausi – vos už 5–10 minučių kelio automobiliu nuo miesto.
Turime sklypą kiekvienam skoniui, visi su nuostabiais vaizdais, į kainą įskaičiuotais vandentiekio ir elektros tiekimu bei sparčiu internetu. Pastatą statė didžiausias ir geriausias vystytojas regione, o apdailai užtikrinti naudojame aukščiausios kokybės medžiagas.
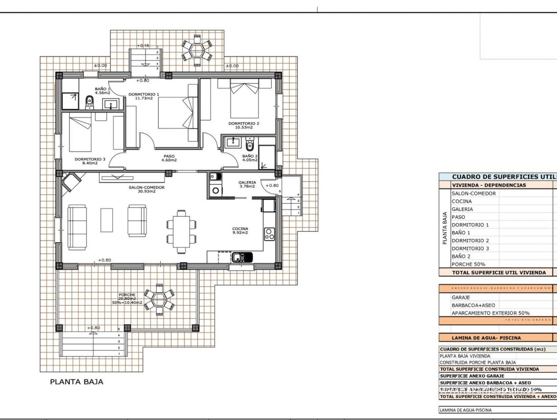
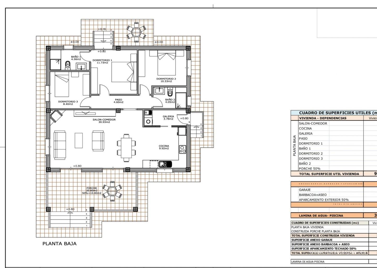
Visuose namuose yra 2 m pločio štampuoto betono terasa aplink baseiną (spalva ir raštas pasirenkami), 1 m pločio terasa aplink namą, varteliai, 3000 m² tvora, ortakinio oro kondicionavimo įrengimas, standartinė virtuvė, apsauginės durys, vokiški varstomi ir pasukami langai (arba stumdomi langai, jei pageidaujama), įmontuotas židinys, televizijos ir interneto įrengimas, žvyruotas privažiavimas ir keli metrai aplink namą bei septikas.
Vonios kambariuose yra dušo kolonėlė, dušo padėklas arba vonia, praustuvai (įvairių spalvų) su kriauklėmis, maišytuvais ir veidrodžiais, taip pat platus sienų plytelių pasirinkimas. Taip pat siūlomas platus keraminių grindų plytelių pasirinkimas įvairių spalvų, įskaitant medžio imitacijos apdailą.
Virtuvėse yra standartinės spintelės su durelėmis ir rankenomis, pagal pateiktus planus, nerūdijančio plieno kriauklė ir maišytuvas, taip pat paruošta orkaitės, indaplovės ir gartraukio įrengimas. Į kainą įskaičiuoti keli granito stalviršiai; kiti akmens stalviršiai galimi kaip papildoma įranga. Buitinė technika neįskaičiuota. Į kainą įskaičiuoti marmuriniai laiptai (kreminiai, balti arba pilki) ir turėklai, taip pat turėklai verandai.
Didelis fiksuotas stiklinis langas laiptinėje, kad patektų daugiau natūralios šviesos.
Galima rinktis plyteles ir baseino laiptelių dizainą. Išoriniams namo laiptams ir palangėms galima rinktis granitą.
Galite suasmeninti namą pagal savo skonį; dauguma vidaus pakeitimų yra nemokami. Namus galima išplėsti, mes netgi galime pastatyti jūsų pačių projektą.
Už papildomą mokestį galite išplėsti savo namą, įsirengdami didesnį baseiną, vienvietį arba dvivietį garažą, svečių namą ir kt.
Gražus ir klestintis Pinoso miestas yra maždaug už 45 minučių kelio nuo Alikantės ir balto smėlio Kosta Blankos paplūdimių, netoli Mursijos ir Alikantės sienos.
Jame gyvena kiek mažiau nei 8000 gyventojų. Pinoso, dar žinomas kaip El Pinosas, savo pavadinimą gavo nuo pušų, dengiančių aplinkinius kalnus. Pinoso siūlo ispanišką kaimo gyvenimo būdą, kuriame nėra šviesoforų ir beveik nėra eismo; praktiškai vienintelės spūstys kyla dėl traktorių, vežančių vynuoges į vyno daryklą. Laukuose auga vynuogynai, migdolmedžiai ir alyvmedžių giraitės. Vasarį laukai nusidažo rausvais migdolų žiedais.
Pinoso mieste yra daug barų, restoranų ir parduotuvių, naujas visą parą veikiantis medicinos centras, odontologijos klinikos, dvi pradinės ir viena vidurinė mokyklos bei teatras. Yra puikus sporto centras su lauko baseinais, teniso kortais, futbolo aikštėmis, sporto sale, biblioteka ir daugybe kitų patogumų, įskaitant gražią pikniko zoną tarp pušų su kepsninėmis, poilsio zonomis ir tekančiu vandeniu.
Ši čia pateikta informacija yra klaidų ir nėra jokios sutarties dalis. Pasiūlymą galima pakeisti arba atšaukti be išankstinio įspėjimo. Kainos neįtraukia pirkimo išlaidų.