Bungalow · New build Alicante, Costa Blanca · Torrevieja · Los balcones

  • Ref.: NB-63840
  • 99m2
  • 76m2
  • 3
  • 2
  •  
340.000€ Informera prisfall

Egenskaper

Sovrum: 3
Badrum: 2
Byggd: 99m2
Tomt: 76m2
Energi~~POS=TRUNC: B
Avstånd till strand: 3500 Mts.
Trädgård
Gated
Number of Parking Spaces: 1
Near Schools
Near Commercial Center
Air Conditioning: Pre-Installed
Double Bedrooms: 3
Communal Pool
Near Golf / Golf Resort Property
Location: Coastal, Urbanisation
Beach: 3500 Meters
Terrace: 27 Msq.
Parking - Space
Useable Build Space: 94 Msq.
Storage / Trastero
Energi~~POS=TRUNC
Energi~~POS=TRUNC:
B

Beskrivning

Nybyggda bostadslägenheter i Los Balcones, Torrevieja

Moderna bostäder i ett förstklassigt bostadsområde
Upptäck detta attraktiva nybyggda bostadsområde i Los Balcones, ett av de mest populära och etablerade områdena i utkanten av Torrevieja. Beläget i en lugn miljö med utmärkt tillgång till alla nödvändiga tjänster, ligger detta bostadsområde bara 4 km från sandstränderna på Costa Blanca. Los Balcones är känt för sin avslappnade atmosfär, breda gator, grönområden och närhet till sjukhus, stormarknader, restauranger och shoppingcenter, vilket gör det idealiskt för boende året runt eller som semesterbostad.

Moderna lägenheter med privata utomhusutrymmen
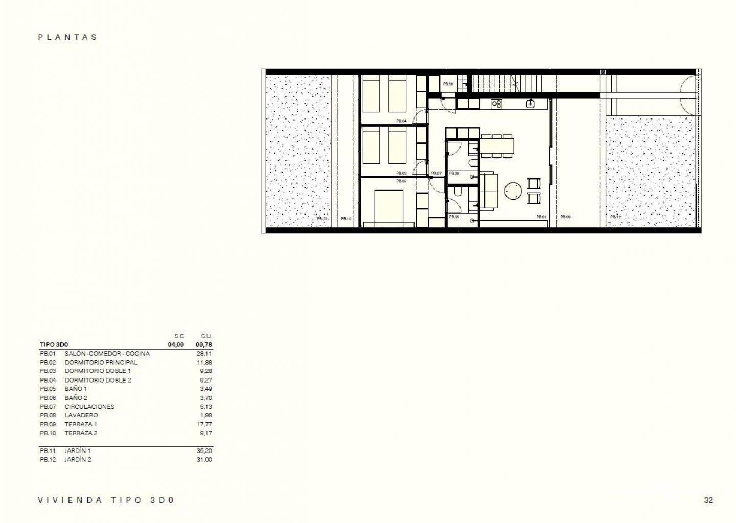
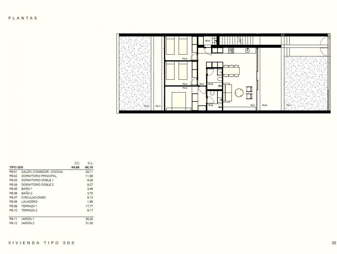
Komplexet består av 52 moderna lägenheter byggda på en total yta av 6700 m2. Varje fastighet har en privat parkeringsplats och ett förråd i källaren. Lägenheterna har 2 eller 3 sovrum och 2 badrum, varav ett är en suite.

Köpare kan välja mellan lägenheter på bottenvåningen med privat trädgård eller lägenheter på övre våningen med rymlig terrass och privat solarium. Dessa planlösningar är utformade för att maximera det naturliga ljuset och erbjuda bekväma inomhus- och utomhusutrymmen för att njuta av Medelhavsklimatet året runt.

Gemensamma utrymmen utformade för avkoppling
Projektet är uppdelat i fyra block som omger ett stort centralt gemensamt utrymme. Detta gröna hjärta i området har en pool med en särskild barnavdelning och vackert anlagda trädgårdar. Dessa gemensamma utrymmen är perfekta för avkoppling, umgänge och familjetid i en säker och vänlig miljö.

Kvalitetsdetaljer och energieffektiv design
Varje lägenhet är byggd enligt moderna standarder och inkluderar förinstallation av luftkonditionering, ett aerotermiskt varmvattensystem för förbättrad energieffektivitet, utomhusbelysning och dubbelglasade fönster. Köken är fullt utrustade och erbjuder ett funktionellt och stilfullt utrymme för det dagliga livet.

Dessa detaljer garanterar hög komfort, lågt underhåll och minskad energiförbrukning, vilket gör bostäderna både praktiska och hållbara.

Utmärkt läge nära stränder och golf
Los Balcones har ett strategiskt läge nära många sevärdheter. Stränderna i Torrevieja ligger cirka 4 km bort. Flera kända golfbanor som Villamartin Golf, Las Ramblas Golf och Campoamor Golf ligger inom 10 till 15 km. Universitetssjukhuset i Torrevieja ligger mindre än 2 km bort, vilket ger bekvämlighet och trygghet.

Torreviejas centrum ligger cirka 5 km bort och är anslutet med buss till Los Balcones, där du hittar ett brett utbud av butiker, restauranger, kulturella evenemang och en livlig småbåtshamn. Alicantes internationella flygplats ligger cirka 42 km bort och erbjuder enkla internationella förbindelser. Torreviejas hamn ligger cirka 6 km bort.

Perfekt för boende eller investering
Med sin moderna design, utmärkta gemensamma utrymmen och förstklassiga läge nära stränder, golfbanor och service är detta nya bostadskomplex i Los Balcones Torrevieja perfekt som permanentbostad, semesterbostad eller investeringsmöjlighet.

Kontakta oss idag för mer information eller för att boka en visning av dessa nybyggda lägenheter i Los Balcones, Torrevieja.

Plats

Ekonomi

Informationen som ges här är föremål för felskrivningar och utgör inte en del av något kontrakt. Erbjudandet kan ändras eller dras tillbaka utan förvarning. Priserna inkluderar inte övriga omkostnader.

Beräkna inteckningar

Valutaväxling

  • Pounds: 293.794 GBP
  • Ryska rubeln: 293.794 RUB
  • Schweiziska franc: 311.304 CHF
  • Kinesiska yuan: 2.719.626 CNY
  • Dollar: 399.874 USD
  • Svenska kronor: 3.686.280 SEK
  • Den norska kronan: 3.679.310 NOK

Mer information

Responsable del tratamiento: Naranja Spain, Finalidad del tratamiento: Gestión y control de los servicios ofrecidos a través de la página Web de Servicios inmobiliarios, Envío de información a traves de newsletter y otros, Legitimación: Por consentimiento, Destinatarios: No se cederan los datos, salvo para elaborar contabilidad, Derechos de las personas interesadas: Acceder, rectificar y suprimir los datos, solicitar la portabilidad de los mismos, oponerse altratamiento y solicitar la limitación de éste, Procedencia de los datos: El Propio interesado, Información Adicional: Puede consultarse la información adicional y detallada sobre protección de datos Aquí.

Liknande egenskaper

© 2026 Naranja Spain · Juridisk anteckning

Privatliv · Cookies · Web karta · Design: Mediaelx