
Nya parhusvillor vid havet i La Marina - El Pinet Beach
Exklusivt medelhavsliv nära stranden
Detta nya bostadsområde med parhusvillor i La Marina, bara 500 meter från El Pinet Beach, erbjuder en oslagbar kombination av modern design och en privilegierad naturmiljö. Beläget intill naturparken Las Salinas kan invånarna njuta av gyllene sandstränder, kristallklart vatten, skyddade sanddyner och en hundraårig tallskog – den perfekta platsen att bo på året runt eller njuta av som semesterbostad.
Moderna medelhavsvillor designade för komfort
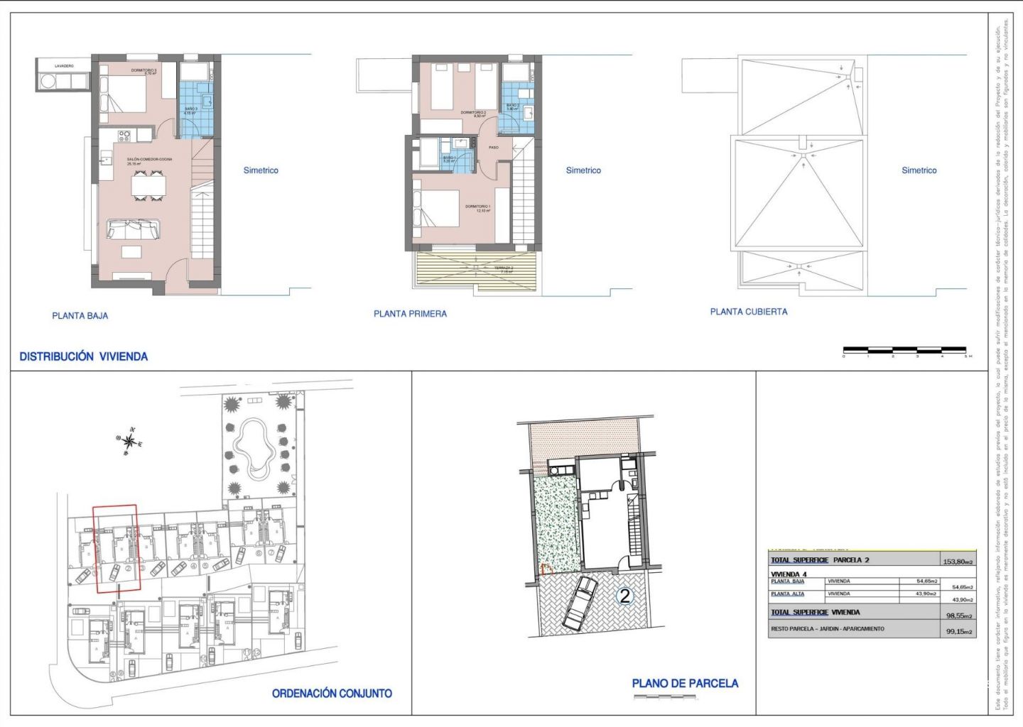
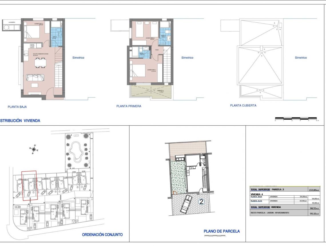
Villorna är fördelade på två våningar och har:
3 rymliga sovrum och 3 badrum
Bottenvåning med öppet kök och vardagsrum, ett sovrum, ett badrum och tillgång till privat trädgård med parkeringsplats
Första våningen med två sovrum, båda med eget badrum, och en stor terrass ansluten till det stora sovrummet
Varje bostad har designats med ljusa, bekväma interiörer och högkvalitativa ytbehandlingar, vilket skapar en unik och välkomnande atmosfär.
Fullt utrustade med premiumfunktioner
Dessa villor levereras med:
Fullt utrustat kök med induktionshäll, fläkt, ugn, kylskåp och förinstallation för diskmaskin
Moderna skåp med premiumfinish
Fullt installerad luftkonditionering med kanaler
Elektriska fönsterluckor
Gemensam pool omgiven av anlagda trädgårdar
Ett utmärkt läge på Costa Blanca
Att bo i La Marina innebär att du kan njuta av alla bekvämligheter i en välfungerande stad samtidigt som du är omgiven av natur och Medelhavet. Inom gångavstånd hittar du butiker, restauranger och viktiga tjänster.
Avstånd till viktiga sevärdheter:
El Pinet-stranden: 500 m
Elche stad: 17 km
Alicante-Elche internationella flygplats: 22 km
Golfbanor (La Marquesa, El Plantío): 15–20 km
Alicante stad och hamn: 30 km
Den perfekta livsstilen vid kusten
Oavsett om du letar efter en permanent bostad, ett andra hem eller en smart investering, erbjuder dessa villor i El Pinet en livsstil präglad av hav, natur och modern komfort. Med sol året runt och ett privilegierat läge är La Marina en av de mest eftertraktade platserna på Costa Blanca.
Kontakta oss idag för att boka en visning och säkra din drömvilla vid Medelhavet.
Informationen som ges här är föremål för felskrivningar och utgör inte en del av något kontrakt. Erbjudandet kan ändras eller dras tillbaka utan förvarning. Priserna inkluderar inte övriga omkostnader.