
Eleganta radhus i ett plan med privat pool i Peraleja Golf Resort - Costa Cálida
Radhus i medelhavsstil i ett inhägnat golfområde
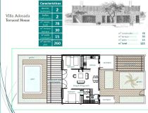
Upptäck 11 exklusiva radhus i ett plan som ligger i det prestigefyllda Peraleja Golf Resort i Murcia-regionen i södra Spanien. Dessa moderna medelhavshus ligger på rymliga tomter på cirka 260 m² och alla har en privat pool, en anlagd trädgård och parkering på området. Husen är designade med sluttande tak och naturliga material som trä och sten och smälter sömlöst in i det omgivande landskapet samtidigt som de har en elegant och tidlös interiör.
Bekvämt boende med premiumfinish
Varje hus har:
2 sovrum och 2 badrum
Öppet kök fullt utrustat med vitvaror
Ljust vardagsrum med matplats med en mysig vedeldad öppen spis
Central luftkonditionering och gasradiatoruppvärmning
Förstärkt ytterdörr och motoriserad fordonsgrind
Privat pool (3,5x5,5 m) med utomhusdusch
Utomhusvatten och belysningspunkter
Fullt anlagd trädgård redo att njuta av
Dessa fastigheter har noggrant utformats av en känd arkitekt, som kombinerar eleganta linjer med naturliga texturer, vilket skapar en unik och harmonisk miljö i ett säkert gated community.
Livet i Peraleja Golf Resort - natur och säkerhet
Husen ligger i Peraleja Golf Resort, som har en 24-timmars säkerhetsgrind, pianobar och klubbhus med gourmetrestaurang. Anläggningen är omgiven av skyddade naturområden där promenad-, jogging- och cykelleder håller på att utvecklas för de boende. Den 18-håls golfbanan, som ursprungligen designades av den legendariske Severiano Ballesteros, är för närvarande under renovering och planeras att öppnas igen i slutet av 2025. Utvalda bostäder och den sociala klubben har havsutsikt.
Bekvämt läge nära stränder och städer
Denna fridfulla resort erbjuder utmärkt tillgång till viktiga platser:
Sucina och Avileses städer - 3-5 km
Mar Menor stränder - 20 km (20 min med bil)
Murcia stad - 25 km (20 min med bil)
Murcia flygplats (RMU) - 25 km (15 min med bil)
Alicante flygplats (ALC) - 80 km (45 min med bil)
La Zenia Boulevard Shopping Center - 35 km
Njut av Costa Cálidas charm
Beläget nära den traditionella spanska staden Sucina kan invånarna njuta av lokala butiker, restauranger och autentisk charm, samtidigt som de är nära kusten och det livliga stadslivet. Detta område har blivit alltmer populärt bland internationella köpare för sin livskvalitet, bra infrastruktur, underbara väder året runt och tillgång till naturområden och havet.
Kontakta oss idag för att säkra din drömvilla på Peraleja Golf och börja njuta av livet på Costa Cálida!
Informationen som ges här är föremål för felskrivningar och utgör inte en del av något kontrakt. Erbjudandet kan ändras eller dras tillbaka utan förvarning. Priserna inkluderar inte övriga omkostnader.