Takvåning · New build Alicante, Costa Blanca · Hondon de las Nieves · Pueblo

  • Ref.: NB-94789
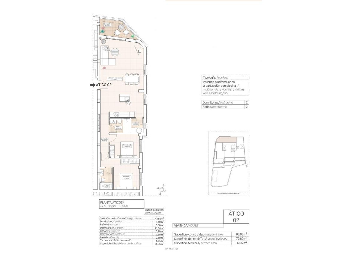
  • 93m2
  • 2
  • 2
  •  
Från 220.000€ Informera prisfall

Egenskaper

Sovrum: 2
Badrum: 2
Byggd: 93m2
Lagar du mat: 1
Energi~~POS=TRUNC: B
Byggår: 2025/12
Avstånd till strand: 37000 Mts.
Storage / Trastero
Gated
Number of Parking Spaces: 1
Near Schools
Air Conditioning: Pre-Installed
Elevator/Lift
Communal Pool
Double Bedrooms: 2
Terrace: 6 Msq.
Location: Rural, Urbanisation
Useable Build Space: 79 Msq.
Parking - Space
Beach: 37000 Meters
Energi~~POS=TRUNC
Energi~~POS=TRUNC:
B

Beskrivning

Exklusiva nybyggda lägenheter med utsikt över vingårdarna i Hondón de las Nieves

Moderna hem i en unik naturmiljö
Upptäck detta nya lägenhetsprojekt i Hondón de las Nieves, en charmig by som ligger i en vacker dal omgiven av oliv- och mandelodlingar. Här finns 15 exklusiva bostäder med 2 och 3 sovrum, alla utformade för att erbjuda maximal komfort, energieffektivitet och fantastisk utsikt över Vinalopós vingårdar.

Denna fridfulla enklav ligger i Vinalopó Medio och är idealisk för dem som söker en avslappnad livsstil i Medelhavsområdet, med enkel tillgång till naturen och alla viktiga tjänster.

Hög kvalitet och modern design
Varje lägenhet har utformats med material av högsta kvalitet och en funktionell layout, som erbjuder:

Rymliga vardagsrum med öppen planlösning, perfekt för ett modernt boende.
Fullt utrustade kök med bänkskivor i granit.
Toppmoderna badrum med inbyggda cisterner och sanitetsartiklar av högsta kvalitet.
Energieffektivitet med aerotermiskt system för varmvatten.
Förinstallation av luftkonditionering med kanaler, vilket garanterar komfort under alla årstider.
Aluminiumfönster med dubbla glasrutor som ger termisk och akustisk isolering.
Förstärkt säkerhetsdörr för sinnesfrid.
Parkeringsplats och förråd i källaren, ingår i priset.
Hiss i byggnaden, vilket garanterar tillgänglighet och komfort.
Solpaneler på taket för att förbättra energieffektiviteten och minska underhållskostnaderna.
Dessutom har bostadsområdet en gemensam pool, perfekt för att njuta av Medelhavsklimatet.

Privilegierat läge i Hondón de las Nieves
Hondón de las Nieves är en stad med en stor vinodlingstradition, känd för sina bordsdruvor med ursprungsbeteckningen Vinalopó. Området är omgivet av Sierra de Crevillente och erbjuder många vandringsleder, naturområden och ett rikt kulturellt och historiskt utbud.

Från ditt nya hem har du snabb tillgång till de viktigaste intressanta platserna i området:

Alicantes flygplats - 30 km (30 minuter med bil).
Alicantes stränder - 35 km (35 minuter med bil)
Elche - 20 km (20 minuter med bil)
Crevillente naturpark - 10 km (15 minuters bilresa)
Golfbanor - 25 km (30 minuters bilresa)

Ett idealiskt hem på Costa Blanca
Njut av lugnet i Hondón-dalen, utan att ge upp närheten till Alicante och Elche. Oavsett om det är som permanent bostad, fritidshus eller investeringsobjekt är dessa moderna lägenheter ett oslagbart val.

Kontakta oss idag för mer information eller för att ordna en visning.

Plats

Ekonomi

Informationen som ges här är föremål för felskrivningar och utgör inte en del av något kontrakt. Erbjudandet kan ändras eller dras tillbaka utan förvarning. Priserna inkluderar inte övriga omkostnader.

Beräkna inteckningar

Valutaväxling

  • Pounds: 190.102 GBP
  • Ryska rubeln: 190.102 RUB
  • Schweiziska franc: 201.432 CHF
  • Kinesiska yuan: 1.759.758 CNY
  • Dollar: 258.742 USD
  • Svenska kronor: 2.385.240 SEK
  • Den norska kronan: 2.380.730 NOK

Mer information

Responsable del tratamiento: Naranja Spain, Finalidad del tratamiento: Gestión y control de los servicios ofrecidos a través de la página Web de Servicios inmobiliarios, Envío de información a traves de newsletter y otros, Legitimación: Por consentimiento, Destinatarios: No se cederan los datos, salvo para elaborar contabilidad, Derechos de las personas interesadas: Acceder, rectificar y suprimir los datos, solicitar la portabilidad de los mismos, oponerse altratamiento y solicitar la limitación de éste, Procedencia de los datos: El Propio interesado, Información Adicional: Puede consultarse la información adicional y detallada sobre protección de datos Aquí.

© 2026 Naranja Spain · Juridisk anteckning

Privatliv · Cookies · Web karta · Design: Mediaelx