
Nybyggda villor i Polop, Alicante
Modernt boende omgivet av natur
Upptäck detta exklusiva bostadsområde med nybyggda villor i Polop, en charmig by i inlandet i provinsen Alicante. Bara 10 km från Benidorms livliga stränder och nattliv och nära den pittoreska staden Altea, erbjuder dessa hem en oslagbar kombination av modern komfort och naturlig skönhet.
Ett bostadsområde skräddarsytt efter dina behov
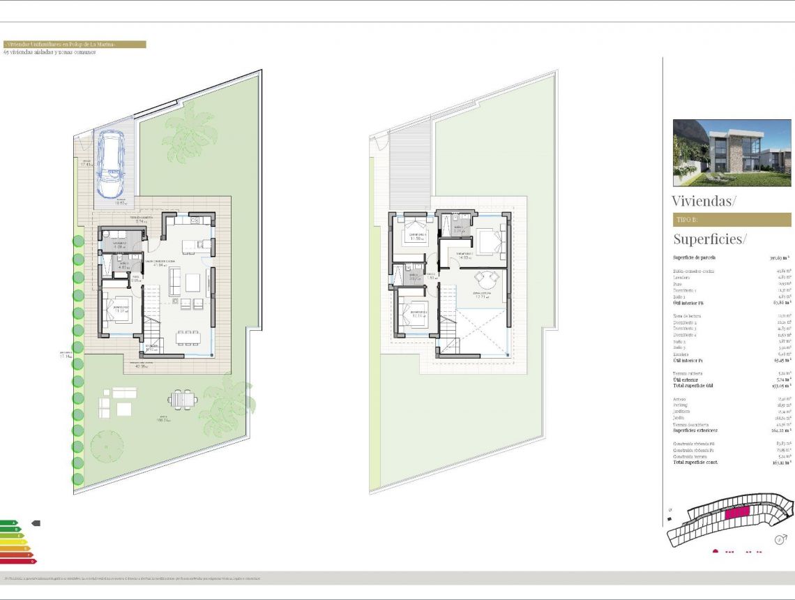
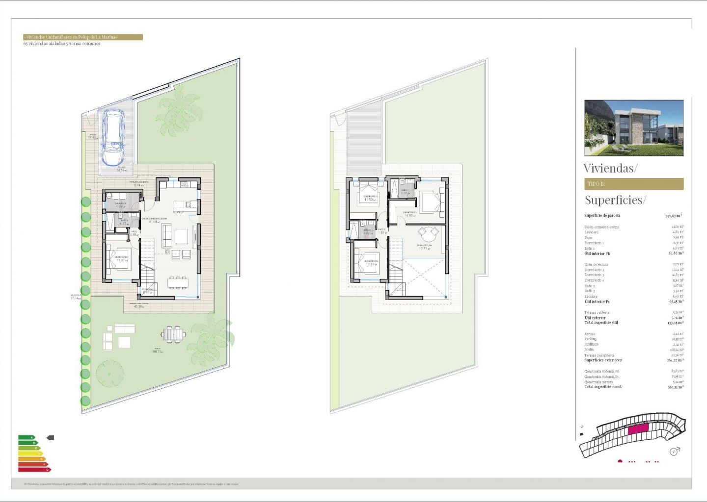
Projektet består av 65 fristående villor som finns i olika utformningar för att passa dina behov och din budget. Välj mellan bostäder med 3 eller 4 sovrum, med alternativ för design med en eller två våningar. Många av fastigheterna är utformade på en enda nivå, vilket ger förbättrad tillgänglighet och en bekväm boendeupplevelse utan behov av trappor.
Varje hem är genomtänkt utformat med rymliga terrasser, privata trädgårdar och inre och yttre utrymmen där du kan njuta av Medelhavsklimatet. Privata pooler finns också som tillval för att ge ditt nya hem en extra touch av lyx.
Förstklassigt läge med enkel tillgång till viktiga destinationer
Området ligger i en fridfull naturmiljö och är perfekt för dem som söker lugn och ro utan att göra avkall på bekvämligheten. Det omgivande området erbjuder tillgång till viktiga intressanta platser:
Benidorms stränder: 10 km (15 minuters bilresa)
Playa del Albir: 12 km (20 minuter), känd för sitt orörda vatten och sin natursköna strandpromenad
Alicante flygplats: 60 km (45 minuter)
Villaitana Golf Course: 12 km (15 minuter)
La Marina Shopping Center: 10 km (15 minuter)
Premiumfunktioner för modern komfort
Varje villa är utrustad med högkvalitativa ytbehandlingar och toppmoderna system, vilket garanterar maximal komfort, säkerhet och hållbarhet:
Dubbelglasade PVC-fönster med värme- och solisolering
Förstärkta ytterdörrar för ökad säkerhet
Fullt utrustade kök med induktionshäll, ugn, fläkt och diskho i rostfritt stål
Moderna badrum med snygga handfat och armaturer i porslin
Förinstallerad kanaliserad luftkonditionering med värmepump
Varmvattenförsörjning via aerotermiska system för energieffektivitet
Gated community med övervakningskameror runtomkring
Polop: Den perfekta blandningen av historia och natur
Polop de la Marina är en historisk stad som omges av fantastiska landskap. Den charmiga gamla stan, Gabriel Miró House-Museum och olika vandringsleder gör det till en eftertraktad destination för natur- och historieentusiaster.
Upplev livet vid kusten och på landsbygden
Omfamna en ny livsstil i dessa omsorgsfullt designade hem, där komfort möter naturen. Njut av panoramautsikten genom stora fönster som ramar in det omgivande landskapet och skapar den perfekta balansen mellan inomhus- och utomhusliv.
Missa inte möjligheten att äga ditt drömhem i Polop! Kontakta oss idag för mer information och för att boka tid för ett besök.
Informationen som ges här är föremål för felskrivningar och utgör inte en del av något kontrakt. Erbjudandet kan ändras eller dras tillbaka utan förvarning. Priserna inkluderar inte övriga omkostnader.