Takvåning · New build Alicante, Costa Blanca · La Nucia · Bello Horizonte

  • Ref.: NB-95820
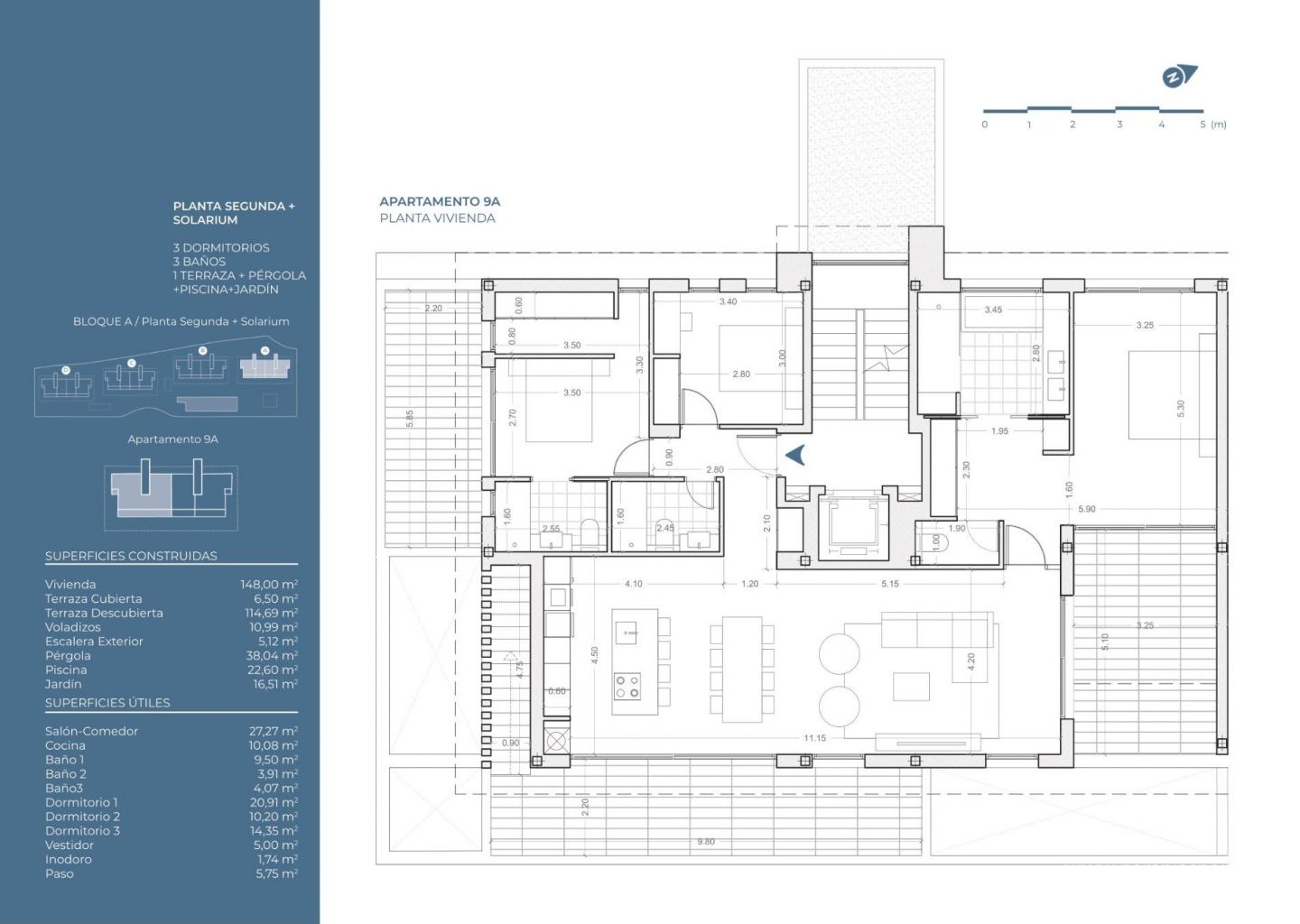
  • 152m2
  • 3
  • 2
  •  
978.000€ Informera prisfall

Egenskaper

Sovrum: 3
Badrum: 2
Byggd: 152m2
Energi~~POS=TRUNC: A
Avstånd till strand: 4000 Mts.
Communal Pool
Near Bus Route
Location: Coastal, Urbanisation
Air Conditioning: Yes, Pre-Installed
Gym
Views: Sea
Beach: 4000 Meters
Useable Build Space: 130 Msq.
Terrace: 139 Msq.
Jacuzzi
Gated
Solarium: Yes
Number of Parking Spaces: 1
Near Schools
Near Commercial Center
Double Bedrooms: 3
Elevator/Lift
Energi~~POS=TRUNC
Energi~~POS=TRUNC:
A

Beskrivning

NYBYGGT BOSTADSKOMPLEX I LA NUCIA

Nybyggt bostadsområde med lägenheter och takvåningar med gemensam utomhuspool, parkering, förråd, hiss, gym, gemensamt spa med uppvärmd inomhuspool, bastu, jacuzzi i La Nucia.

Moderna fastigheter med 2 och 3 sovrum, alla med 2 badrum, kök med öppen planlösning med rymligt vardagsrum, inbyggda garderober, terrass, underjordisk parkeringsplats.
Takvåningarna har privata solarier med pool.

Excellens i sin avantgarde-arkitektur, utsökta finish och avancerade tjänster, en dröm urbanisering för dem som letar efter den högsta nivån av komfort och distinktion.

Interiörer som kombinerar elegant design och modern sofistikering, skapar utrymmen som förvandlar varje dag till en exceptionell upplevelse av komfort och välbefinnande.

Tyskt designkök, Burger eller liknande, med Silestone-bänkskiva, fullt utrustat. Vitvaror från Siemens eller liknande. Induktionshäll, fläkt, ugn och kylskåp och diskmaskin integrerade i enheterna.
Förstärkt entrédörr till fastigheten med säkerhetslås och lackerad panel som matchar inredningens snickerier. Möjlighet att montera lås med fjärrkontroll från smartphone eller surfplatta.
Modulära garderober med gångjärn eller skjutdörrar lackerade för att matcha resten av snickeriet, inklusive bagageutrymme, lådor och hängande skena.
Fastigheten kommer att förberedas för att kunna dra nytta av höghastighetsinternet.
Det kommer att finnas elektrisk golvvärme med låg förbrukning i badrummen.
Videointercom kommer att vara elektronisk med färgbild och kommer att ha integrerad fjärrkontroll från telefon eller surfplatta.
Samsung luftkonditionering. Varje rum kommer att ha sin egen maskin och oberoende kontroll. Luftkonditioneringen kommer att ha fjärrkontroll. Den kan styras från en telefon eller surfplatta.
Den kompletta installationen av luftkonditioneringssystemet kommer att utföras, utrustat med en värmepump för att ge både kylning och uppvärmning. Kanaler av glasfiber kommer också att användas.
Inomhusenheterna kommer att placeras i undertaket i badrummen och korridoren, medan utomhusenheten kommer att installeras i det område som tilldelats i projektet. Ventilation. Installation av luftförnyelse i bostäder med utsug i badrum och kök och klocka för programmering av tidtabellen.
Pool för gemensamt bruk med klorering av saltlösning och automatisk kontroll av PH och klor.
I källaren kommer det att finnas ett gym, uppvärmd inomhuspool, jacuzzi, bastu, ångbad, kromoterapi och omklädningsrum med badrum.
Stora terrassområden och trädgårdar med inhemska växter för flera användningsområden i det gemensamma området.
Tomtens omkrets kommer att planteras med växter som kommer att skapa en privat atmosfär i inhägnaden när de växer.
Det kommer att finnas ett videoövervakningssystem för de gemensamma utrymmena.

Beläget i ett privilegierat läge, mellan Nucia och Altea, har denna bostad en exceptionell miljö och utmärkta tjänster inom urbaniseringen.

Plats

Ekonomi

Informationen som ges här är föremål för felskrivningar och utgör inte en del av något kontrakt. Erbjudandet kan ändras eller dras tillbaka utan förvarning. Priserna inkluderar inte övriga omkostnader.

Beräkna inteckningar

Valutaväxling

  • Pounds: 852.503 GBP
  • Ryska rubeln: 852.503 RUB
  • Schweiziska franc: 902.792 CHF
  • Kinesiska yuan: 7.871.237 CNY
  • Dollar: 1.153.747 USD
  • Svenska kronor: 10.565.334 SEK
  • Den norska kronan: 10.774.626 NOK

Mer information

Responsable del tratamiento: Naranja Spain, Finalidad del tratamiento: Gestión y control de los servicios ofrecidos a través de la página Web de Servicios inmobiliarios, Envío de información a traves de newsletter y otros, Legitimación: Por consentimiento, Destinatarios: No se cederan los datos, salvo para elaborar contabilidad, Derechos de las personas interesadas: Acceder, rectificar y suprimir los datos, solicitar la portabilidad de los mismos, oponerse altratamiento y solicitar la limitación de éste, Procedencia de los datos: El Propio interesado, Información Adicional: Puede consultarse la información adicional y detallada sobre protección de datos Aquí.

Liknande egenskaper

© 2026 Naranja Spain · Juridisk anteckning

Privatliv · Cookies · Web karta · Design: Mediaelx