
NYBYGGDA BUNGALOWLÄGENHETER I ROJALES
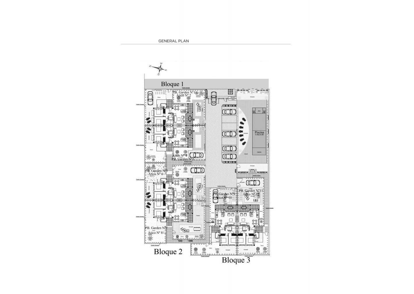
Nybyggt bostadsområde med bungalowlägenheter med 2 sovrum på 2 våningar: bottenvåning med privat trädgård och första våningen med privat takterrass.
Privat bostadsområde med grönområden, pool och privat parkering.
Med alla nödvändiga tjänster till hands: stormarknader, golfbanor, restauranger, hälsocenter.
Rojales är en traditionellt jordbruksstad som har blivit en av favoritdestinationerna i det inre av Vega Baja, tack vare sitt strategiska läge nära N-332 och AP-7.
De utmärkta kommunikationerna gör att du kan nå Alicantes flygplats på 20 minuter och njuta av stränderna i Guardamar, La Mata eller Torrevieja på 15 minuter.
Rojales erbjuder ett rikt och varierat gastronomiskt och fritidserbjudande och har den prestigefyllda golfbanan La Marquesa Golf.
Rojales är en härlig by med alla tjänster som stormarknader, apotek, banker, restauranger och naturpark som ligger mycket nära villorna.
La Marquesa Golf är en av de mest historiska banorna på Costa Blanca, med 18 hål och ett lika speciellt som det 17: e hålet på Sawgrass. Tradition, kvalitet och erfarenhet samlas för att erbjuda golfare som besöker oss en unik upplevelse, full av historia där.
Informationen som ges här är föremål för felskrivningar och utgör inte en del av något kontrakt. Erbjudandet kan ändras eller dras tillbaka utan förvarning. Priserna inkluderar inte övriga omkostnader.