
FANTASTISKA NYBYGGDA VILLOR I DESERT SPRINGS RESORT
Detta vackra, moderna och eleganta projekt har ett avundsvärt läge på Desert Springs Resort och erbjuder ett urval av villor med tre sovrum och fantastisk utsikt över Indiana-mästerskapsbanan och bergskedjorna bortom den.
En gated innergård, djupa skuggiga verandor, en privat anlagd trädgård som vetter direkt mot golfbanan, individuell pool, inbyggd grill och omfattande takterrasser är bara några av fastigheternas yttre egenskaper.
Modern design och naturligt ljus som ger en känsla av rymd är de utmärkande egenskaperna hos den sofistikerade interiören som erbjuder eleganta hem med modern dragningskraft.
Bland funktionerna finns en rymlig inre reception som öppnar sig med en "nivå genom" golv mot de täckta verandorna och trädgården för att erbjuda över 93m2 kombinerad interiör / exteriör vardagsrum och matplats, utformad för att användas som en i regionens särskilt privilegierade klimat.
Det stora sovrummet med eget badrum har direkt tillgång till den stora verandan och poolen. Det finns ytterligare två sovrum, båda med eget badrum och garderob.
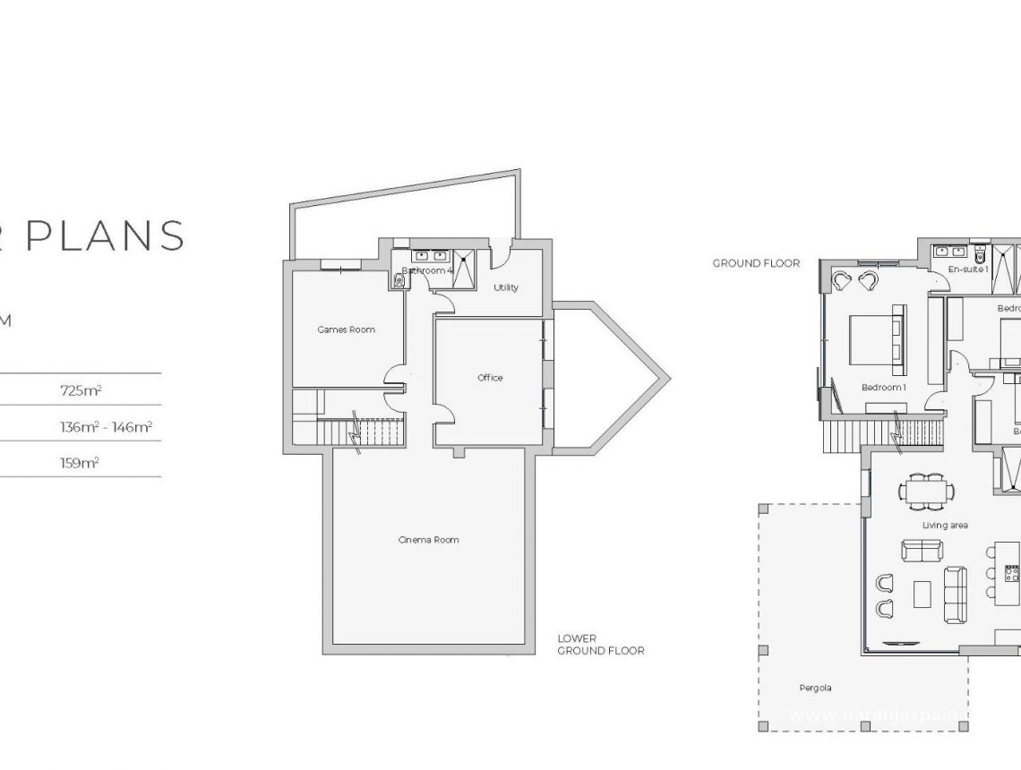
På den stora nedre bottenvåningen finns spelrum, biorum, tvättstuga, kontor och ett fjärde badrum.
Dubbelglas, högkvalitativt utrustat kök, integrerade vitvaror och sovrumsgarderober och säkerhetsarmaturer är standard i hela huset.
Ett mekaniskt ventilationssystem på bottenvåningen och solcellspaneler anslutna till varmvattenberedaren med individuellt styrda luftkonditioneringsenheter för varmt/kallt i vardagsrummet och sovrummen, tillgodoser alla krav på temperaturreglering.
Informationen som ges här är föremål för felskrivningar och utgör inte en del av något kontrakt. Erbjudandet kan ändras eller dras tillbaka utan förvarning. Priserna inkluderar inte övriga omkostnader.