
BOSTAD I EN KONSOLIDERAT URBANISERING PÅ KUSTEN
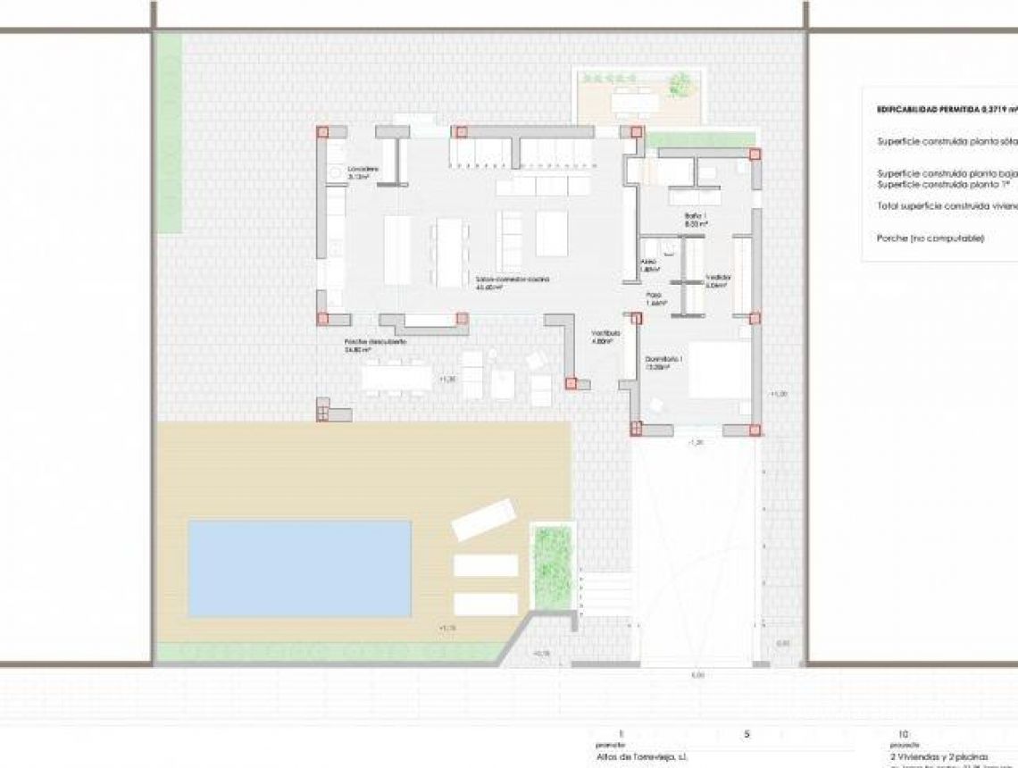
Den består av 3 dubbelrum med 4 badrum, vardagsrum - matsal, kök.
Privat pool, solarium/terrasser, luftkonditionering, golvvärme och sanitärt varmvatten med aerotermics.
Beläget i Los Altos, (Together Los Balcones). Sydost orienterad.
DET HAR alla tjänster, skolor, sjukhus, stormarknader några meter bort. Avstånd till havet 3 minuter med bil.
Denna villa ligger i ett av de privilegierade områdena på Costa Blanca South, närmare bestämt i Los Altos, 5 minuter från Playa Punta Prima, Cala Ferry, nära alla tjänster; restauranger, kaféer, butiker, gallerior, skolor, sjukhus, samt tillgång till motorvägar.
Informationen som ges här är föremål för felskrivningar och utgör inte en del av något kontrakt. Erbjudandet kan ändras eller dras tillbaka utan förvarning. Priserna inkluderar inte övriga omkostnader.