
NYBYGGDA VILLOR I LOS ALCAZARES
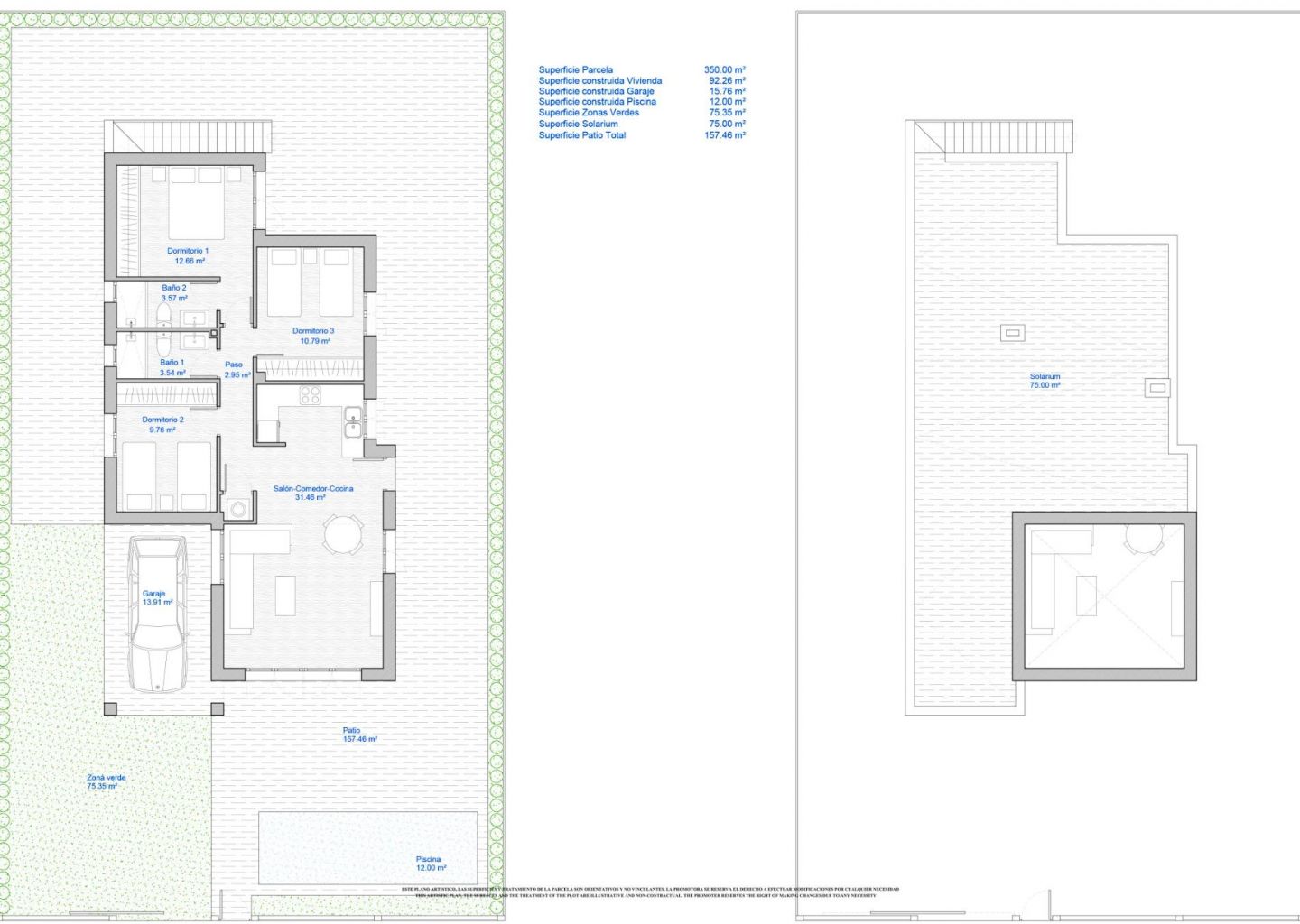
Nybyggd fristående villa byggd på en generös tomt på 350 m2 i Los Alcazares .
Villa med 3 sovrum och 2 badrum, öppet kök med vardagsrum, inbyggda garderober, solarium, privat trädgård med parkeringsplats och plats för en pool.
Ett alternativ för en privat pool mot en extra kostnad.
Rymligt vardagsrum har stora skjutdörrar till en terrass.
Rikligt med terrasser på framsidan och baksidan ser till att ägarna kan sola hela dagen.
Dessa villor har moderna inredda kök med ett urval av färger för köksenheter och väggplattor i både kök och badrum samt golv och terrasser.
Bostadsområde av villor som ligger 1 km från stranden och staden Los Alcázares, där du kan utöva olika vattensporter, omgiven av flera golfbanor.
Staden Cartagena mindre än 15 minuter med bil och 30 minuter från Murcia Corvera flygplats.
Informationen som ges här är föremål för felskrivningar och utgör inte en del av något kontrakt. Erbjudandet kan ändras eller dras tillbaka utan förvarning. Priserna inkluderar inte övriga omkostnader.