Современные новостройки в центре Сан-Мигель-де-Салинас

  • Ссылка: NB-18011
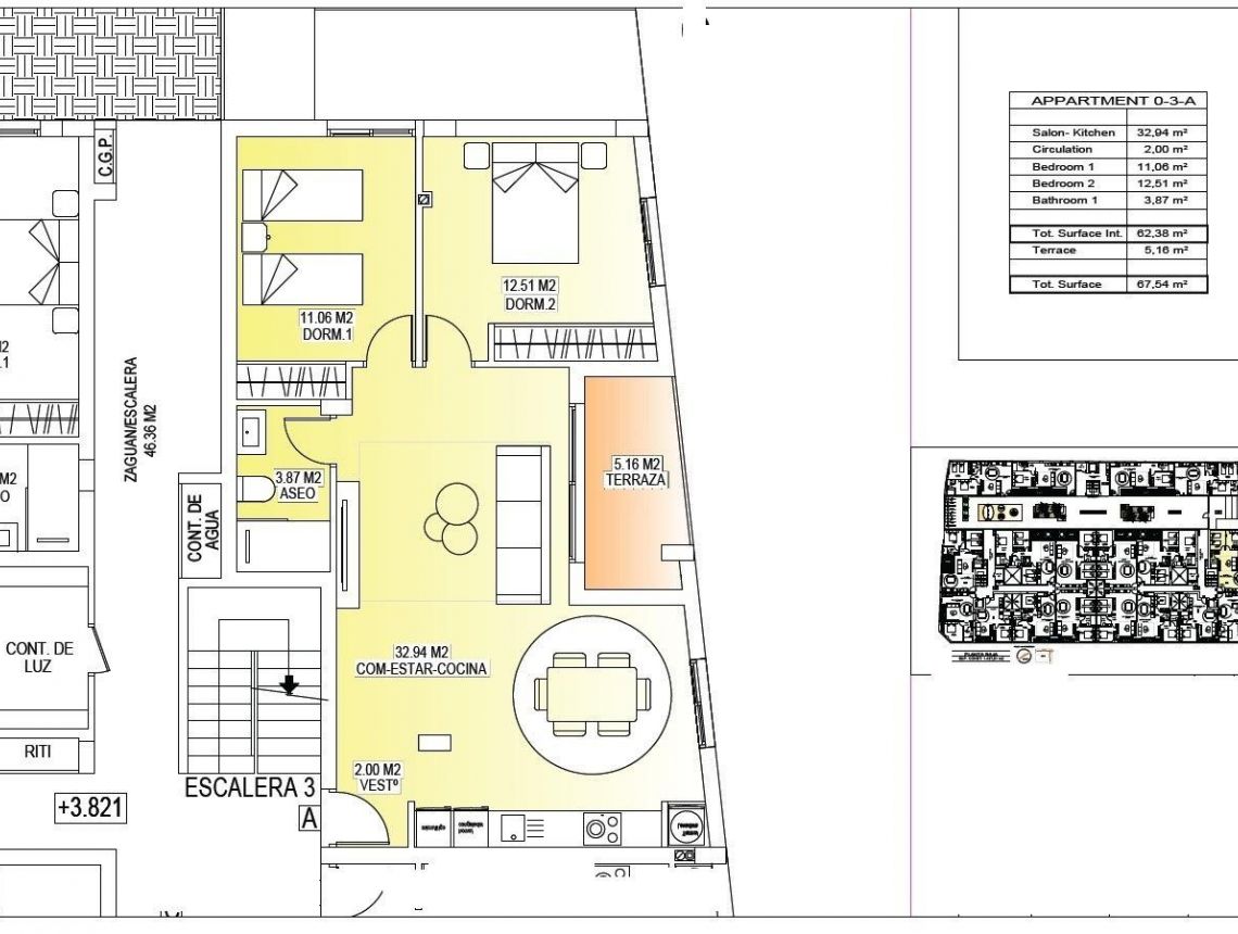
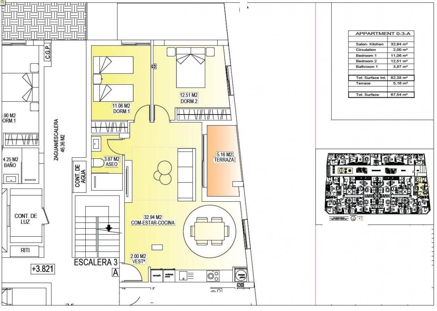
  • 67m2
  • 2
  • 1
  •  

Характеристики

Спальни: 2
Ванные комнаты: 1
Построено: 67m2
Рейтинг энергопотребления: A
Расстояние до пляжа: 10000 м.
Near Schools
Air Conditioning: Pre-Installed
Elevator/Lift
Communal Pool
Near Childrens Parks
Near Bus Route
Double Bedrooms: 2
Location: Rural, Urbanisation
Beach: 10000 Meters
Terrace: 5 Msq.
Space
Useable Build Space: 62 Msq.
Рейтинг энергопотребления
Рейтинг энергопотребления:
A

Описание

Современные новостройки в центре Сан-Мигель-де-Салинас

Современная жизнь в здоровой средиземноморской среде
Расположенный в очаровательном городке Сан-Мигель-де-Салинас, всего в 10 км от Средиземного моря, этот новый жилой комплекс предлагает идеальный баланс между современным комфортом и природным окружением. Этот район хорошо известен своими соляными озерами и исключительным микроклиматом, считающимся одним из самых здоровых в Европе. Этот тихий, но оживленный городок позволяет жителям наслаждаться аутентичным средиземноморским образом жизни, находясь в нескольких минутах ходьбы от магазинов, ресторанов, супермаркетов и всех необходимых услуг.

Сан-Мигель-де-Салинас расположен немного вглубь суши на юге Коста-Бланки, предлагая открытые виды, свежий воздух и легкий доступ к пляжам, полям для гольфа и торговым районам.

Стильные апартаменты, спроектированные для комфорта и эффективности
Проект состоит из двух современных зданий, разделенных ландшафтным общим садом. Всего доступно 56 современных апартаментов с 1, 2 или 3 спальнями, каждая из которых имеет собственную террасу. Каждый дом был спроектирован с учетом комфорта, эстетики и энергоэффективности, с использованием высококачественных материалов и современных систем изоляции.

Каждый апартамент включает:
Бронированная входная дверь
Ванные комнаты с туалетными столиками
Предварительная установка канального кондиционера
Энергетический сертификат класса A

Планировка и ориентация домов обеспечивают естественное освещение в течение всего дня, создавая светлые и уютные интерьеры, идеально подходящие как для постоянного проживания, так и для отдыха.

Исключительные общие зоны для отдыха и социальной жизни
Общая зона на первом этаже спроектирована как социальный центр комплекса, окруженный ландшафтными садами, зонами для отдыха, парковкой для велосипедов и детской игровой площадкой. Это идеальное место для встреч жителей всех возрастов.

На крыше вас ждет впечатляющая зона отдыха площадью 350 м2. Это пространство включает в себя бассейн площадью 70 м2 с отдельной детской зоной для купания, перголы, шезлонги и тенистые зоны, позволяющие жильцам расслабиться, наслаждаясь панорамным видом. На крышу легко добраться на одном из трех лифтов, а для дополнительного комфорта здесь есть санузлы.

Отличное расположение рядом с ключевыми достопримечательностями
Средиземноморские пляжи 10 км
Торговый центр Zenia Boulevard 9 км
Villamartin Golf 6 км
Las Colinas Golf 8 км
Пристань для яхт Торревьеха 12 км
Аэропорт Аликанте 60 км
Аэропорт Мурсия Корвера 55 км

Умная инвестиция на юге Коста-Бланки
Этот жилой комплекс сочетает в себе современную архитектуру, качественную отделку и выгодное центральное расположение, что делает его отличным выбором для проживания, отдыха или инвестиций в аренду.

Свяжитесь с нами сегодня, чтобы получить дополнительную информацию или договориться о посещении этих современных апартаментов в Сан-Мигель-де-Салинас.

Место нахождения

Финансы

Эта информация может подвергаться изменениям и не является частью будущего контракта. Предложение может быть изменено или отозвано без предварительного уведомления. Расходы на покупку не включены в цену объекта

Расчёт ипотеки

Обмен валют

  • Фунтов стерлингов: 135.110 GBP
  • Российский рубль: 135.110 RUB
  • Швейцарский франк: 143.081 CHF
  • Китайский юань: 1.247.487 CNY
  • Доллар: 182.854 USD
  • Шведская крона: 1.674.465 SEK
  • Норвежская крона: 1.707.635 NOK

Больше информации

Responsable del tratamiento: Naranja Spain, Finalidad del tratamiento: Gestión y control de los servicios ofrecidos a través de la página Web de Servicios inmobiliarios, Envío de información a traves de newsletter y otros, Legitimación: Por consentimiento, Destinatarios: No se cederan los datos, salvo para elaborar contabilidad, Derechos de las personas interesadas: Acceder, rectificar y suprimir los datos, solicitar la portabilidad de los mismos, oponerse altratamiento y solicitar la limitación de éste, Procedencia de los datos: El Propio interesado, Información Adicional: Puede consultarse la información adicional y detallada sobre protección de datos Aquí.