
Новые виллы в Сан-Фульенсио с частным бассейном и современным дизайном
Эксклюзивный проект из 7 отдельных вилл с южной ориентацией на побережье Коста-Бланка
Откройте для себя этот привлекательный проект из 7 современных отдельных вилл в Сан-Фульенсио, очаровательном городке в провинции Аликанте. Эти дома, спроектированные в современном стиле и ориентированные на юг для максимального использования естественного света, сочетают в себе комфорт, качество и идеальное расположение на южном побережье Коста-Бланка.
Функциональная планировка и открытые пространства
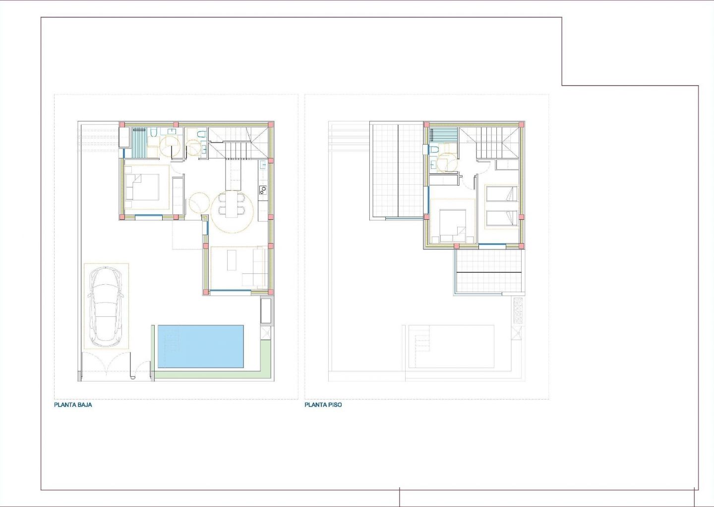
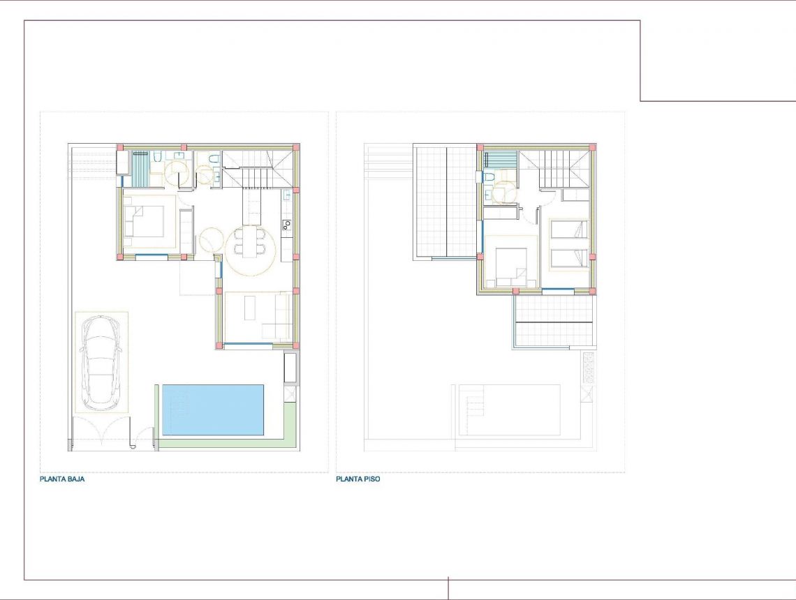
Виллы состоят из двух этажей и имеют отличную внутреннюю планировку:
3 просторные спальни, одна из которых находится на первом этаже
2 ванные комнаты и 1 дополнительный туалет
Полностью меблированная кухня открытой планировки с бытовой техникой
Светлая гостиная с выходом на улицу
Снаружи каждый дом имеет:
Частный бассейн 3x5 метров
Парковка на участке
Две открытые террасы на верхнем этаже, идеальные для наслаждения солнцем в течение всего дня
Высокое качество и энергоэффективность
Виллы построены из высококачественных материалов с учетом требований экологической устойчивости:
Электрические жалюзи
Оконные рамы с двойным остеклением
Система аэротермии для горячего водоснабжения
Предварительная установка кондиционера с воздуховодами
Ванные комнаты оборудованы мебелью, перегородками и зеркалами
Стратегическое расположение в Сан-Фульхенсио
Сан-Фульхенсио предлагает спокойствие жилого района со всеми удобствами, такими как рестораны, супермаркеты, аптеки и многое другое. Кроме того, его отличное расположение позволяет легко добраться до основных достопримечательностей района:
Пляж Ла Марина – 7 км
Гардамар-дель-Сегура – 10 км
Поле для гольфа La Marquesa (Сьюдад-Кесада) – 6 км
Центр Торревьехи – 18 км
Международный аэропорт Аликанте-Эльче – 30 км
Идеальное место для жизни, инвестиций или отдыха
Эти виллы представляют собой уникальную возможность как для постоянного проживания, так и для инвестиций в недвижимость в одном из самых востребованных районов южного побережья Коста-Бланка. Будь то для наслаждения средиземноморским солнцем или в качестве второго дома, этот проект предлагает качество, дизайн и отличное расположение.
Свяжитесь с нами сегодня для получения дополнительной информации или для записи на посещение и откройте для себя свой новый дом в Сан-Фульенсио.
Эта информация может подвергаться изменениям и не является частью будущего контракта. Предложение может быть изменено или отозвано без предварительного уведомления. Расходы на покупку не включены в цену объекта