
Эксклюзивные двухквартирные виллы и квадроциклы в Бигастро, Аликанте
Дома в средиземноморском стиле в самом сердце Вега Баха
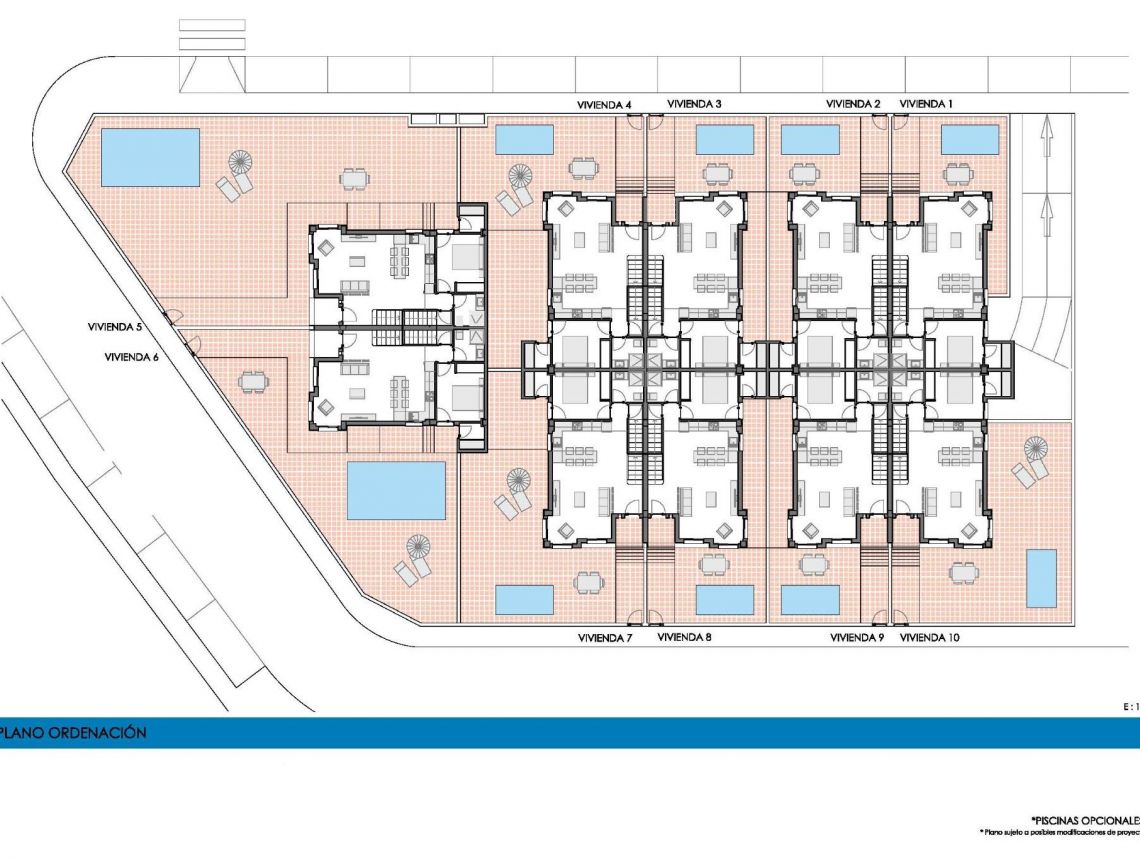
Новый жилой комплекс в Бигастро, очаровательной деревне в Вега-Баха, предлагает 8 квадров и 2 двухквартирные виллы, выполненные в элегантном средиземноморском стиле. Расположенные в тихом районе с хорошей транспортной развязкой, эти объекты идеально подходят для тех, кто ищет идеальное сочетание комфорта, уединения и близости ко всем удобствам.
Просторный и функциональный дизайн
Каждая вилла спроектирована таким образом, чтобы обеспечить простор и комфорт. 4 спальни и 3 ванные комнаты распределены на 2 этажах.
Первый этаж: одна спальня, ванная комната, кухня открытого плана, совмещенная с гостиной, прачечная и выход в сад.
Второй этаж: 3 спальни, включая главную спальню с ванной комнатой.
Частный солярий площадью 40 м², идеально подходящий для наслаждения средиземноморским климатом и открывающимися видами.
Частный сад с бассейном, который можно приобрести за дополнительную плату.
Частный гараж площадью более 60 м² в цокольном этаже с прямым доступом к дому.
Бигастро: спокойствие и связь
Бигастро - уютный муниципалитет на юге Аликанте, известный своей спокойной обстановкой и отличным сообщением с основными городами и пляжами Коста-Бланки.
Ориуэла - 5 км (5 минут на машине).
Пляжи Гуардамара - 25 км (15 минут на машине).
Торревьеха - 30 км (25 минут на машине).
Аэропорт Аликанте - 55 км (30 минут на машине).
Торговый центр Zenia Boulevard - 30 км (25 минут на машине).
В муниципалитете есть все необходимые услуги, такие как супермаркеты, школы, спортивные центры и богатое гастрономическое предложение, что делает его идеальным местом как для постоянного проживания, так и для второго дома.
Откройте для себя новый дом на побережье Коста-Бланка
Если вы ищете современный и просторный дом в тихом, но хорошо связанном месте, эти виллы и квадрохаусы в Бигастро - идеальный выбор. Свяжитесь с нами сегодня, чтобы получить дополнительную информацию или договориться о просмотре.
Эта информация может подвергаться изменениям и не является частью будущего контракта. Предложение может быть изменено или отозвано без предварительного уведомления. Расходы на покупку не включены в цену объекта