
НОВЫЕ ВИЛЛЫ В ФИНЕСТРАТЕ
Проект новостройки из 10 вилл современного дизайна, расположенных в естественной среде с видами на море и горы, рядом с полем для гольфа Puig Campana и в нескольких минутах езды от городов Финестрат и Бенидорм.
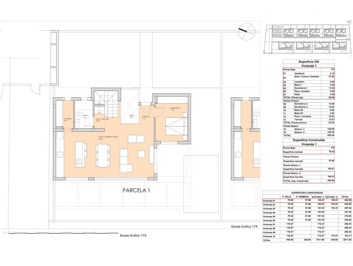
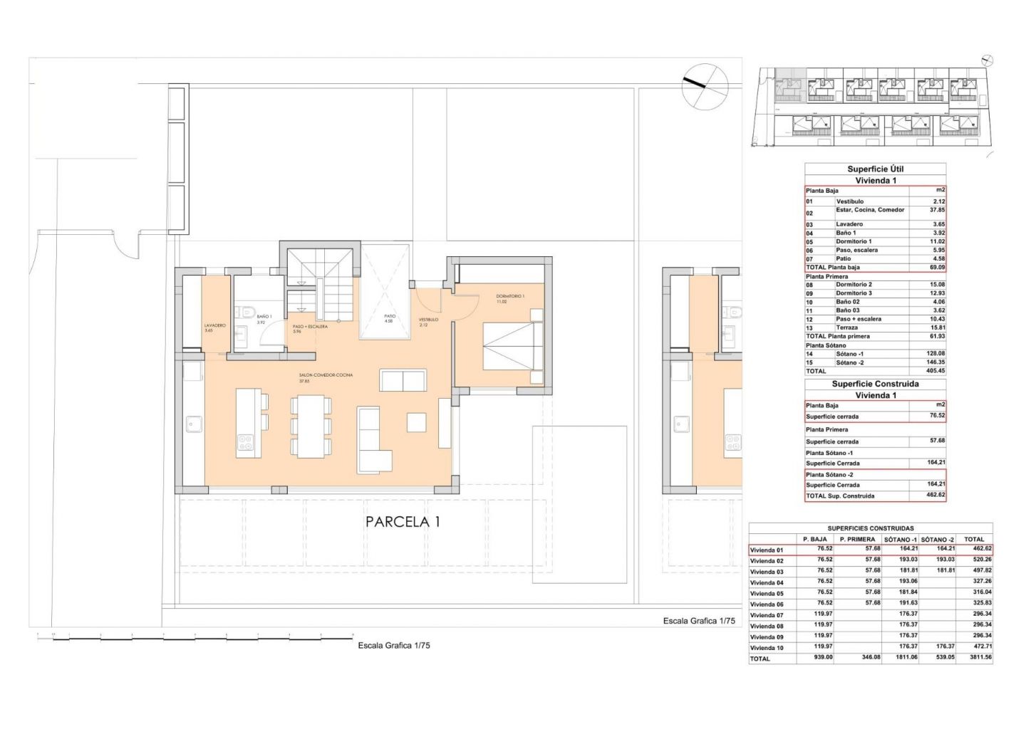
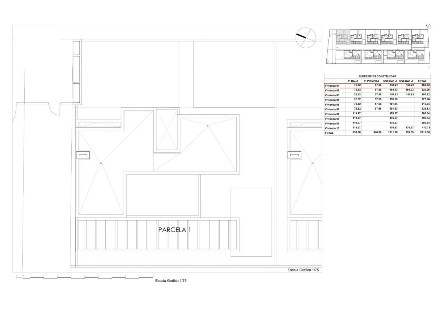
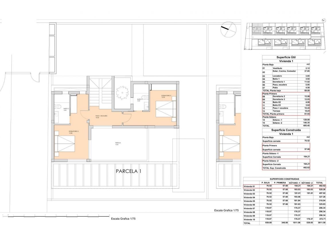
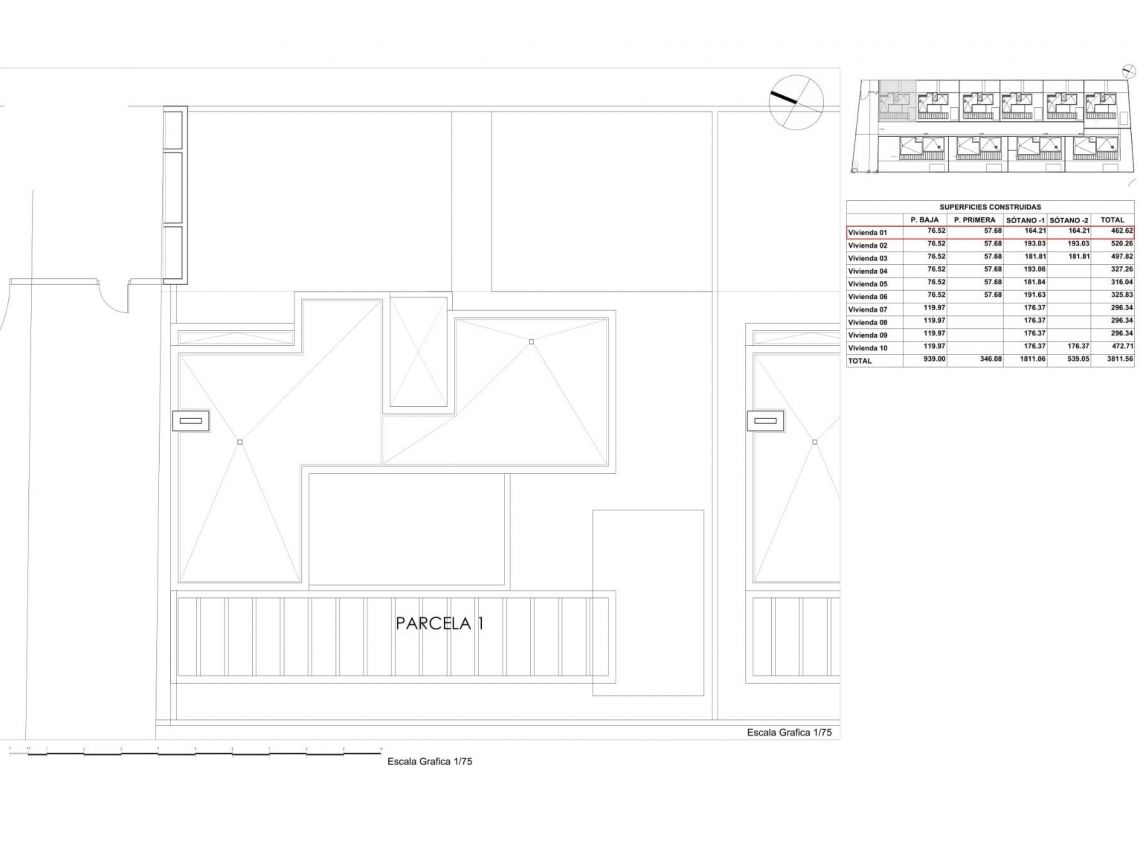
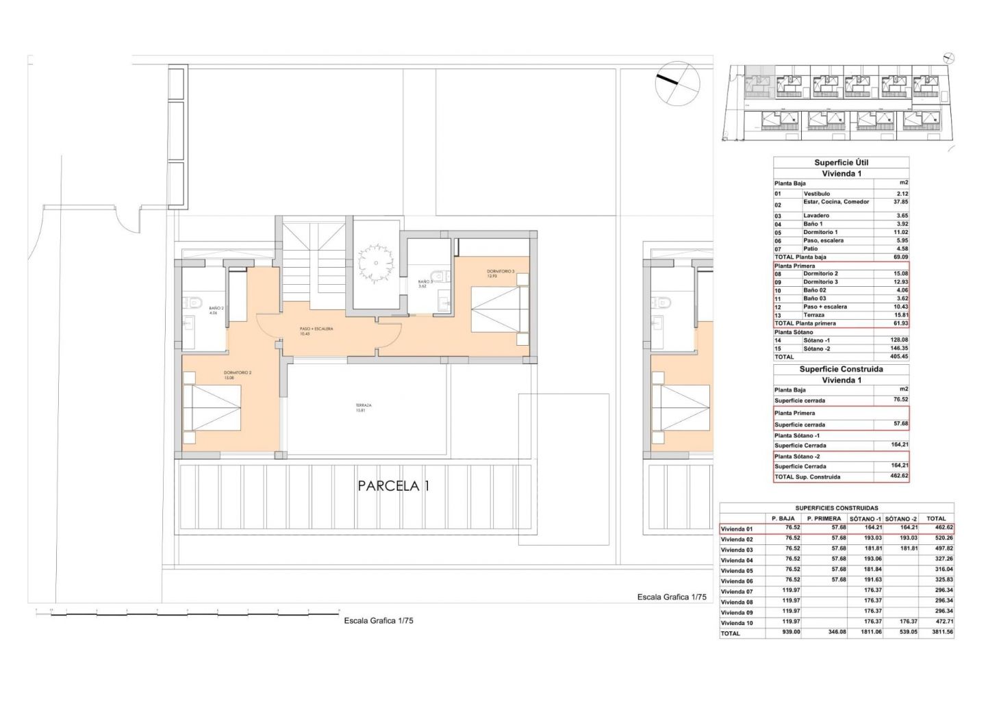
Проект будет разделен на два этапа строительства, которые, в свою очередь, включают два типа домов, с 1 или 2 этажами, 3 двойными спальнями, 2 или 3 полными ванными комнатами, гостиной-столовой с интегрированной кухней, прачечной, большой террасой и садом, частным бассейном, открытой парковкой, 1 или 2 многофункциональными подвалами и в некоторых моделях закрытым подземным гаражом.
Возможность установки солярия за дополнительную плату.
Виллы построены с использованием лучших качеств и последних достижений в области строительства, среди которых:
- Стеклянные перила, которые не нарушают непрерывность видов.
- Напольное покрытие из керамогранита первого качества.
- Бронированная входная дверь.
- Алюминиевая наружная отделка с разрывом теплового моста и двойное стекло с низкой эмиссионной способностью с воздушной камерой и безопасностью в местах, подверженных риску разрушения.
- Гладкие внутренние столярные изделия из белого лакированного дерева с ручками и фурнитурой из нержавеющей стали.
- Полностью оборудованные раздвижные шкафы и гардеробные.
- Производство бытовой горячей воды через систему теплового насоса с баком-аккумулятором на 100 л, при поддержке солнечных панелей на крыше.
- Высококачественная электропроводка 9,2 кВт.
- Установка кондиционеров через воздуховоды с включенным оборудованием.
- Кухни в минималистском стиле, полностью оборудованные, с островом, мебелью и техникой в комплекте.
- Частный бассейн с подсветкой и пляжная зона с тротуаром или искусственной травой.
- Полностью настраиваемый многоцелевой подвал, в зависимости от модели с гаражом для автомобиля и предустановкой для электромобиля.
Виллы расположены в привилегированном месте на побережье Коста Бланка, на возвышенности у подножия гор, в окружении природы и других подобных урбанизаций, с прекрасным видом на море и окрестности. В 10 минутах езды от торговых центров, автомагистрали A7, пляжей и близлежащих городов Бенидорм и Вильяхойоса, а также в 30 минутах езды от города Аликанте и его международного аэропорта.
Эта информация может подвергаться изменениям и не является частью будущего контракта. Предложение может быть изменено или отозвано без предварительного уведомления. Расходы на покупку не включены в цену объекта