
НОВЫЕ ВИЛЛЫ В САН ФУЛЬХЕНСИО
Новый жилой комплекс из 3 современных вилл в Сан Фульхенсио.
Виллы построены на участках площадью 500 м2 и расположены в жилом районе со всеми услугами в шаговой доступности и в нескольких минутах от лучшего SPA-центра и аквапарка в этой зоне.
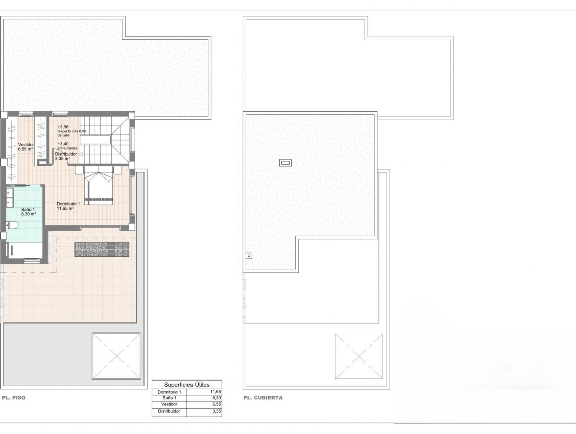
Виллы состоят из двух этажей, имеют 4 спальни, 4 ванные комнаты, кухню открытого плана с гостиной, встроенные шкафы, террасы, частный сад с бассейном и парковочное место.
За дополнительную плату возможна установка частного солярия.
Сан-Фульхенсио - приятная деревушка с несколькими ресторанами и магазинами, очень удачное расположение - рядом с фантастическими пляжами Ла Марина и чуть более крупным городом Гуардамар.
Город Сан-Фульхенсио расположен примерно в 30 минутах езды от аэропорта Аликанте-Эльче, в 6 км от ближайшего поля для гольфа и всего в 7 км от ближайшего пляжа.
Эта информация может подвергаться изменениям и не является частью будущего контракта. Предложение может быть изменено или отозвано без предварительного уведомления. Расходы на покупку не включены в цену объекта