
2 НОВЫЕ ВИЛЛЫ В ТОРРЕВЬЕХЕ
2 новые красивые виллы в Торревьехе.
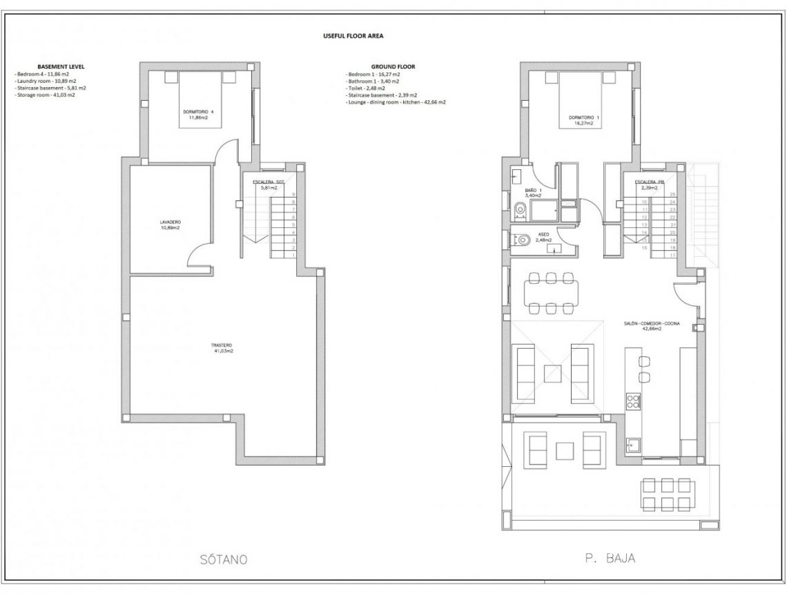
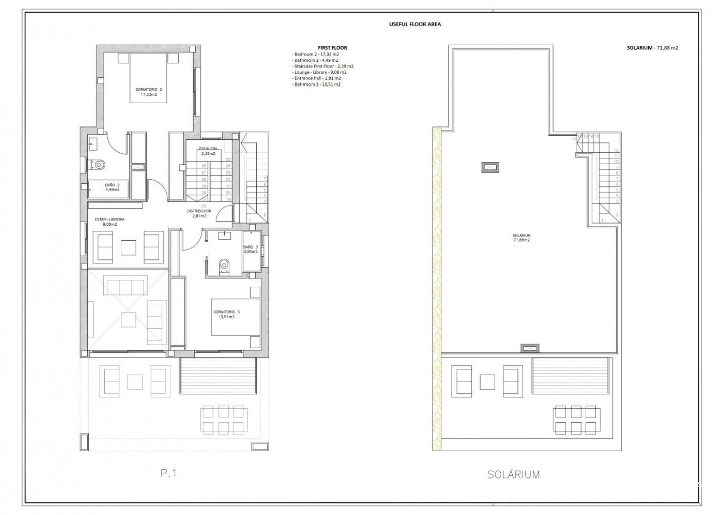
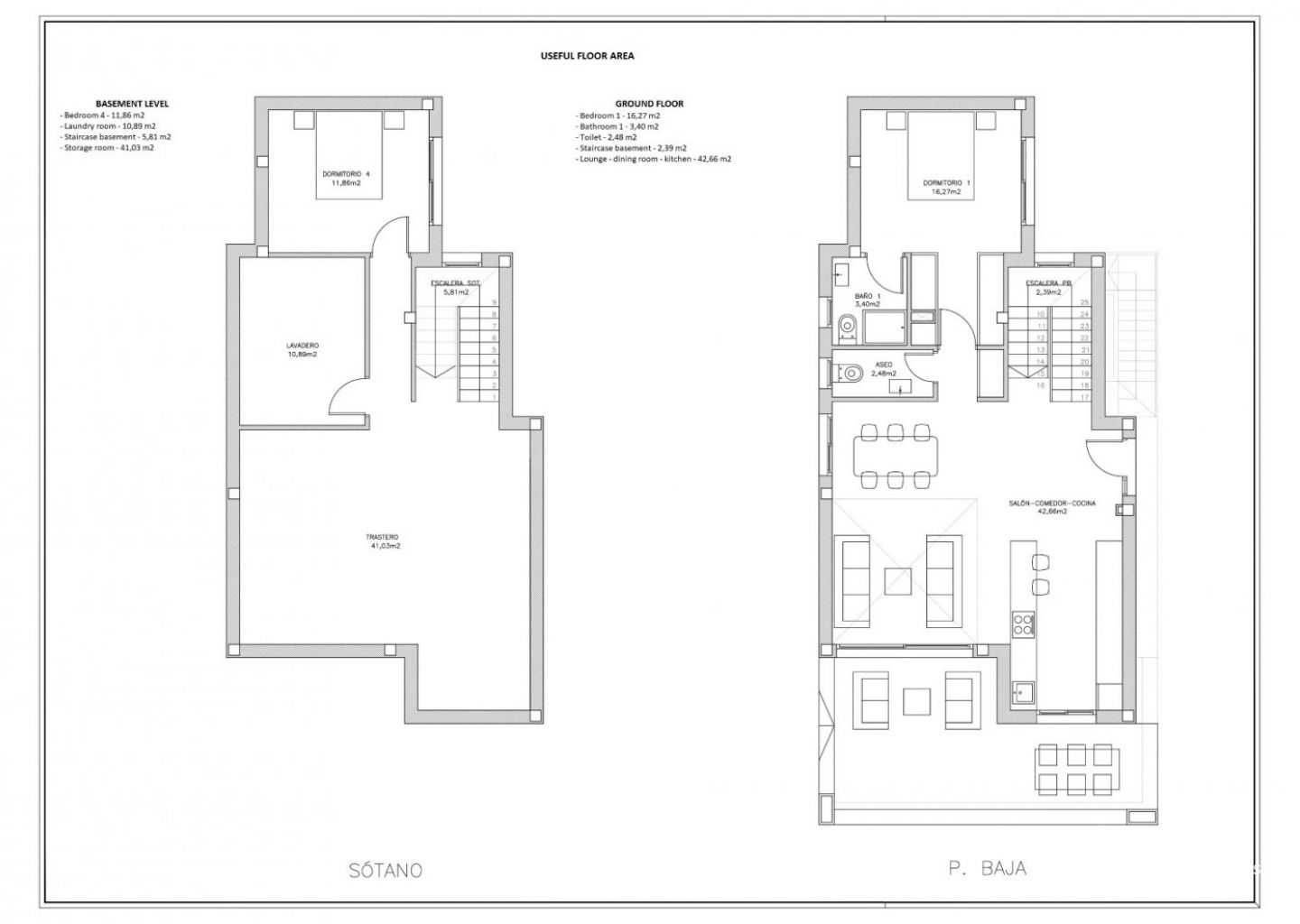
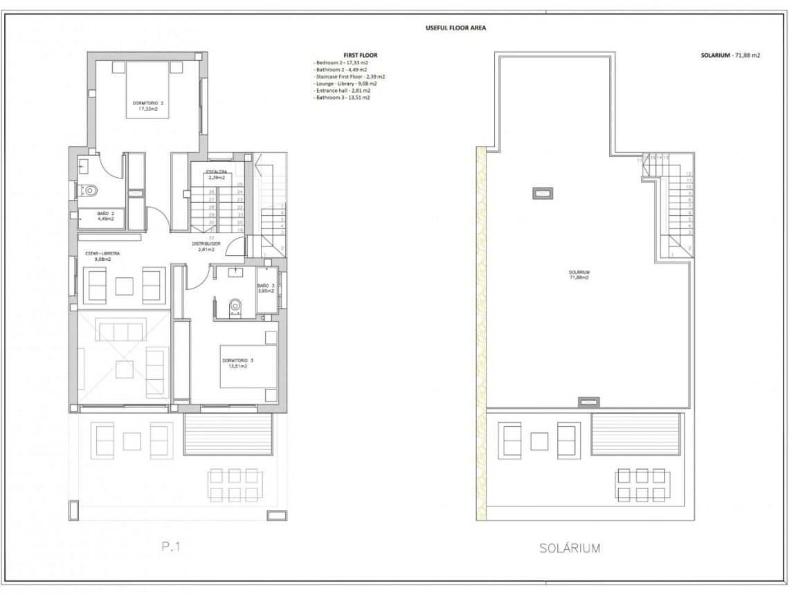
Виллы имеют 4 спальни, 4 ванные комнаты, кухню открытого плана с гостиной, встроенные шкафы, частный сад с бассейном и парковочным местом на бездорожье, частный солярий и подвал.
Виллы расположены в 15 минутах ходьбы от знаменитой Плайя де Ла Мата (5 минут на машине).
Торревьеха - испанский город в провинции Аликанте, на побережье Коста Бланка.
Он известен своим типично средиземноморским климатом и береговой линией. Вдоль его песчаных пляжей тянутся набережные с курортами.
В небольшом Музее моря и соли проводятся выставки, посвященные истории рыболовства и солеварения в городе.
В глубине города, в природном парке Лагунас-де-Ла-Мата-Торревьеха, есть тропы и две соленые лагуны, одна розовая, а другая зеленая.
Аэропорт Аликанте расположен в 40 минутах езды, а аэропорт Мурсии - примерно в 1 часе езды.
Эта информация может подвергаться изменениям и не является частью будущего контракта. Предложение может быть изменено или отозвано без предварительного уведомления. Расходы на покупку не включены в цену объекта