
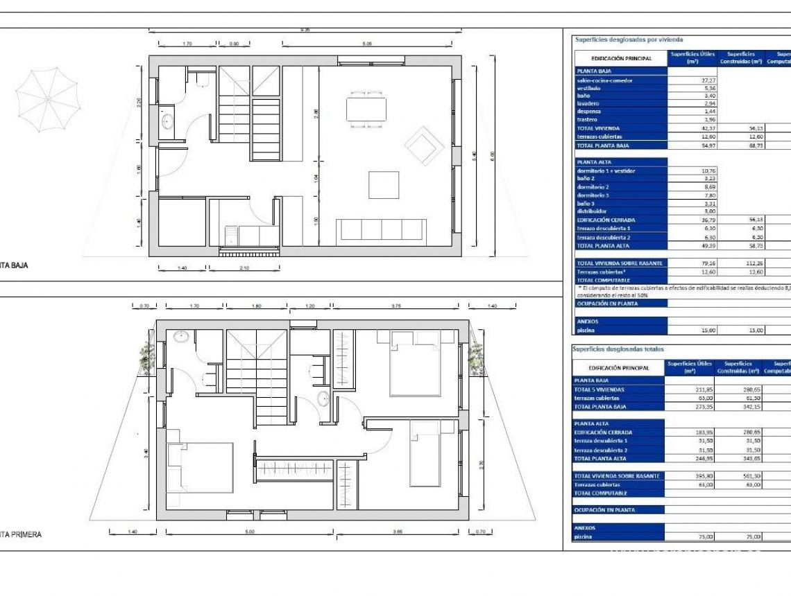
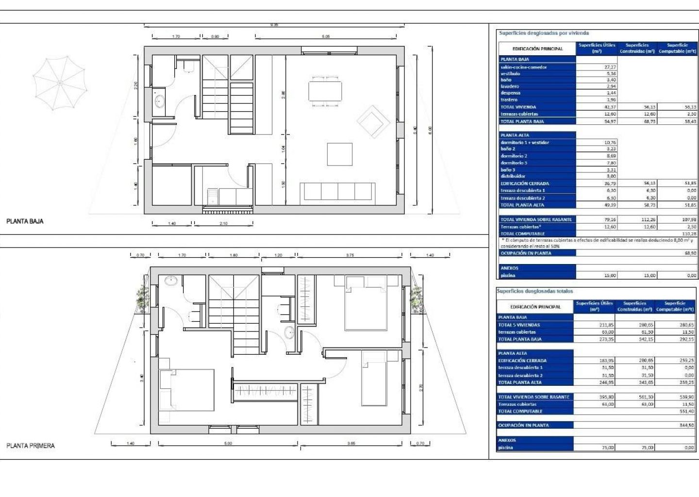
Nowoczesne, nowo wybudowane wille w Finestrat z prywatnym basenem w pobliżu Benidormu Doskonała lokalizacja w Finestrat na Costa Blanca Odkryj tę ekskluzywną inwestycję składającą się z zaledwie 5 nowoczesnych willi położonych w Finestrat, jednej z najbardziej pożądanych dzielnic mieszkaniowych na Costa Blanca. Dzięki doskonałej lokalizacji pomiędzy uroczą miejscowością Finestrat a tętniącym życiem miastem Benidorm, domy te oferują spokojne otoczenie w sercu natury, pozostając jednocześnie w pobliżu wszystkich udogodnień. Okolica znana jest z przepięknych widoków na Morze Śródziemne i otaczające góry, a także z bliskości pól golfowych, centrów handlowych i obiektów rekreacyjnych. Finestrat łączy w sobie tradycyjny hiszpański urok z nowoczesną infrastrukturą, co czyni go idealnym miejscem zarówno do stałego zamieszkania, jak i na domy wakacyjne. Położenie na wzniesieniu zapewnia otwarty widok i poczucie prywatności, a do tego wybrzeże znajduje się w odległości krótkiej przejażdżki samochodem. Nowoczesne wille zaprojektowane z myślą o komforcie i stylu Te eleganckie wille charakteryzują się nowoczesnym, minimalistycznym designem z czystymi liniami, dużymi panoramicznymi oknami i przestronnymi prywatnymi tarasami. Każda nieruchomość rozkłada się na dwóch piętrach i oferuje 3 sypialnie oraz 3 łazienki, w tym główną sypialnię z garderobą i dostępem do prywatnego tarasu. Dodatkowa garderoba zapewnia większą wygodę i miejsce do przechowywania. Otwarta przestrzeń zapewnia lepszy dostęp światła naturalnego i tworzy płynne połączenie między przestrzenią wewnętrzną a zewnętrzną, co idealnie nadaje się do cieszenia się śródziemnomorskim stylem życia przez cały rok. Prywatne przestrzenie zewnętrzne i wyposażenie klasy premium Każda willa położona jest na prywatnej, zagospodarowanej działce i posiada prywatny basen, idealny do relaksu i rozrywki. Nieruchomości oferują również prywatny parking na dwa samochody na terenie działki. Wysokiej jakości wykończenia i nowoczesne instalacje zapewniają maksymalny komfort i efektywność energetyczną. Wyposażenie obejmuje aerotermiczne systemy ciepłej wody, klimatyzatory typu split z indywidualną regulacją w każdym pokoju oraz designerskie oświetlenie wewnętrzne i zewnętrzne. Kuchnia jest w pełni umeblowana i wyposażona w płytę ceramiczną, okap i piekarnik. Energooszczędne domy z nowoczesną technologią Wille te, zbudowane z materiałów najwyższej jakości i posiadające klasę energetyczną A, zostały zaprojektowane tak, aby zmniejszyć zużycie energii przy zachowaniu wysokiego poziomu komfortu. Połączenie izolacji, wydajnych systemów i wysokiej jakości konstrukcji zapewnia zrównoważony i ekonomiczny dom. Doskonała komunikacja i pobliskie atrakcje Plaże w Benidormie 5 km Miejscowość Finestrat 3 km Pole golfowe Puig Campana 2 km Centrum handlowe La Marina 4 km Port w Benidormie 6 km Lotnisko w Alicante 55 km Twój idealny dom nad Morzem Śródziemnym czeka Niezależnie od tego, czy szukasz stylowej stałej rezydencji, wakacyjnego zacisza, czy też mądrej inwestycji, te nowoczesne wille w Finestrat oferują lokalizację, jakość i styl życia w jednym pakiecie. Skontaktuj się z nami już dziś, aby otrzymać więcej informacji lub umówić się na oglądanie i zapewnić sobie nowy dom na Costa Blanca.
Informacje podane tutaj mogą zawierać błędy i nie stanowią części żadnej umowy. Oferta może zostać zmieniona lub wycofana bez uprzedzenia. Ceny nie obejmują kosztów zakupu.