
Nowoczesne, nowo wybudowane wille w La Herrada Los Montesinos z prywatnym basenem
Ekskluzywny projekt mieszkaniowy w spokojnej okolicy
Położona w prestiżowej dzielnicy mieszkaniowej La Herrada w Los Montesinos, ta ekskluzywna inwestycja obejmująca 16 nowoczesnych willi zapewnia prywatność, komfort i doskonałą jakość życia. La Herrada słynie z spokojnej atmosfery mieszkaniowej, bliskości codziennych udogodnień i doskonałej lokalizacji pomiędzy słynnymi solniskami Torrevieja i La Mata. Jest to idealne miejsce dla osób poszukujących relaksującego i zdrowego śródziemnomorskiego stylu życia na południu Costa Blanca.
Nowoczesny design z optymalną przestrzenią wewnętrzną
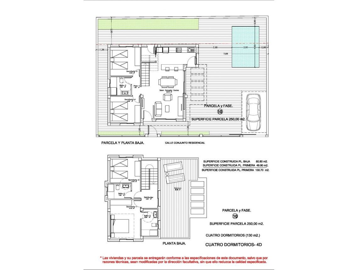
Każda willa ma 130 m² dobrze rozplanowanej powierzchni mieszkalnej na dwóch piętrach, zaprojektowanej tak, aby maksymalnie wykorzystać naturalne światło i funkcjonalność. Nieruchomości, zbudowane na działkach o powierzchni od 250 m², oferują przestronne obszary zewnętrzne, idealne do opalania się, rozrywki lub relaksu przy prywatnym basenie.
Wygodny układ na dwóch piętrach
Na parterze znajduje się otwarty salon z w pełni zintegrowaną kuchnią i bezpośrednim dostępem do ogrodu i basenu. Na tym piętrze znajdują się również dwie sypialnie, w pełni wyposażona łazienka i praktyczna pralnia.
Na piętrze znajdują się dwie przestronne sypialnie, każda z własną łazienką, z których jedna jest łazienką przy sypialni. Obie sypialnie mają dostęp do otwartego prywatnego tarasu o powierzchni 28 m². Dla tych, którzy chcą mieć jeszcze więcej przestrzeni na świeżym powietrzu, dostępne jest opcjonalne solarium na dachu, dostępne za dodatkową opłatą.
Wysokiej jakości wykończenia i nowoczesne wyposażenie
Wille wyposażone są w wysokiej jakości elementy wykończeniowe, takie jak meble łazienkowe, lustra, kabiny prysznicowe i ogrzewanie podłogowe we wszystkich łazienkach. Istnieje możliwość instalacji klimatyzacji kanałowej, bramy wjazdowej z napędem elektrycznym, prywatnego parkingu na działce oraz ogrodzonego dostępu do osiedla przez prywatną drogę wewnętrzną.
Doskonała lokalizacja w pobliżu kluczowych udogodnień i atrakcji
Plaże Guardamar i Torrevieja w odległości 9 km
Pola golfowe La Marquesa Golf, La Finca Golf i Vistabella Golf w odległości mniej niż 5 km
Lotnisko w Alicante w odległości 29 km
Parki przyrodnicze, solniska, trasy rowerowe i szlaki turystyczne w pobliżu
Komfortowe życie w samym sercu Costa Blanca
Te nowo wybudowane wille w Los Montesinos oferują idealne połączenie nowoczesnego komfortu, naturalnego otoczenia i doskonałej dostępności. Niezależnie od tego, czy szukasz stałego miejsca zamieszkania, czy domu wakacyjnego, ta inwestycja oferuje wszystko, czego potrzebujesz, aby cieszyć się spokojnym i komfortowym śródziemnomorskim stylem życia. Skontaktuj się z nami już dziś, aby umówić się na oglądanie nieruchomości i zapewnić sobie nowy dom w La Herrada.
Informacje podane tutaj mogą zawierać błędy i nie stanowią części żadnej umowy. Oferta może zostać zmieniona lub wycofana bez uprzedzenia. Ceny nie obejmują kosztów zakupu.