
NOWY KOMPLEKS MIESZKANIOWY W Las Colinas Golf & Country Club
Nowa inwestycja składa się z 15 luksusowych apartamentów z ogromnymi tarasami, z których roztaczają się widoki na otaczające naturalne tereny zielone.
Połączono tu nowoczesną i tradycyjną architekturę śródziemnomorską. Od samego początku założeniem było stworzenie apartamentów o wysokim standardzie wykończenia, obejmującym m.in. ogrzewanie podłogowe wodne, kran typu Quooker, system wymiany powietrza, sufity redukujące hałas, lakierowane kuchnie, system inteligentnego domu i wiele więcej.
Biorąc pod uwagę uprzywilejowaną lokalizację i widoki, kompleks oferuje idealne warunki dla klientów o wyszukanym guście.
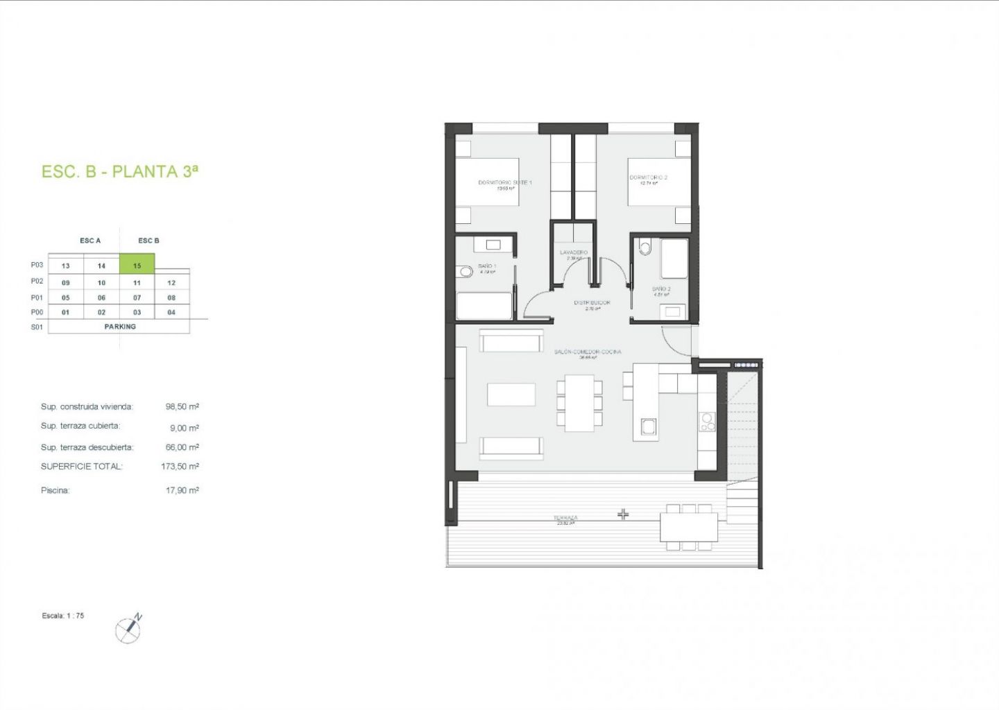
Na trzecim piętrze znajdują się 3 apartamenty:
Z apartamentów jest bezpośredni dostęp do dużych tarasów na tym samym poziomie. Dodatkowo znajduje się schodowe wejście na solarium, gdzie każdy apartament na najwyższym piętrze posiada prywatny basen, toaletę, kuchnię na świeżym powietrzu z małą windą z kuchni na dole oraz wiele innych udogodnień.
W Las Colinas Golf & Country Club właściciele mają do dyspozycji szeroki wachlarz usług, takich jak tenis, padel, siłownia, masaże, golf, piesze wycieczki i wiele więcej. Na terenie kompleksu znajdują się również restauracje oraz minimarket oferujący świeże pieczywo i inne produkty.
Do dyspozycji mieszkańców jest aż 200 000 m² pięknych śródziemnomorskich krajobrazów, idealnych na malownicze spacery wśród bujnej, lokalnej roślinności oraz rozległych sadów pomarańczy i cytryn.
Kompleks znajduje się około 40 minut od lotniska w Alicante oraz około 1 godziny od lotniska Aeropuerto Internacional de la Región de Murcia.
Informacje podane tutaj mogą zawierać błędy i nie stanowią części żadnej umowy. Oferta może zostać zmieniona lub wycofana bez uprzedzenia. Ceny nie obejmują kosztów zakupu.