
NOWY KOMPLEKS MIESZKANIOWY W La Nucia
Nowy kompleks mieszkaniowy obejmujący apartamenty i penthouse’y z zewnętrznym wspólnym basenem, parkingiem, komórkami lokatorskimi, windą, siłownią oraz strefą spa z krytym podgrzewanym basenem, sauną i jacuzzi w La Nucia.
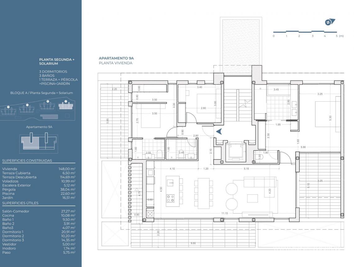
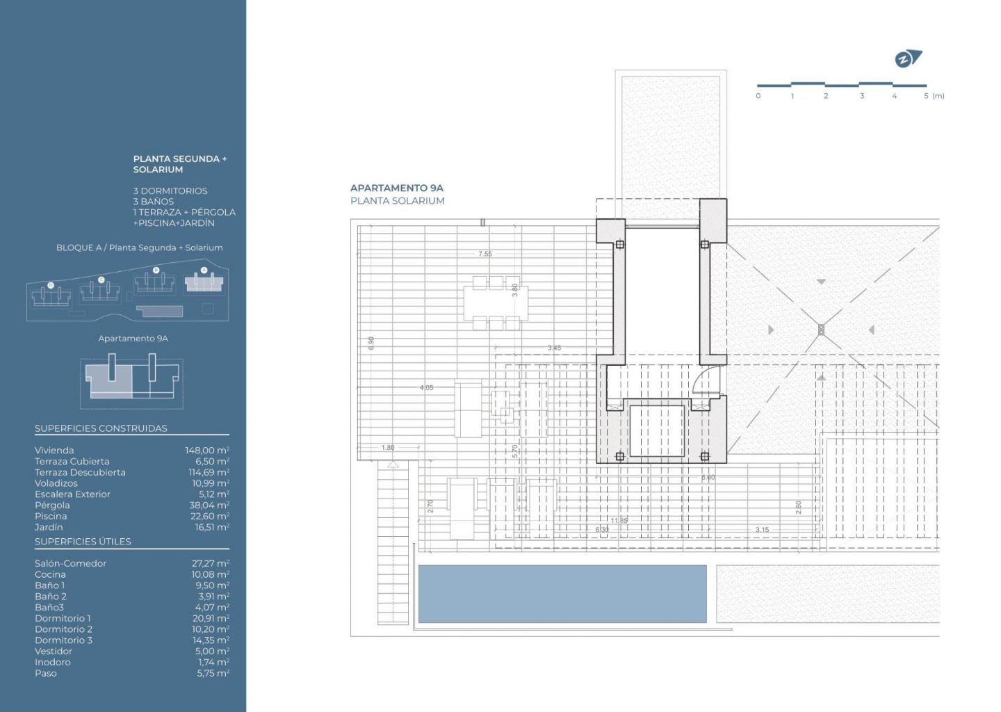
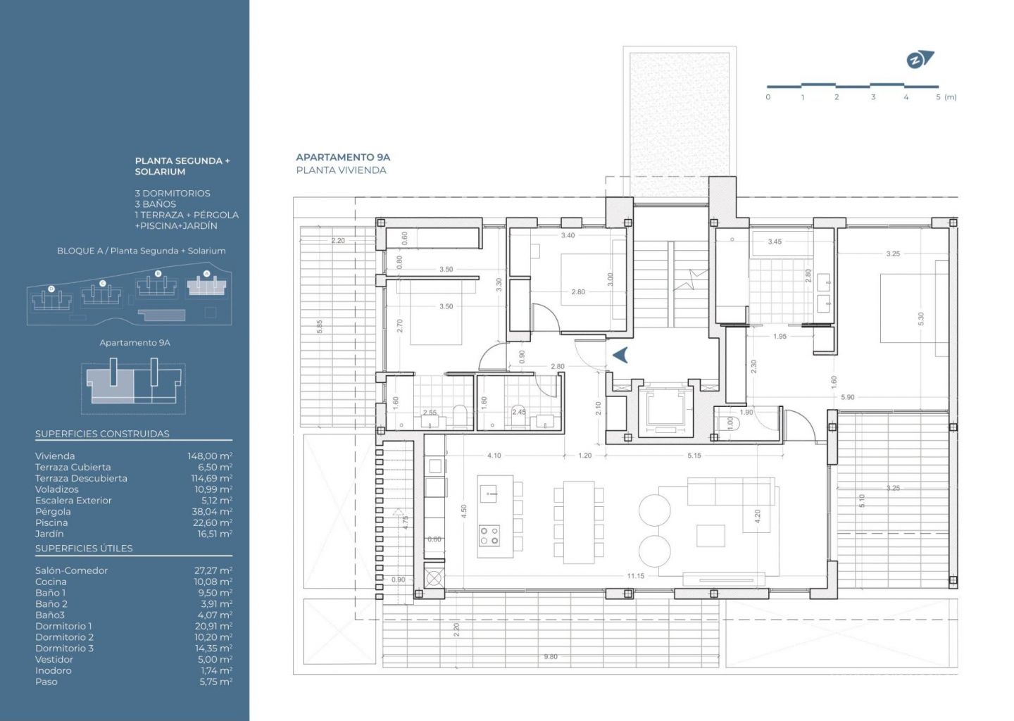
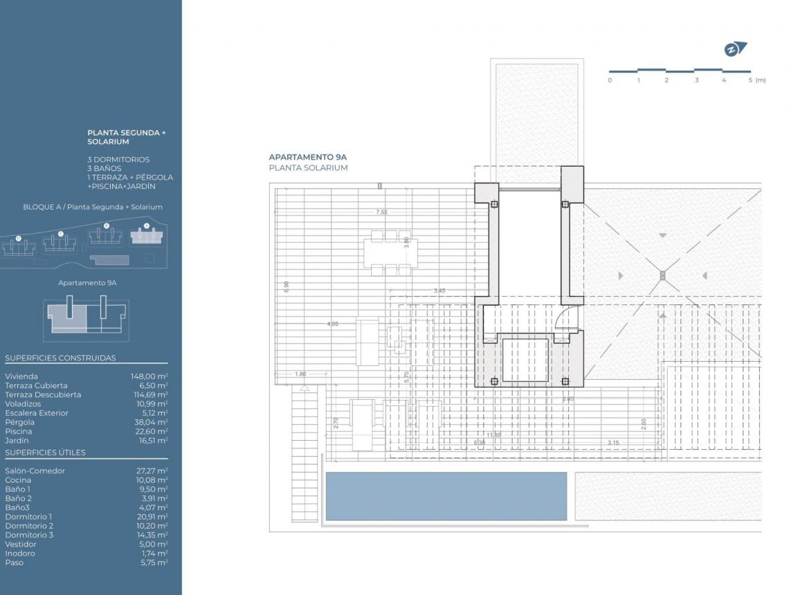
Nowoczesne mieszkania z 2 i 3 sypialniami, wszystkie z 2 łazienkami, kuchnią w stylu amerykańskim połączoną z przestronnym salonem, wbudowanymi szafami, tarasem oraz miejscem parkingowym w garażu podziemnym. Penthouse’y posiadają prywatne solaria z basenem.
Kompleks wyróżnia się nowoczesną, awangardową architekturą, wysokiej jakości wykończeniem oraz luksusowymi udogodnieniami – to idealna inwestycja dla osób poszukujących maksymalnego komfortu i prestiżu.
Wnętrza łączą elegancki design z nowoczesną wyrafinowaną stylistyką, tworząc przestrzenie, które zamieniają każdy dzień w wyjątkowe doświadczenie komfortu i dobrego samopoczucia.
Kuchnia w stylu niemieckim (Burger lub podobna) z blatem Silestone, w pełni wyposażona. Sprzęt AGD Siemens lub podobny: płyta indukcyjna, okap, piekarnik, lodówka i zmywarka w zabudowie.
Drzwi wejściowe antywłamaniowe z zamkiem bezpieczeństwa, wykończone lakierowanymi panelami dopasowanymi do stolarki wewnętrznej. Opcja zamka sterowanego zdalnie przez smartfon lub tablet.
Szafy modułowe z drzwiami skrzydłowymi lub przesuwnymi, lakierowane, z dopasowaniem do reszty stolarki, wyposażone w półki, szuflady i drążki.
Nieruchomość przygotowana do podłączenia szybkiego internetu.
Elektryczne ogrzewanie podłogowe o niskim zużyciu energii w łazienkach.
Wideodomofon elektroniczny z kolorowym obrazem oraz zdalnym sterowaniem przez telefon lub tablet.
Klimatyzacja Samsung – każda sypialnia posiada własną jednostkę i niezależne sterowanie. System sterowany pilotem oraz z możliwością obsługi z telefonu lub tabletu.
Pełna instalacja klimatyzacji z pompą ciepła zapewniająca zarówno chłodzenie, jak i ogrzewanie, z kanałami z włókna szklanego. Jednostki wewnętrzne ukryte w suficie podwieszanym w łazienkach i korytarzach, a jednostka zewnętrzna zgodnie z projektem.
System wentylacji z odzyskiem powietrza w łazienkach i kuchni oraz programowaniem czasowym.
Wspólny basen z solankowym systemem chlorowania oraz automatyczną kontrolą pH i chloru.
W części podziemnej znajduje się siłownia, kryty podgrzewany basen, jacuzzi, sauna, łaźnia parowa, chromoterapia oraz szatnie z łazienkami.
Duże tarasy i ogrody z roślinnością rodzimą przeznaczone do wspólnego użytku.
Obwód działki obsadzony roślinami tworzącymi prywatną, zieloną przestrzeń w miarę ich wzrostu.
System monitoringu wizyjnego dla części wspólnych.
Położony w doskonałej lokalizacji pomiędzy La Nucia a Altea, kompleks oferuje wyjątkowe otoczenie oraz doskonałe udogodnienia w obrębie osiedla.
Informacje podane tutaj mogą zawierać błędy i nie stanowią części żadnej umowy. Oferta może zostać zmieniona lub wycofana bez uprzedzenia. Ceny nie obejmują kosztów zakupu.