Eksklusive nybyggede villaer 300 m fra stranden i Torre de la Horadada

  • Ref.: NB-14694
  • 130m2
  • 207m2
  • 3
  • 3
  •  
Fra 589.000€ Informera prisfall

Kjennetegn

Soverom: 3
Baderom: 3
Inne: 130m2
Plott: 207m2
Energi~~POS=TRUNC: B
Byggeår: 2025
Avstand til strand: 300 Mts.
Gated
Solarium: Yes
Near Schools
Near Commercial Center
Location: Coastal
Double Bedrooms: 3
Near Golf / Golf Resort Property
Key Ready
Useable Build Space: 115 Msq.
Number of Parking Spaces: 2
Beach: 300 Meters
Terrace: 88 Msq.
Parking - Space
Energi~~POS=TRUNC
Energi~~POS=TRUNC:
B

Beskrivelse

Eksklusive nybyggede villaer 300 m fra stranden i Torre de la Horadada

Luksuriøst kystliv i en førsteklasses beliggenhet
Oppdag dette eksklusive nybyggprosjektet i Torre de la Horadada, en av de mest ettertraktede kystbyene sør i Alicante. Disse villaene ligger bare 300 m fra Middelhavet og innen gangavstand fra butikker, restauranter og daglige tjenester, og tilbyr en enestående mulighet til å nyte Costa Blanca-livsstilen. Torre de la Horadada er kjent for sin avslappede atmosfære, vakre promenade og fine sandstrender, noe som gjør den ideell både for permanent opphold og ferie.

Siste nøkkelklar villa fullt utstyrt
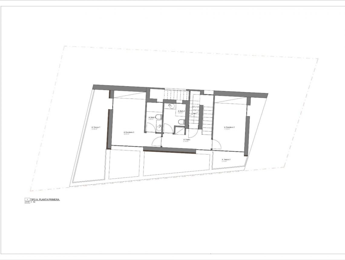
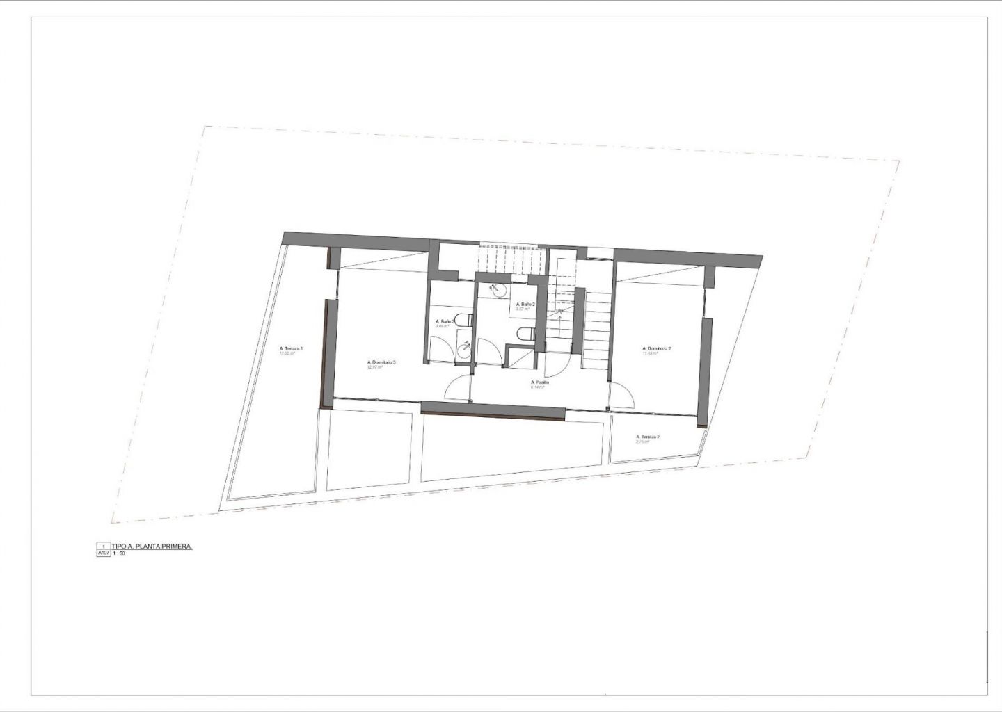
Dette boutique-prosjektet består av bare fire uavhengige villaer, hvor den siste enheten er nøkkelklar og fullt møblert. Villaen leveres komplett med møbler, hvitevarer og sentral klimaanlegg, slik at du kan flytte inn umiddelbart og begynne å nyte ditt nye hjem ved sjøen. Villaen ligger på en privat tomt på ca. 207 m2 og har et bygget areal på ca. 130 m2 fordelt på første etasje, andre etasje og et privat solarium på taket.

Moderne design med privat basseng og solarium
Villaen har et moderne design med åpne og lyse rom. Innvendig finner du tre romslige soverom og tre bad, en stue/spisestue med åpen kjøkkenløsning og direkte tilgang til hagen og det private svømmebassenget. Solterrassen på taket er et ideelt sted å slappe av, sole seg eller nyte den åpne utsikten, og skaper et perfekt uteområde hele året.

Høy kvalitet og komfort
Eiendommen er bygget etter høye standarder og har en forsterket inngangsdør, motoriserte persienner i soverommene, et privat svømmebasseng og et grunnleggende hjemmestyresystem for elektronisk kontroll. Kanalisert klimaanlegg er fullt installert, noe som sikrer komfort i alle årstider. En privat parkeringsplass på tomten gir ekstra bekvemmelighet og sikkerhet.

Torre de la Horadada og omegn
Torre de la Horadada tilbyr et sjarmerende kystmiljø med en lang strandpromenade, marinaer og et bredt utvalg av restauranter, barer og lokale butikker. De nærliggende strendene Torre de la Horadada og Mil Palmeras er blant de beste i området, og er ideelle for svømming, vannsport, snorkling og dykking. Området har gode transportforbindelser og er omgitt av golfbaner, kjøpesentre og fritidstilbud.

Avstander til viktige severdigheter
Strand: 0,3 km
Plaza Nueva shoppingområde: 0,2 km
Lo Romero Golf: 7 km
Marinaen i Torre de la Horadada: 1,5 km
Murcia Corvera flyplass: 45 km
Alicante flyplass: 50 km

Ditt nye hjem ved Middelhavet venter
Denne nøkkelferdige villaen i Torre de la Horadada er en unik mulighet til å eie et moderne hjem bare noen skritt fra stranden. Kontakt oss i dag for å avtale en visning og sikre deg denne eksepsjonelle nybygde villaen på Costa Blanca.

Plassering

Økonomi

Denne informasjonen gitt her er underlagt feil og inngår ikke i noen kontrakt. Tilbudet kan endres eller trekkes tilbake uten varsel. Prisene inkluderer ikke andre kostnader

Beregn boliglån

Valutaveksling

  • Pounds: 513.420 GBP
  • Russiske rubelen: 513.420 RUB
  • Sveitsiske franc: 543.706 CHF
  • Kinesiske yuan: 4.740.449 CNY
  • Dollar: 694.843 USD
  • Svenske kroner: 6.362.967 SEK
  • Den norske kronen: 6.489.013 NOK

Mer informasjon

Responsable del tratamiento: Naranja Spain, Finalidad del tratamiento: Gestión y control de los servicios ofrecidos a través de la página Web de Servicios inmobiliarios, Envío de información a traves de newsletter y otros, Legitimación: Por consentimiento, Destinatarios: No se cederan los datos, salvo para elaborar contabilidad, Derechos de las personas interesadas: Acceder, rectificar y suprimir los datos, solicitar la portabilidad de los mismos, oponerse altratamiento y solicitar la limitación de éste, Procedencia de los datos: El Propio interesado, Información Adicional: Puede consultarse la información adicional y detallada sobre protección de datos Aquí.

© 2026 Naranja Spain · Juridisk merknad

Privatliv · Cookies · Web kart · Design: Mediaelx