Nybyggede leiligheter i Los Balcones, Torrevieja

  • Ref.: NB-63840
  • 99m2
  • 76m2
  • 3
  • 2
  •  
340.000€ Informera prisfall

Kjennetegn

Soverom: 3
Baderom: 2
Inne: 99m2
Plott: 76m2
Energi~~POS=TRUNC: B
Avstand til strand: 3500 Mts.
Parking - Space
Useable Build Space: 94 Msq.
Storage / Trastero
Gated
Number of Parking Spaces: 1
Near Schools
Near Commercial Center
Air Conditioning: Pre-Installed
Double Bedrooms: 3
Communal Pool
Near Golf / Golf Resort Property
Location: Coastal, Urbanisation
Beach: 3500 Meters
Terrace: 27 Msq.
Energi~~POS=TRUNC
Energi~~POS=TRUNC:
B

Beskrivelse

Nybyggede leiligheter i Los Balcones, Torrevieja

Moderne boliger i et førsteklasses boligområde
Oppdag dette attraktive nybyggede boligkomplekset i Los Balcones, et av de mest populære og etablerte nabolagene i utkanten av Torrevieja. Dette boligprosjektet ligger i et fredelig miljø med utmerket tilgang til alle nødvendige tjenester, bare 4 km fra sandstrendene på Costa Blanca. Los Balcones er kjent for sin avslappede atmosfære, brede gater, grønne områder og nærhet til sykehus, supermarkeder, restauranter og kjøpesentre, noe som gjør det ideelt for helårsbolig eller feriebolig.

Moderne leiligheter med private uteområder
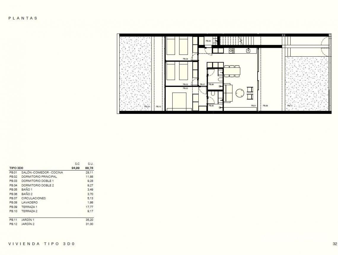
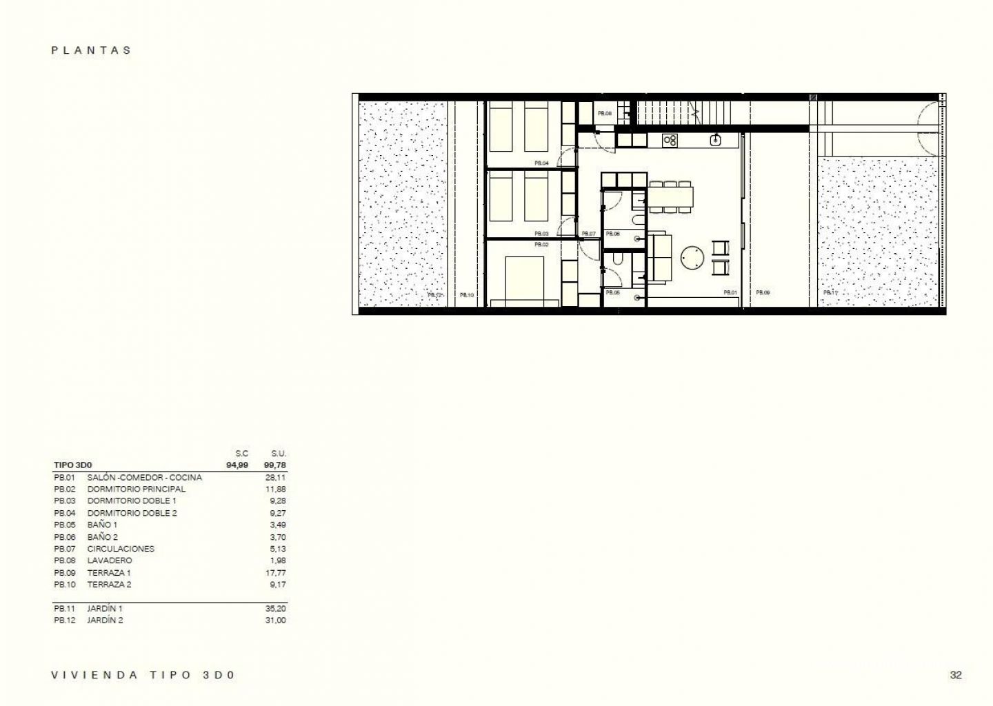
Komplekset består av 52 moderne leiligheter bygget på et totalt areal på 6700 m2. Hver eiendom har en privat parkeringsplass og en bod i kjelleren. Boligene har 2 eller 3 soverom og 2 bad, hvorav det ene er en suite.

Kjøpere kan velge mellom leiligheter i første etasje med privat hage eller boliger i øvre etasje med romslig terrasse og privat solarium. Disse planløsningene er designet for å maksimere naturlig lys og gi komfortable innendørs og utendørs oppholdsrom for å nyte middelhavsklimaet hele året.

Fellesarealer designet for avslapning
Prosjektet er organisert i fire blokker som omgir et stort sentralt fellesareal. Dette grønne hjertet av prosjektet har et svømmebasseng med et eget barneområde og vakre hager. Disse fellesarealene er perfekte for avslapning, sosialt samvær og familietid i et trygt og vennlig miljø.

Kvalitetsfunksjoner og energieffektiv design
Hver leilighet er bygget etter moderne standarder og inkluderer forhåndsinstallasjon av kanalisert klimaanlegg, et aerotermisk varmtvannssystem for forbedret energieffektivitet, utvendig belysning og doble vinduer. Kjøkkenene er fullt møblerte og tilbyr et funksjonelt og stilig rom for daglig bruk.

Disse funksjonene sikrer høy komfort, lite vedlikehold og redusert energiforbruk, noe som gjør boligene både praktiske og bærekraftige.

Utmerket beliggenhet nær strender og golf
Los Balcones har en strategisk beliggenhet nær mange interessante steder. Strendene i Torrevieja ligger omtrent 4 km unna. Flere kjente golfbaner, som Villamartin Golf, Las Ramblas Golf og Campoamor Golf, ligger innenfor 10 til 15 km. Universitetssykehuset i Torrevieja ligger mindre enn 2 km unna, noe som gir ekstra bekvemmelighet og trygghet.

Torrevieja sentrum ligger rundt 5 km unna, med bussforbindelse til Los Balcones, hvor du finner et bredt utvalg av butikker, restauranter, kulturarenaer og en livlig marina. Alicante internasjonale lufthavn ligger omtrent 42 km unna, med gode internasjonale forbindelser. Torrevieja havn ligger omtrent 6 km unna.

Ideelt for å bo eller investere
Med sitt moderne design, utmerkede fellesarealer og førsteklasses beliggenhet nær strender, golfbaner og tjenester, er dette nye boligkomplekset i Los Balcones Torrevieja perfekt som permanent bolig, feriebolig eller investeringsmulighet.

Kontakt oss i dag for mer informasjon eller for å avtale visning av disse nybygde leilighetene i Los Balcones, Torrevieja.

Plassering

Økonomi

Denne informasjonen gitt her er underlagt feil og inngår ikke i noen kontrakt. Tilbudet kan endres eller trekkes tilbake uten varsel. Prisene inkluderer ikke andre kostnader

Beregn boliglån

Valutaveksling

  • Pounds: 293.794 GBP
  • Russiske rubelen: 293.794 RUB
  • Sveitsiske franc: 311.304 CHF
  • Kinesiske yuan: 2.719.626 CNY
  • Dollar: 399.874 USD
  • Svenske kroner: 3.686.280 SEK
  • Den norske kronen: 3.679.310 NOK

Mer informasjon

Responsable del tratamiento: Naranja Spain, Finalidad del tratamiento: Gestión y control de los servicios ofrecidos a través de la página Web de Servicios inmobiliarios, Envío de información a traves de newsletter y otros, Legitimación: Por consentimiento, Destinatarios: No se cederan los datos, salvo para elaborar contabilidad, Derechos de las personas interesadas: Acceder, rectificar y suprimir los datos, solicitar la portabilidad de los mismos, oponerse altratamiento y solicitar la limitación de éste, Procedencia de los datos: El Propio interesado, Información Adicional: Puede consultarse la información adicional y detallada sobre protección de datos Aquí.

Lignende eiendommer

© 2026 Naranja Spain · Juridisk merknad

Privatliv · Cookies · Web kart · Design: Mediaelx