
Moderne nybygget villa med luksuriøse detaljer i Javea
Moderne middelhavsstil på Costa Blanca
Denne fantastiske frittliggende nybygde villaen i Javea kombinerer høy kvalitet, elegant design og optimal funksjonalitet fordelt på tre romslige etasjer. Eiendommen ligger i en av de mest attraktive kystbyene på Costa Blanca Nord, og tilbyr et fredelig bomiljø omgitt av grønne fjell, naturparker og vakre strender. Javea er kjent for sitt krystallklare vann, tradisjonelle gastronomi og middelhavsstil, noe som gjør det til et ideelt sted både for permanent opphold og investering.
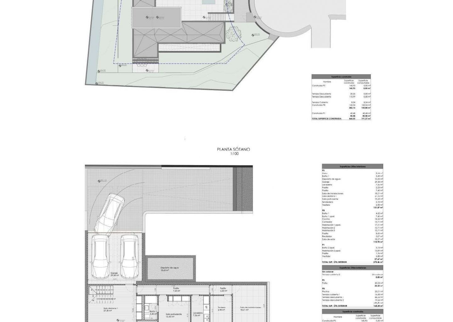
Romslig kjeller designet for allsidighet
Kjellernivået er gjennomtenkt designet for å møte moderne livsstilsbehov. Det inkluderer en åpen garasje for to biler, et bad, et gjestetoalett, et åpent rom, et flerbruksrom og en uteplass som bringer naturlig lys inn i rommet. Denne etasjen gir uendelige muligheter, enten du ser for deg et treningsstudio, underholdningsrom, kontor eller gjestesuite.
Elegant første etasje med sammenhengende oppholdsrom
Første etasje har en lys stue/spisestue som integreres sømløst med det fullt utstyrte kjøkkenet, og skaper et perfekt område for familiesammenkomster. En entré, gjestetoalett og ganger gir praktisk funksjonalitet og flyt. Denne etasjen har to komfortable soverom som deler et moderne bad og et romslig hovedsoverom med eget bad, som tilbyr privatliv og komfort.
Luksuriøs master suite i øverste etasje
Øverste etasje er dedikert til et andre hovedsoverom, som tilbyr et eksklusivt tilfluktssted med eget bad, garderobe og gang. Dette private rommet sikrer komfort og ro med vakker utsikt over det grønne landskapet rundt.
Uteområde designet for middelhavsklima
Uteområdene på eiendommen er skapt for å nyte friluftsliv hele året. Den har to overbygde terrasser og to uoverbygde terrasser i første etasje. En av de overbygde terrassene omgir svømmebassenget, perfekt for sommeravslapning, mens den uoverbygde terrassen ved siden av kjøkkenet er ideell for utendørs servering og samlinger.
Villaen er utstyrt med gulvvarme og sentral klimaanlegg, og garanterer komfort i alle årstider.
Førsteklasses beliggenhet i Javea
El Arenal-stranden 3 km
Javea havn og marina 7 km
Javea golfklubb 3 km
Alicante flyplass 100 km
Valencia flyplass 125 km
Ditt middelhavshjem venter
Enten du er på utkikk etter en luksuriøs bolig, et feriehus eller en sikker langsiktig investering, tilbyr denne villaen en eksepsjonell livsstil i Javea. Kontakt oss i dag for å avtale en visning og oppdag ditt fremtidige hjem på Costa Blanca.
Denne informasjonen gitt her er underlagt feil og inngår ikke i noen kontrakt. Tilbudet kan endres eller trekkes tilbake uten varsel. Prisene inkluderer ikke andre kostnader