
Nybyggede rekkehus ved La Serena Golf i Los Alcázares
Førsteklasses beliggenhet ved golfbanen og havet
Oppdag et eksklusivt boligprosjekt med 31 nybyggede rekkehus ved La Serena Golf i Los Alcázares, bare 600 meter fra Mar Menor. Dette privilegerte området ligger i hjertet av Costa Cálida og kombinerer golf, strand og middelhavsliv. Med alle fasiliteter i nærheten og utmerket veiforbindelse er dette det ideelle stedet både for ferie og helårsbeboelse.
Moderne boliger med privat basseng og solarium på taket
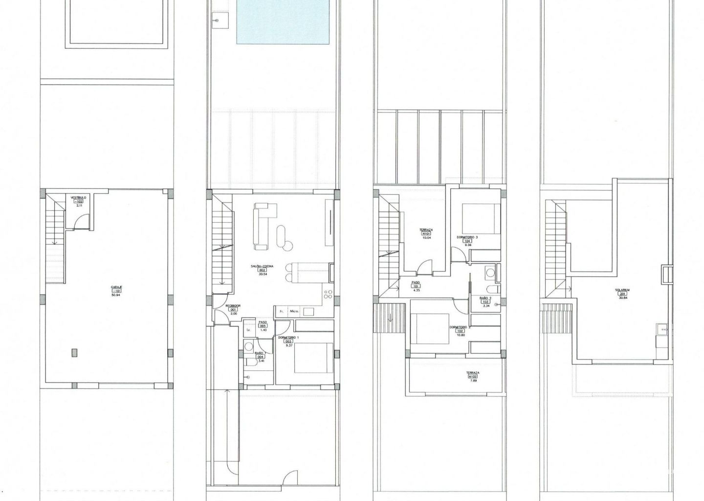
Hver bolig har et stilig, moderne design og lyse innvendige rom. Boligene er fordelt på tre etasjer pluss solarium på taket, og tilbyr maksimal komfort og privatliv:
Kjeller med privat garasje for 2 biler og tilgang til en uteplass
Første etasje med åpen stue og kjøkken som fører til en hage og privat basseng, 1 soverom og 1 bad
Andre etasje med 2 soverom, 1 bad og 2 terrasser
Solarium på taket med sommerkjøkken, ideelt for å slappe av og nyte panoramautsikten
Øst- og vestvendt beliggenhet sikrer utmerket naturlig lys og utendørs liv hele dagen.
Høy kvalitet og komfort
Disse husene er bygget etter de høyeste standarder og tilbyr førsteklasses funksjoner, inkludert:
Privat svømmebasseng
Kjellergarasje for 2 biler med motorisert port
Aerotermisk varmtvannssystem
Fullt installert klimaanlegg
Møblert og utstyrt kjøkken
Fullt utstyrte bad med møbler, speil og dusjvegger
Sikkerhetsdør
Bo mellom havet og golfbanen
Dette eksklusive boligområdet ligger i frodige middelhavslandskap og tilbyr fredelig boende ved siden av Serena Golf-banen, en kjent 18-hulls bane omgitt av natur og rolige innsjøer. Det varme, grunne vannet i Mar Menor er perfekt for svømming og vannsport som seiling, paddle surfing og kajakkpadling hele året.
Viktige avstander:
Strand (Mar Menor): 600 m
La Serena Golf: ved siden av komplekset
Los Alcázares sentrum: 2 km
Cartagena: 22 km
Murcia by: 40 km
Murcia flyplass: 30 km
Alicante flyplass: 90 km
Sikre deg en middelhavsstil
Enten du er på utkikk etter en permanent bolig, et feriehus eller en lønnsom investering, tilbyr disse husene luksus, bekvemmelighet og en førsteklasses kystlivsstil.
Kontakt oss i dag for å avtale en visning og sikre deg ditt nye hjem i Los Alcázares.
Denne informasjonen gitt her er underlagt feil og inngår ikke i noen kontrakt. Tilbudet kan endres eller trekkes tilbake uten varsel. Prisene inkluderer ikke andre kostnader