Eksklusive nybygg i Pilar de la Horadada, Costa Blanca

  • Ref.: NB-22676
  • 90m2
  • 21m2
  • 3
  • 2
  •  
359.900€ Informera prisfall

Kjennetegn

Soverom: 3
Baderom: 2
Inne: 90m2
Plott: 21m2
Energi~~POS=TRUNC: B
Avstand til strand: 3500 Mts.
Gated
Number of Parking Spaces: 1
Near Schools
Near Commercial Center
Double Bedrooms: 3
Communal Pool
Near Bus Route
Location: Coastal, Urbanisation
Useable Build Space: 80 Msq.
Beach: 3500 Meters
Terrace: 31 Msq.
Parking - Space
Storage / Trastero
Energi~~POS=TRUNC
Energi~~POS=TRUNC:
B

Beskrivelse

Eksklusive nybygg i Pilar de la Horadada, Costa Blanca

Moderne middelhavsstil nær stranden
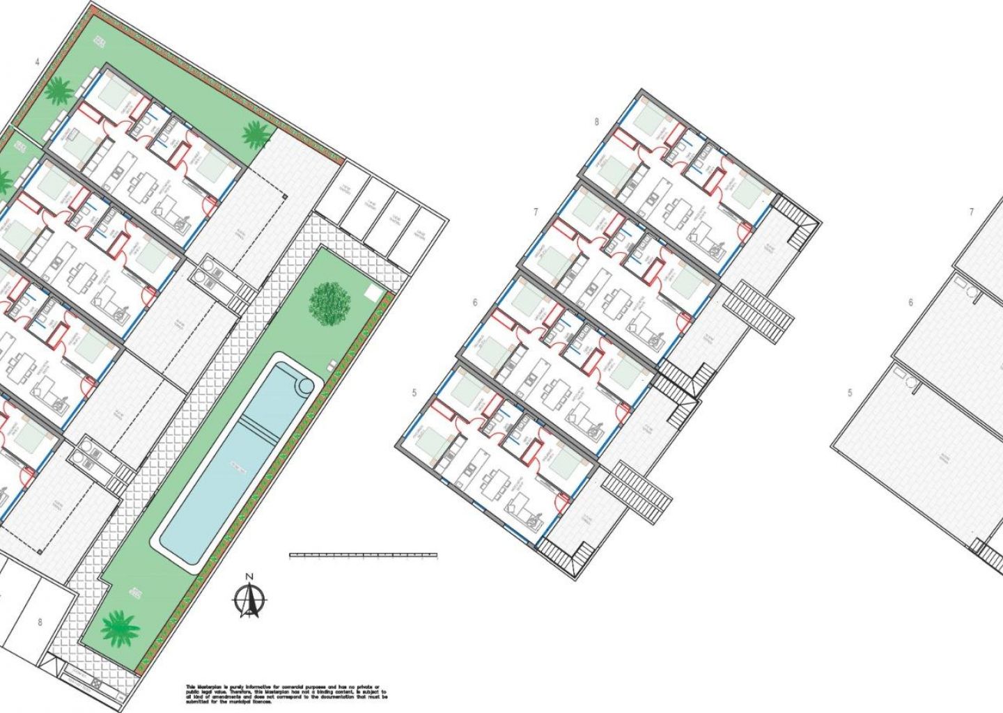
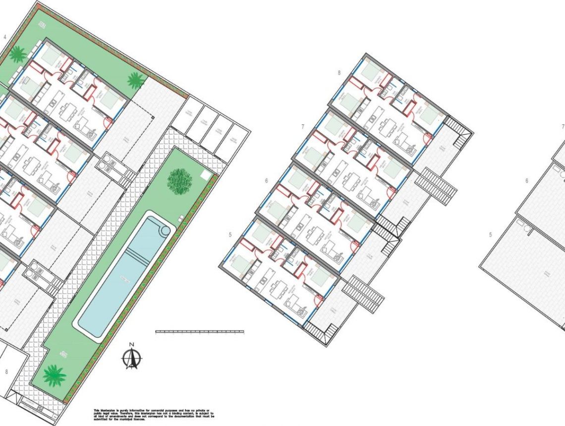
Oppdag dette eksklusive nybyggprosjektet med bare 8 moderne boliger i Pilar de la Horadada, som ligger i gangavstand fra sentrum og bare 3,5 km fra de vakre strendene i Torre de la Horadada og Mil Palmeras. Denne sjarmerende kystbyen, som ligger i den sørligste delen av Costa Blanca, er kjent for sin avslappede atmosfære, tradisjonelle spanske sjarm og utmerkede fasiliteter. Innbyggerne kan nyte godt av et bredt utvalg av tjenester, inkludert supermarkeder, restauranter, butikker og fritidsområder, alt bare noen få minutter unna.

Elegante boliger designet for komfort og stil
Utbyggingen tilbyr et utvalg av leiligheter i første etasje med terrasser og private hager, eller leiligheter i øverste etasje med romslige terrasser og private solarium. Hver bolig har 3 soverom og 2 bad, hvorav ett er ensuite, designet med moderne linjer og høykvalitets finish for å sikre maksimal komfort.

Boligkomplekset har et felles svømmebasseng omgitt av anlagte hager, som skaper et innbydende og fredelig miljø for avslapning og fritid. Hver eiendom har også en privat parkeringsplass og et bod.

Høy kvalitet på finish og førsteklasses funksjoner
Disse nybygde boligene er konstruert med materialer av topp kvalitet og med fokus på detaljer. Viktige spesifikasjoner inkluderer:
Aluminiumsvinduer i antrasittgrått med termisk barriere (merket CORTIZO)
Firedobbel vinduer med solbeskyttelse
Elektriske aluminiumsluker i soverommene
Hengende toaletter og dusjkabinetter med integrert gulv
Baderomsmøbler med LED-bakbelyste speil og elektriske håndklestativ
Fullt utstyrt kjøkken med Miele-apparater
LED-belysning innvendig og utvendig i hele boligen
Komplett klimaanlegg via kanaler (Fujitsu-system)

Perfekt beliggenhet på Costa Blanca
Pilar de la Horadada har en ideell beliggenhet både for permanent opphold og ferier. Byen kombinerer det beste av tradisjonelt spansk liv med moderne infrastruktur og nærhet til havet.

Viktigste avstander:
Strendene i Torre de la Horadada og Mil Palmeras: 3,5 km
Lo Romero golfbane: 6 km
Murcia-Corvera flyplass: 40 km
Alicante flyplass: 55 km
Marinaen i San Pedro del Pinatar: 10 km

Ditt nye hjem i solen venter
Nyt den perfekte kombinasjonen av design, komfort og middelhavsstil i disse nybygde boligene i Pilar de la Horadada. Enten du er på utkikk etter et feriested eller en bolig for hele året, tilbyr dette eksklusive prosjektet den ideelle balansen mellom kvalitet, beliggenhet og moderne livsstil.

Kontakt oss i dag for mer informasjon eller for å avtale en visning.

Plassering

Økonomi

Denne informasjonen gitt her er underlagt feil og inngår ikke i noen kontrakt. Tilbudet kan endres eller trekkes tilbake uten varsel. Prisene inkluderer ikke andre kostnader

Beregn boliglån

Valutaveksling

  • Pounds: 313.718 GBP
  • Russiske rubelen: 313.718 RUB
  • Sveitsiske franc: 332.224 CHF
  • Kinesiske yuan: 2.896.583 CNY
  • Dollar: 424.574 USD
  • Svenske kroner: 3.888.000 SEK
  • Den norske kronen: 3.965.018 NOK

Mer informasjon

Responsable del tratamiento: Naranja Spain, Finalidad del tratamiento: Gestión y control de los servicios ofrecidos a través de la página Web de Servicios inmobiliarios, Envío de información a traves de newsletter y otros, Legitimación: Por consentimiento, Destinatarios: No se cederan los datos, salvo para elaborar contabilidad, Derechos de las personas interesadas: Acceder, rectificar y suprimir los datos, solicitar la portabilidad de los mismos, oponerse altratamiento y solicitar la limitación de éste, Procedencia de los datos: El Propio interesado, Información Adicional: Puede consultarse la información adicional y detallada sobre protección de datos Aquí.

Lignende eiendommer

© 2026 Naranja Spain · Juridisk merknad

Privatliv · Cookies · Web kart · Design: Mediaelx