Luksusresort i Villajoyosa - et paradis ved havet

  • Ref.: NB-23547
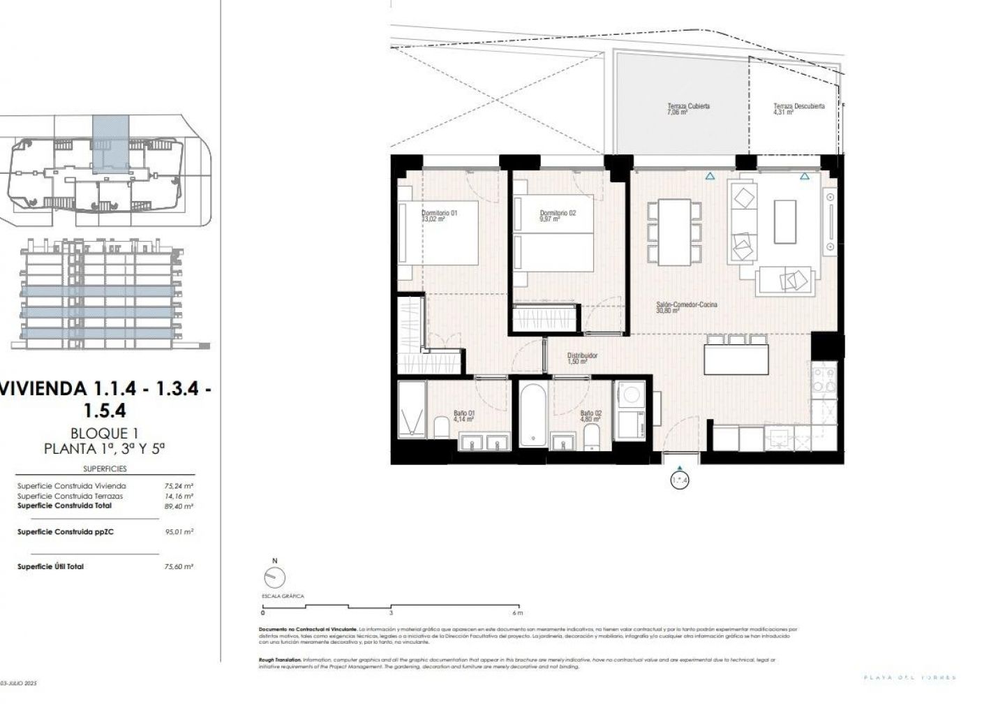
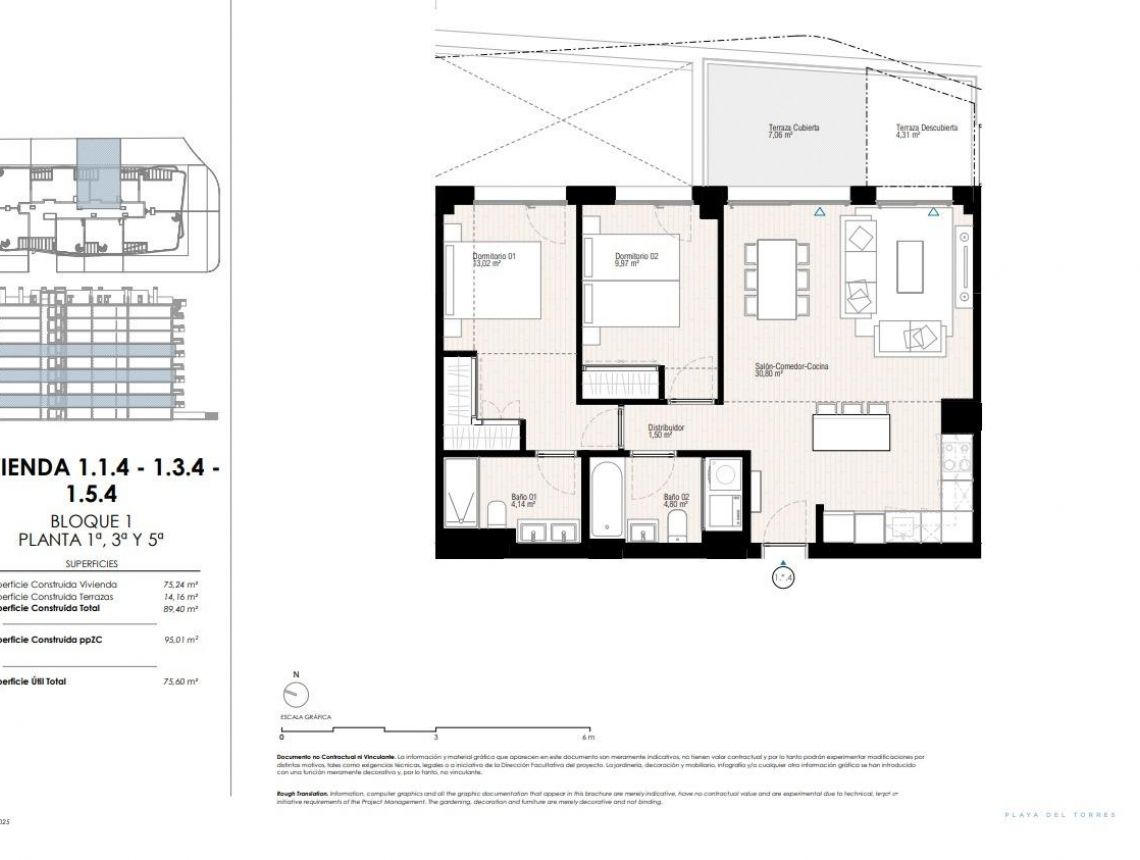
  • 95m2
  • 2
  • 2
  •  
424.000€ Informera prisfall

Kjennetegn

Soverom: 2
Baderom: 2
Inne: 95m2
Energi~~POS=TRUNC: A
Avstand til strand: 400 Mts.
Terrace: 11 Msq.
Gym
Views: Sea
Useable Build Space: 75 Msq.
Beach: 400 Meters
Parking - Space
Storage / Trastero
Jacuzzi
Gated
Solarium: Yes
Number of Parking Spaces: 1
Near Schools
Near Commercial Center
Elevator/Lift
Communal Pool
Location: Coastal, Urbanisation
Double Bedrooms: 2
Energi~~POS=TRUNC
Energi~~POS=TRUNC:
A

Beskrivelse

Luksusresort i Villajoyosa - et paradis ved havet

Oppdag et unikt boligkompleks i Playa del Torres
Dette eksklusive nybygget ligger mindre enn 5 minutters gange fra den rolige Playa del Torres i Villajoyosa, og tilbyr 164 moderne leiligheter og toppleiligheter med 1 til 3 soverom. Området er designet for å tilby den ultimate livsstilen, og kombinerer luksus, avslapning og enestående fasiliteter i rolige middelhavsomgivelser.

Eksepsjonelle fasiliteter for alle beboerne
Hjertet i dette prosjektet er Roof Top, som ligger på taket av blokk 2. Dette gjennomtenkte området har et fantastisk basseng med panoramautsikt, chill-out-områder, en grillsone, et flerbruksområde og et lysthus som er perfekt for sosialt samvær eller for å slappe av.
Innendørs sosial salong, ideell for gourmetmiddager med venner eller som et kontorfellesskap.
Komplekset har også noe for de som elsker vann:
Bassenger i tropisk stil med tilgang til stranden.
Et oppvarmet svømmebasseng, et barnebasseng og et oppvarmet boblebad.
Treningsentusiaster kan glede seg over:
Treningssentre innendørs og utendørs, komplett med en calisthenics-sirkel.
En puttinggreen og minigolf for fritidsaktiviteter.

Moderne hjem med førsteklasses funksjoner
Hver leilighet er utstyrt med:
Et fullt utstyrt kjøkken med hvitevarer av høy kvalitet, inkludert kjøleskap, mikrobølgeovn, stekeovn, oppvaskmaskin og integrert vaskemaskin/tørketrommel.
Energieffektive aerotermiske systemer for varmtvann og klimaanlegg.
Gulvvarme med strålevarme på badene.
PVC-vinduer av høy kvalitet med varmeisolasjon og doble vinduer.
Privat parkeringsplass og lagringsplass for ekstra bekvemmelighet.
Bygningen har energiklassifisering A, noe som sikrer maksimal effektivitet og bærekraft.

Perfekt beliggenhet i Villajoyosa
Dette komplekset ligger i Playa del Torres, og tilbyr et fredelig tilfluktssted omgitt av naturskjønnhet. Strandens krystallklare vann og turkise fargetoner danner et idyllisk bakteppe for avslapning. Anlegget har en praktisk beliggenhet:
2 km fra Villajoyosas sjarmerende sentrum.
10 km fra Benidorm, med sitt pulserende natteliv og shopping.
30 minutter med bil til Alicante lufthavn.

Villajoyosa, kjent for sine fargerike hus og rike historie, er fortsatt en autentisk middelhavsperle. Byen ble nylig kåret til «Beste hemmelige reisemål i Europa 2024» av European Best Destinations, og her blandes tradisjon, naturskjønnhet og ro.

Drømmehuset ditt venter i Playa del Torres
Opplev det beste av moderne livsstil i et naturparadis. Med sin førsteklasses beliggenhet, luksuriøse fasiliteter og moderne design er dette prosjektet perfekt for deg som ønsker deg et hjem ved sjøen. Kontakt oss i dag for å avtale et besøk og gjøre denne fantastiske eiendommen til din!

Plassering

Økonomi

Denne informasjonen gitt her er underlagt feil og inngår ikke i noen kontrakt. Tilbudet kan endres eller trekkes tilbake uten varsel. Prisene inkluderer ikke andre kostnader

Beregn boliglån

Valutaveksling

  • Pounds: 369.092 GBP
  • Russiske rubelen: 369.092 RUB
  • Sveitsiske franc: 387.706 CHF
  • Kinesiske yuan: 3.357.826 CNY
  • Dollar: 493.027 USD
  • Svenske kroner: 4.656.368 SEK
  • Den norske kronen: 4.598.280 NOK

Mer informasjon

Responsable del tratamiento: Naranja Spain, Finalidad del tratamiento: Gestión y control de los servicios ofrecidos a través de la página Web de Servicios inmobiliarios, Envío de información a traves de newsletter y otros, Legitimación: Por consentimiento, Destinatarios: No se cederan los datos, salvo para elaborar contabilidad, Derechos de las personas interesadas: Acceder, rectificar y suprimir los datos, solicitar la portabilidad de los mismos, oponerse altratamiento y solicitar la limitación de éste, Procedencia de los datos: El Propio interesado, Información Adicional: Puede consultarse la información adicional y detallada sobre protección de datos Aquí.

Lignende eiendommer

© 2026 Naranja Spain · Juridisk merknad

Privatliv · Cookies · Web kart · Design: Mediaelx