
Moderne villaer i La Romana, Alicante
Eksklusive nybygg i en sjarmerende spansk landsby
Disse moderne nybyggvillaene i La Romana er designet for de som søker fred, komfort og den autentiske spanske livsstilen. Husene ligger på tomter på 370 m² i et boligområde i utkanten av landsbyen, bare en kort spasertur fra sentrum, hvor du kan nyte tradisjonelle restauranter, butikker og alle daglige tjenester. Omgitt av vingårder, mandellunder og fjellandskap, tilbyr La Romana en unik landlig setting, samtidig som den ligger bare 30 minutter fra kysten.
Romslig design med moderne komfort
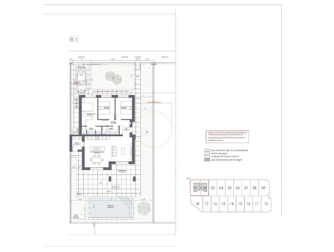
Hver villa har 127 m² bebygget areal fordelt på 3 soverom og 2 bad, inkludert en master suite med eget bad. Den åpne stuen og spisestuen integreres sømløst med et møblert kjøkken og direkte tilgang til terrassen og privat basseng. Ytterligere funksjoner inkluderer et oppbevaringsrom/vaskerom og privat parkering på tomten. For de som ønsker ekstra uteplass, er det mulig å legge til et solarium på taket mot en ekstra kostnad.
Premium-funksjoner inkludert
Disse villaene er bygget med kvalitetsfinish og er fullt utstyrt med:
Privat basseng på 6 x 3,5 m
Klimaanlegg med varmepumpe (installasjon og enhet inkludert)
Moderne kjøkken med hvite skap og benkeplater i granitt
LED-belysning i hele huset og på verandaen
Doble vinduer, hvite innerdører og innebygde garderober
Levering er planlagt 14 måneder etter reservasjon, noe som sikrer et helt nytt, personlig hjem.
Ideell beliggenhet på landsbygda i Alicante
La Romana er en tradisjonell spansk landsby i det indre av Alicante, kjent for sitt gjestfrie samfunn og naturlige omgivelser. Beliggenheten gir den perfekte balansen mellom ro og tilgjengelighet:
Aspe – 8 km
Elche – 18 km
Alicante lufthavn – 35 km
Strendene på Costa Blanca – 30 km
Golfbaner (Font del Llop & Alenda) – 20 km
Alicante by – 32 km
Din middelhavsstil venter
Hvis du er på jakt etter et fredelig miljø omgitt av fjell, vingårder og sjarmerende spanske byer, men likevel nær Middelhavskysten, er disse villaene i La Romana det perfekte valget. Kontakt oss i dag for mer informasjon og sikre deg ditt nye hjem i Alicante.
Denne informasjonen gitt her er underlagt feil og inngår ikke i noen kontrakt. Tilbudet kan endres eller trekkes tilbake uten varsel. Prisene inkluderer ikke andre kostnader