Nybyggede turistleiligheter i Santa Rosalía Lake and Life Resort Costa Cálida

  • Ref.: NB-80215
  • 77m2
  • 2
  • 2
  •  
319.900€ Informera prisfall

Kjennetegn

Soverom: 2
Baderom: 2
Inne: 77m2
Energi~~POS=TRUNC: B
Avstand til strand: 4000 Mts.
Near Schools
Near Commercial Center
Elevator/Lift
Communal Pool
Near Golf / Golf Resort Property
Useable Build Space: 68 Msq.
Double Bedrooms: 2
Gym
Location: Urbanisation
Beach: 4000 Meters
Terrace: 58 Msq.
Parking - Space
Laundry Room
Storage / Trastero
Licensed Tourist Property
Gated
Solarium: Yes
Number of Parking Spaces: 1
Energi~~POS=TRUNC
Energi~~POS=TRUNC:
B

Beskrivelse

Nybyggede turistleiligheter i Santa Rosalía Lake and Life Resort Costa Cálida

Førsteklasses beliggenhet i hjertet av Costa Cálida
Disse nybyggede turistleilighetene i Santa Rosalía Lake and Life Resort representerer en av de beste investerings- og livsstilsmulighetene i regionen Murcia. Komplekset ligger mindre enn 4 km fra strendene i Los Alcázares og bare 22 km fra Murcia internasjonale lufthavn, og tilbyr en uovertruffen kombinasjon av tilgjengelighet, fritidsaktiviteter og moderne middelhavsliv. Den historiske byen Cartagena ligger bare 15 minutter unna, mens flere prestisjetunge golfbaner ligger innenfor en radius på 10 km.

Eksklusivt boligkompleks med 40 leiligheter
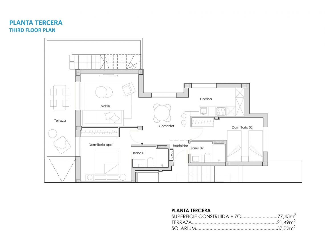
Prosjektet består av fem uavhengige bygninger med totalt 40 fullt møblerte leiligheter, fordelt på fire etasjer med to enheter per etasje. Hver leilighet har 2 soverom og 2 bad, designet for komfort og funksjonalitet. Kjøpere kan velge mellom enheter i første etasje med private hager, leiligheter i mellomste etasje med store terrasser eller penthouse-leiligheter med privat solarium og fantastisk utsikt.

Fullt utstyrte boliger klare til innflytting
Alle eiendommer leveres nøkkelferdige, inkludert møbler, klimaanlegg, belysning, kjøkkenutstyr, sengetøy, håndklær og et dekorasjonspakke. Dette sikrer at både eiere og gjester kan nyte en problemfri opplevelse fra første dag, noe som gjør det til et ideelt produkt for ferieutleie eller personlig bruk.

Førsteklasses fasiliteter og fellesarealer
Det inngjerdede boligområdet ligger på en 7000 m² stor tomt, designet med tanke på privatliv og sikkerhet takket være perimetergjerde og kontrollert tilgang. Beboere og gjester kan nyte godt av anlagte middelhavshager, felles svømmebassenger, lekeplasser for barn og rikelig med parkeringsplasser. I tillegg inkluderer prosjektet en egen bygning for felles tjenester som resepsjon, kafé, vaskeri og treningsstudio.

Santa Rosalía Lake and Life Resort Livsstil
Å eie en leilighet her betyr tilgang til de eksklusive fasilitetene i Santa Rosalía Lake and Life Resort, et unikt boligkompleks med mer enn 126 000 m² grøntområder. Høydepunktene inkluderer en spektakulær 17 000 m² krystallklar lagune med hvite sandstrender, to øyer (den ene med egen bar), strandklubber, idrettsanlegg, sykkel- og turstier, paddle- og tennisbaner, minigolf, hundeparker og et livlig klubbhus. Sikkerhets- og vedlikeholdstjenester er tilgjengelige 24/7, noe som gir trygghet for både beboere og besøkende.

Invester i kvalitet og livsstil
Disse nybygde turistleilighetene kombinerer høyt utleiepotensial med en eksepsjonell livsstil på Costa Cálida. Enten som feriebolig eller investering, er Santa Rosalía Lake and Life Resort et reisemål som garanterer kvalitet og verdi.

Kontakt oss i dag for å lære mer og sikre deg en leilighet i dette unike middelhavsresortet.

Plassering

Økonomi

Denne informasjonen gitt her er underlagt feil og inngår ikke i noen kontrakt. Tilbudet kan endres eller trekkes tilbake uten varsel. Prisene inkluderer ikke andre kostnader

Beregn boliglån

Valutaveksling

  • Pounds: 277.417 GBP
  • Russiske rubelen: 277.417 RUB
  • Sveitsiske franc: 293.604 CHF
  • Kinesiske yuan: 2.547.236 CNY
  • Dollar: 368.429 USD
  • Svenske kroner: 3.479.872 SEK
  • Den norske kronen: 3.579.201 NOK

Mer informasjon

Responsable del tratamiento: Naranja Spain, Finalidad del tratamiento: Gestión y control de los servicios ofrecidos a través de la página Web de Servicios inmobiliarios, Envío de información a traves de newsletter y otros, Legitimación: Por consentimiento, Destinatarios: No se cederan los datos, salvo para elaborar contabilidad, Derechos de las personas interesadas: Acceder, rectificar y suprimir los datos, solicitar la portabilidad de los mismos, oponerse altratamiento y solicitar la limitación de éste, Procedencia de los datos: El Propio interesado, Información Adicional: Puede consultarse la información adicional y detallada sobre protección de datos Aquí.

Lignende eiendommer

© 2026 Naranja Spain · Juridisk merknad

Privatliv · Cookies · Web kart · Design: Mediaelx