Luksuriøse nybygde tomannsboliger i Benijófar – Costa Blanca Living

  • Ref.: NB-11918
  • 141m2
  • 200m2
  • 3
  • 3
  •  
515.000€ Informera prisfall

Kjennetegn

Soverom: 3
Baderom: 3
Inne: 141m2
Plott: 200m2
Energi~~POS=TRUNC: B
Avstand til strand: 8000 Mts.
Gated
Solarium: Yes
Number of Parking Spaces: 1
Near Schools
Near Commercial Center
Air Conditioning: Pre-Installed
Double Bedrooms: 3
Elevator/Lift
Near Bus Route
Under-Build / Basement
BBQ
Beach: 8000 Meters
Location: Rural
Useable Build Space: 102 Msq.
Parking - Space
Terrace: 123 Msq.
Laundry Room
Energi~~POS=TRUNC
Energi~~POS=TRUNC:
B

Beskrivelse

Luksuriøse nybygde tomannsboliger i Benijófar – Costa Blanca Living

Privilegert beliggenhet i Benijófar
Disse eksklusive nybygde tomannsboligene ligger i den sjarmerende byen Benijófar, et av de mest ettertraktede områdene på Costa Blanca. Benijófar er kjent for sin blanding av tradisjon og moderne livsstil, og tilbyr alle nødvendige tjenester, inkludert supermarkeder, apotek, banker, restauranter og lokale butikker. Bebyggelsen ligger strategisk plassert bare 10 km fra de gylne strendene i Guardamar del Segura og kun 30 km fra Alicante lufthavn, noe som gjør det til et ideelt sted for både permanent opphold og ferie.

Romslig og moderne design
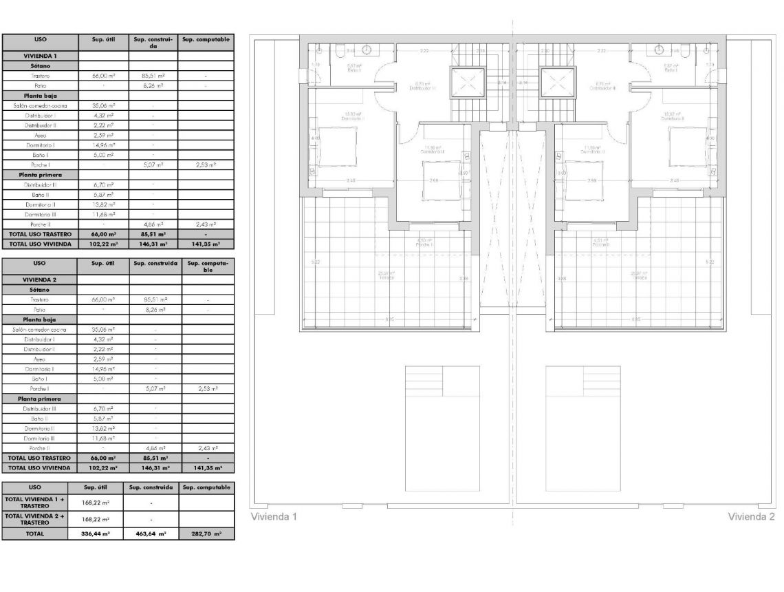
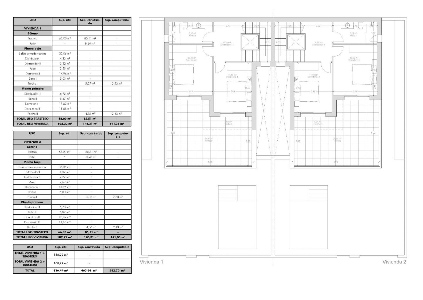
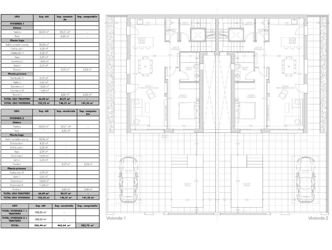
Hver villa er designet i en moderne stil som maksimerer plassen og det naturlige lyset. Fordelingen inkluderer tre soverom (ett i første etasje og to i andre etasje) og tre bad (inkludert ett i kjelleren), noe som gjør dem perfekte for familier og gjester. Den åpne stuen med spisestue går sømløst over i det fullt utstyrte kjøkkenet, og skaper et varmt og funksjonelt miljø. Store vinduer gir lys i hele huset.

Premium-funksjoner og ekstrautstyr
Disse villaene skiller seg ut med sin høye finish og gjennomtenkte detaljer:
66 m2 kjeller med bad, galleri og vaskerom
Privat basseng, solarium med grill og vask
Dekorativ peis i stuen
Privat parkering på tomten
Heis fra kjeller til øverste etasje
3 solcellepaneler og LED-belysning i hele huset
Forhåndsinstallert klimaanlegg
Fullt utstyrte bad med møbler og dusjvegger
Tomtestørrelser fra 200 m2

Livsstil og omgivelser
Benijófar kombinerer sjarmen til en tradisjonell spansk landsby med bekvemmeligheten av moderne tjenester. Naturelskere vil nyte den nærliggende naturparken, som er perfekt for fotturer og sykling. For golfentusiaster ligger La Marquesa Golf bare 5 km unna, mens flere andre toppbaner ligger innenfor en radius på 15 km. Familier kan besøke vannparkene i Rojales (4 km) og Torrevieja (12 km), eller utforske den livlige byen Torrevieja, som ligger bare 12 km unna.

Utmerket tilknytning
Villaene har enkel tilgang til motorveiene N-332 og AP-7, som sikrer raske forbindelser til Alicante, Elche, Orihuela Costa og Murcia. Området tilbyr den perfekte balansen mellom ro, fasiliteter og tilgjengelighet.

Drømmehuset ditt på Costa Blanca
Opplev luksus, komfort og middelhavsliv i disse fantastiske nybygde villaene i Benijófar. Kontakt oss i dag for mer informasjon og for å avtale en visning av ditt fremtidige hjem.

Plassering

Økonomi

Denne informasjonen gitt her er underlagt feil og inngår ikke i noen kontrakt. Tilbudet kan endres eller trekkes tilbake uten varsel. Prisene inkluderer ikke andre kostnader

Beregn boliglån

Valutaveksling

  • Pounds: 445.012 GBP
  • Russiske rubelen: 445.012 RUB
  • Sveitsiske franc: 471.534 CHF
  • Kinesiske yuan: 4.119.434 CNY
  • Dollar: 605.692 USD
  • Svenske kroner: 5.583.630 SEK
  • Den norske kronen: 5.573.073 NOK

Mer informasjon

Responsable del tratamiento: Naranja Spain, Finalidad del tratamiento: Gestión y control de los servicios ofrecidos a través de la página Web de Servicios inmobiliarios, Envío de información a traves de newsletter y otros, Legitimación: Por consentimiento, Destinatarios: No se cederan los datos, salvo para elaborar contabilidad, Derechos de las personas interesadas: Acceder, rectificar y suprimir los datos, solicitar la portabilidad de los mismos, oponerse altratamiento y solicitar la limitación de éste, Procedencia de los datos: El Propio interesado, Información Adicional: Puede consultarse la información adicional y detallada sobre protección de datos Aquí.

© 2026 Naranja Spain · Juridisk merknad

Privatliv · Cookies · Web kart · Design: Mediaelx